Appartamento Via Giovanni Amendola, Acqui Terme
€ 68.000Quadrilocale in vendita
In posizione comoda ai servizi e a pochi passi dalla zona pedonale di Acqui Terme, proponiamo un ampio appartamento.
L'alloggio si presenta come soluzione ideale per famiglie numerose, genitori e figli.
Composizione:
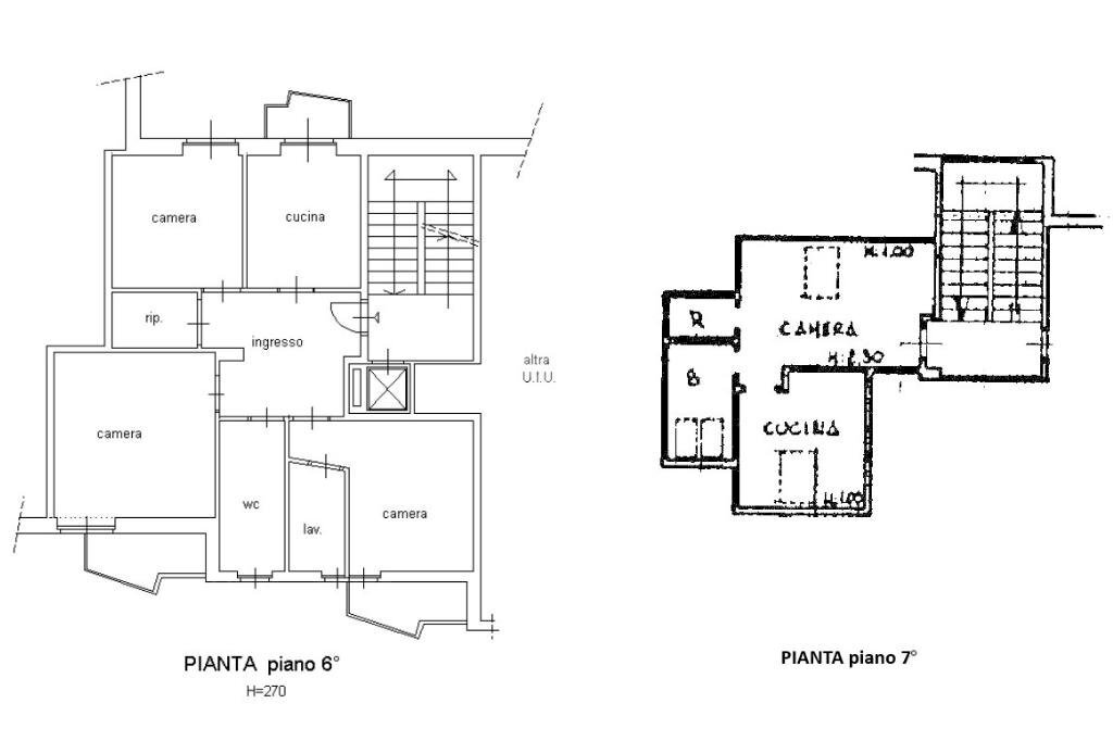
Appartamento: ingresso, due camere di cui una con bagno privato e balcone, soggiorno con balcone, cucina abitabile anche essa con balcone, ripostiglio e bagno.
Piano mansardato: ingresso living su ampia camera, cucina, ripostiglio e bagno.
Piano interrato: cantina al piano seminterrato
L’immobile gode di ottima luminosità, spazi funzionali e ampie possibilità di personalizzazione.
Possibilità di acquistare a parte un ampio box auto di circa 23 mq situato al piano terra dello stesso condominio.
Presente inoltre, come da foto, la possibilità di acquistare la mansarda presente al piano superiore, gli alloggi comunicano attraverso una scala interna, è però possibile mantenere le due unità separate ciascuna con proprio ingresso indipendente dal vano scala condominiale.
Mansarda così composta: ingresso living su ampia camera, cucina, ripostiglio e bagno.
Prezzo richiesto 15.000€
Ideale per chi desidera abitare e affittare un piano in modo indipendente.
L'alloggio si presenta come soluzione ideale per famiglie numerose, genitori e figli.
Composizione:
Appartamento: ingresso, due camere di cui una con bagno privato e balcone, soggiorno con balcone, cucina abitabile anche essa con balcone, ripostiglio e bagno.
Piano mansardato: ingresso living su ampia camera, cucina, ripostiglio e bagno.
Piano interrato: cantina al piano seminterrato
L’immobile gode di ottima luminosità, spazi funzionali e ampie possibilità di personalizzazione.
Possibilità di acquistare a parte un ampio box auto di circa 23 mq situato al piano terra dello stesso condominio.
Presente inoltre, come da foto, la possibilità di acquistare la mansarda presente al piano superiore, gli alloggi comunicano attraverso una scala interna, è però possibile mantenere le due unità separate ciascuna con proprio ingresso indipendente dal vano scala condominiale.
Mansarda così composta: ingresso living su ampia camera, cucina, ripostiglio e bagno.
Prezzo richiesto 15.000€
Ideale per chi desidera abitare e affittare un piano in modo indipendente.
Dati principali
| Riferimento | 61136659 |
| Data annuncio | 12/11/2025 |
| Contratto | Vendita |
| Tipologia | Appartamento |
| Superficie | 90 m2 |
| Locali | 4 (4 altro), 2 bagni |
| Piano | 6 di 7 totali |
Costi
| Prezzo | 68.000 € |
| Prezzo al m2 | 756 €/m2 |
Efficienza energetica
| Anno costruzione | 1973 |
| Riscaldamento | Centralizzato |
| Tipo Alimentazione Riscaldamento | Metano |
| Classe energetica | E |
| Indice di prestazione energetica (EP GL, REN) | 0.53 kWh/m3 anno |
| Indice di prestazione energetica (EP GL, NREN) | 173.9 kWh/m3 anno |
Planimetrie
Indirizzo e mappa
Via Giovanni Amendola, Acqui Terme
Calcolo mutuo
Prezzo di vendita:
Anticipo
20,00
Mutuo
80,00
Tasso: -+
Rata: 194 al mese
I risultati sono una stima indicativa basata sui dati inseriti e non costituiscono un’offerta finanziaria.
Inserzionista
Chiama
CONTATTA

