Villa Via Myrdal, Quattro Castella
€ 520.000Villa singola in vendita
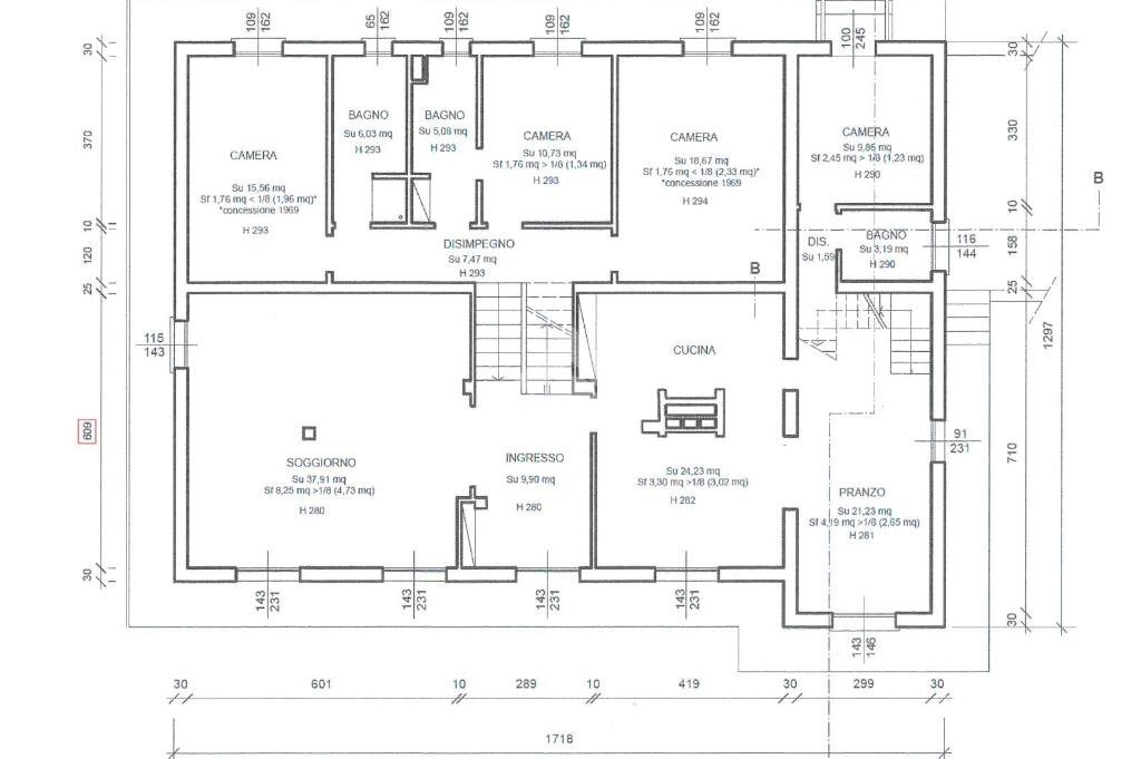
Puianello (Quattro Castella):si propone in vendita una villa singola immersa in 1400 mq di verde privato, caratterizzata da un'architettura signorile ed elegante, unica nelle sue finiture.
Costruita negli anni '70, questa residenza si sviluppa su più livelli, ma con una disposizione funzionale che permette il raggiungimento dei piani senza fare numerose scale.
Oltre a una grande zona giorno, l'immobile dispone di cucina abitabile, ben 4 bagni e 5 camere. Completano la proprietà la zona servizi (taverna, lavanderia, bagno), un ampio garage di circa 47 mq, e un incantevole giardino di grandi dimensioni.
L'abitazione inoltre è stata ampliata negli anni '90, questo a creato una nuova zona della villa, con accesso indipendente dall'esterno, su tre livelli, con altri due locali adibiti a studio ed un bagno, ideale per chi ha la necessità di dover lavorare da casa, con totale privacy.
Costruita negli anni '70, questa residenza si sviluppa su più livelli, ma con una disposizione funzionale che permette il raggiungimento dei piani senza fare numerose scale.
Oltre a una grande zona giorno, l'immobile dispone di cucina abitabile, ben 4 bagni e 5 camere. Completano la proprietà la zona servizi (taverna, lavanderia, bagno), un ampio garage di circa 47 mq, e un incantevole giardino di grandi dimensioni.
L'abitazione inoltre è stata ampliata negli anni '90, questo a creato una nuova zona della villa, con accesso indipendente dall'esterno, su tre livelli, con altri due locali adibiti a studio ed un bagno, ideale per chi ha la necessità di dover lavorare da casa, con totale privacy.
Dati principali
| Riferimento | 61139554 |
| Data annuncio | 12/11/2025 |
| Contratto | Vendita |
| Tipologia | Villa |
| Superficie | 342 m2 |
| Locali | più di 5 (11 altro), 4 bagni |
| Piano | 3 di 3 totali |
Costi
| Prezzo | 520.000 € |
| Prezzo al m2 | 1.520 €/m2 |
Efficienza energetica
| Anno costruzione | 1971 |
| Riscaldamento | Autonomo |
| Tipo Alimentazione Riscaldamento | Metano |
| Classe energetica | G |
| Indice di prestazione energetica (EP GL, NREN) | 413.32 kWh/m3 anno |
Planimetrie
Video
Indirizzo e mappa
Via Myrdal, Quattro Castella
Calcolo mutuo
Prezzo di vendita:
Anticipo
20,00
Mutuo
80,00
Tasso: -+
Rata: 1.487 al mese
I risultati sono una stima indicativa basata sui dati inseriti e non costituiscono un’offerta finanziaria.
Inserzionista
Chiama
CONTATTA

