Laboratorio Via Castonella, Campi Bisenzio
€ 1.400.000Capannone / Fondo - Laboratorio a Capalle, Campi Bisenzio
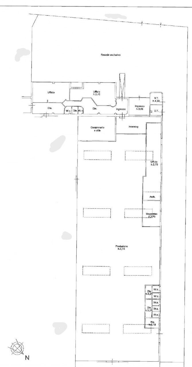
a25397 - CAMPI BISENZIO/CAPALLE - VIA CASTRONELLA: In zona industriale, in forte sviluppo dato anche il prossimo cambio della viabilità, proponiamo in vendita ampio capannone industriale di 1.200mq ca. complessivi categoria catastale D/7 tutto sviluppato su un unico livello e senza colonne o strutture nel centro del laboratorio composto da un unico vano produttivo di circa 1.000mq quattro ambienti utilizzati come ufficio ed aree campionario, un magazzino e 7 servizi oltre piazzale con 7 posti auto di circa 400mq recintato e chiuso tramite cancello automatico. L'immobile si presenta in buone condizioni generali con tetto rifatto, impianti elettrici rifatti e facciate frontali rifatte recentemente.
Ideale per investimento o per svariate tipologie di attività. Termosingolo Classe Energetica G
Ideale per investimento o per svariate tipologie di attività. Termosingolo Classe Energetica G
Dati principali
| Riferimento | a25397 |
| Data annuncio | 10/11/2025 |
| Contratto | Vendita |
| Tipologia | Laboratorio |
| Superficie | 1220 m2 |
| Locali | più di 5 (9 altro), 7 bagni |
| Piano | 1 totali |
| Numero posti auto | 1 |
Costi
| Prezzo | 1.400.000 € |
| Prezzo al m2 | 1.148 €/m2 |
Efficienza energetica
| Anno costruzione | 1980 |
| Classe energetica | G |
Planimetrie
Indirizzo e mappa
Via Castonella, Campi Bisenzio
Calcolo mutuo
Prezzo di vendita:
Anticipo
20,00
Mutuo
80,00
Tasso: -+
Rata: 4.004 al mese
I risultati sono una stima indicativa basata sui dati inseriti e non costituiscono un’offerta finanziaria.
Inserzionista
Immobiliare Belvedere
Via Il Prato 61r, Firenze
Mostra Telefono
Chiama
CONTATTA

