Quadrilocale Strada Del Rigo 5/8, Venezia
€ 198.000
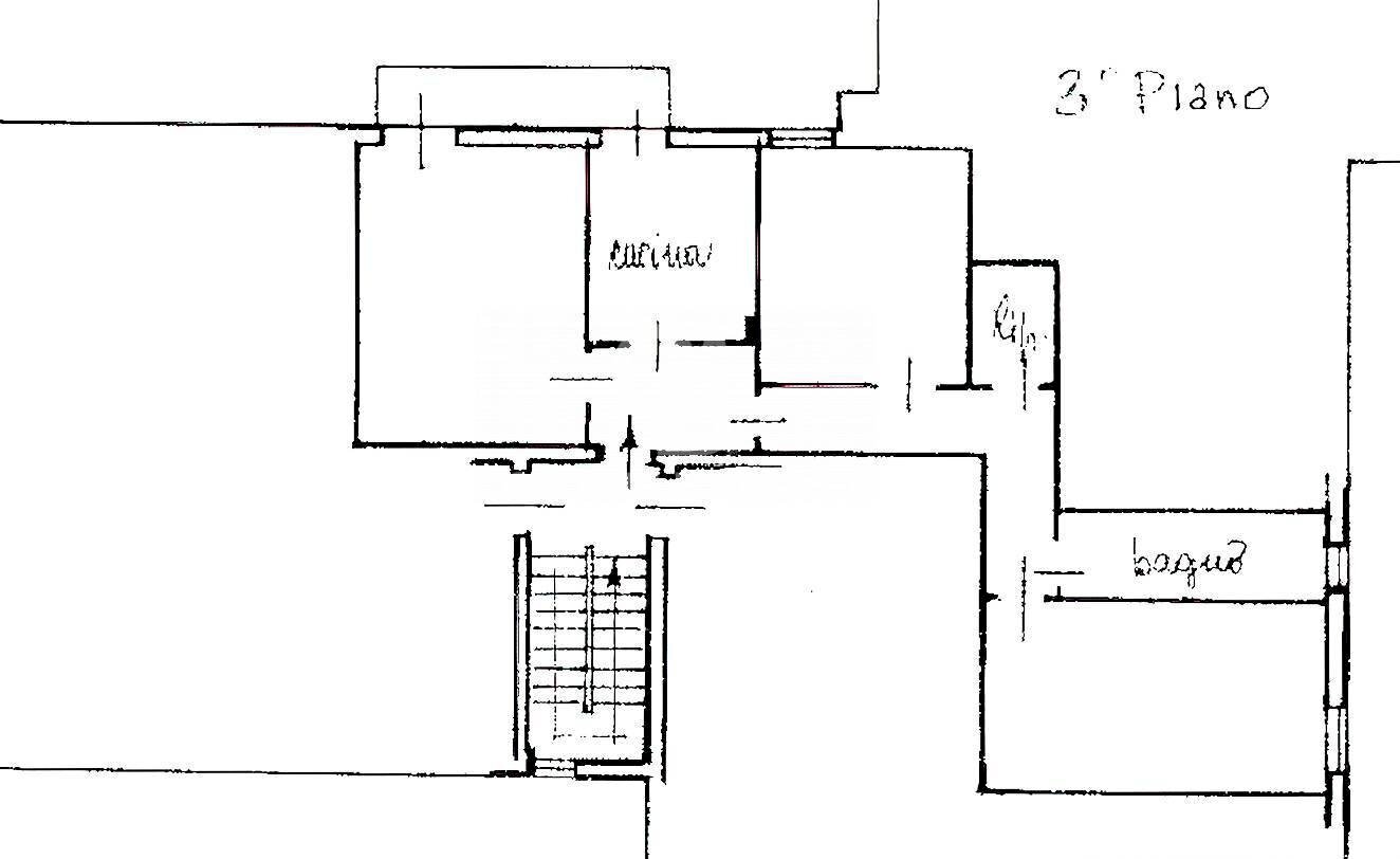
Mestre Carpenedo appartamento con due camere ristrutturato. In Strada del Rigo in contesto residenziale tranquillo e ben servito appartamento ammobiliato e disponibile da febbraio 2026. Proponiamo in vendita un appartamento situato al terzo piano di una palazzina non dotata di ascensore che si compone di ingresso, ampio soggiorno con terrazzino, cucina abitabile, due camere matrimoniali, bagno finestrato con doccia e un ripostiglio. La proprietà comprende un garage al piano terra. Ottime condizioni di manutenzione, riscaldamento centralizzato con termo-valvole, aria condizionata, infissi vetro-camera. Il prezzo proposto è comprensivo di tutto l'arredamento.
Dati principali
| Riferimento | CBI138-2831-224 |
| Data annuncio | 11/11/2025 |
| Contratto | Vendita |
| Tipologia | Appartamento |
| Superficie | 100 m2 |
| Locali | 4 (2 camere da letto, 2 altro), 1 bagno, cucina abitabile |
| Piano | 3 di 4 totali |
| Tipo di costruzione | Media |
| Occupato | Libero |
| Box auto | Singolo |
| Arredamento | Completo |
Costi
| Prezzo | 198.000 € |
| Prezzo al m2 | 1.980 €/m2 |
Efficienza energetica
| Stato | Ottimo |
| Riscaldamento | Semi-autonomo |
| Classe energetica | D |
| Indice di prestazione energetica (IPE) | - |
Planimetrie
Indirizzo e mappa
Strada Del Rigo
5/8, Venezia
Annuncio senza mappa,
prova a chiedere la posizione all'inserzionista
prova a chiedere la posizione all'inserzionista
Calcolo mutuo
Prezzo di vendita:
Anticipo
20,00
Mutuo
80,00
Tasso: -+
Rata: 566 al mese
I risultati sono una stima indicativa basata sui dati inseriti e non costituiscono un’offerta finanziaria.
Inserzionista

Coldwell Banker Immobiliare Tre Archi
San Polo 2465E, Venezia
Mostra Telefono
Perinato Tiziana
Mostra Telefono
Chiama
CONTATTA

