Appartamento Viale dei Campioni 4, Roma
€ 695.000
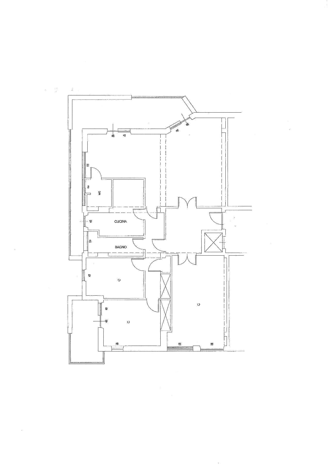
proponiamo in vendita a Roma in piu esattamente zona Eur laghetto un prestigioso appartamento in viale dei campioni ampia metratura con affaccio esterno esposto ad ovest. L' appartamento si compone di un ingresso ampio salone doppio divisibile 3 camere da letto cucina abitabile doppi servizi balcone e terrazzo vivibile in zona giorno, cantina e posto auto condominiale coperto assegnato. L'EUR è oggi noto per essere una delle zone più moderne e ben strutturate dove vivere a Roma. Nonostante il quartiere sia conosciuto per ospitare numerosi uffici, offre anche alcuni immobili residenziali. Il quartiere è ben servito da numerosi negozi, centri commerciali, ristoranti e bar, offrendo un'ampia gamma di opzioni per lo shopping e il tempo libero. Non mancano, poi, centri fitness, spa e aree dedicate agli sport all'aperto. Inoltre, la presenza di scuole, e strutture sanitarie di rende l'EUR un luogo ideale per famiglie e professionisti. I parchi, come il Parco del Lago che si sviluppa per lappunto intorno al Laghetto, offrono spazi vasti e ben curati per passeggiate, jogging e picnic, contribuendo significativamente alla vivibilità del quartiere. Euro 695.000
Dati principali
| Riferimento | 61/25 |
| Data annuncio | 11/11/2025 |
| Contratto | Vendita |
| Tipologia | Appartamento |
| Superficie | 147 m2 |
| Locali | 5 (4 camere da letto, 1 altro), 2 bagni, cucina abitabile |
| Piano | 1 di 4 totali |
| Occupato | Libero |
| Box auto | Assente |
| Numero posti auto | 1 |
Caratteristiche
Costi
| Prezzo | 695.000 € |
| Prezzo al m2 | 4.728 €/m2 |
Efficienza energetica
| Stato | Da ristrutturare |
| Riscaldamento | Semi-autonomo |
| Classe energetica | G |
| Indice di prestazione energetica (IPE) | 245 kWh/m2 anno |
Planimetrie
Indirizzo e mappa
Viale dei Campioni
4, Roma
Annuncio senza mappa,
prova a chiedere la posizione all'inserzionista
prova a chiedere la posizione all'inserzionista
Calcolo mutuo
Prezzo di vendita:
Anticipo
20,00
Mutuo
80,00
Tasso: -+
Rata: 1.988 al mese
I risultati sono una stima indicativa basata sui dati inseriti e non costituiscono un’offerta finanziaria.
Inserzionista

Universo Casa Srl
Via Adolfo Omodeo 56, Roma
Mostra Telefono
Chiama
CONTATTA

