Capannone via dei confini, Prato
Trattativa riservata
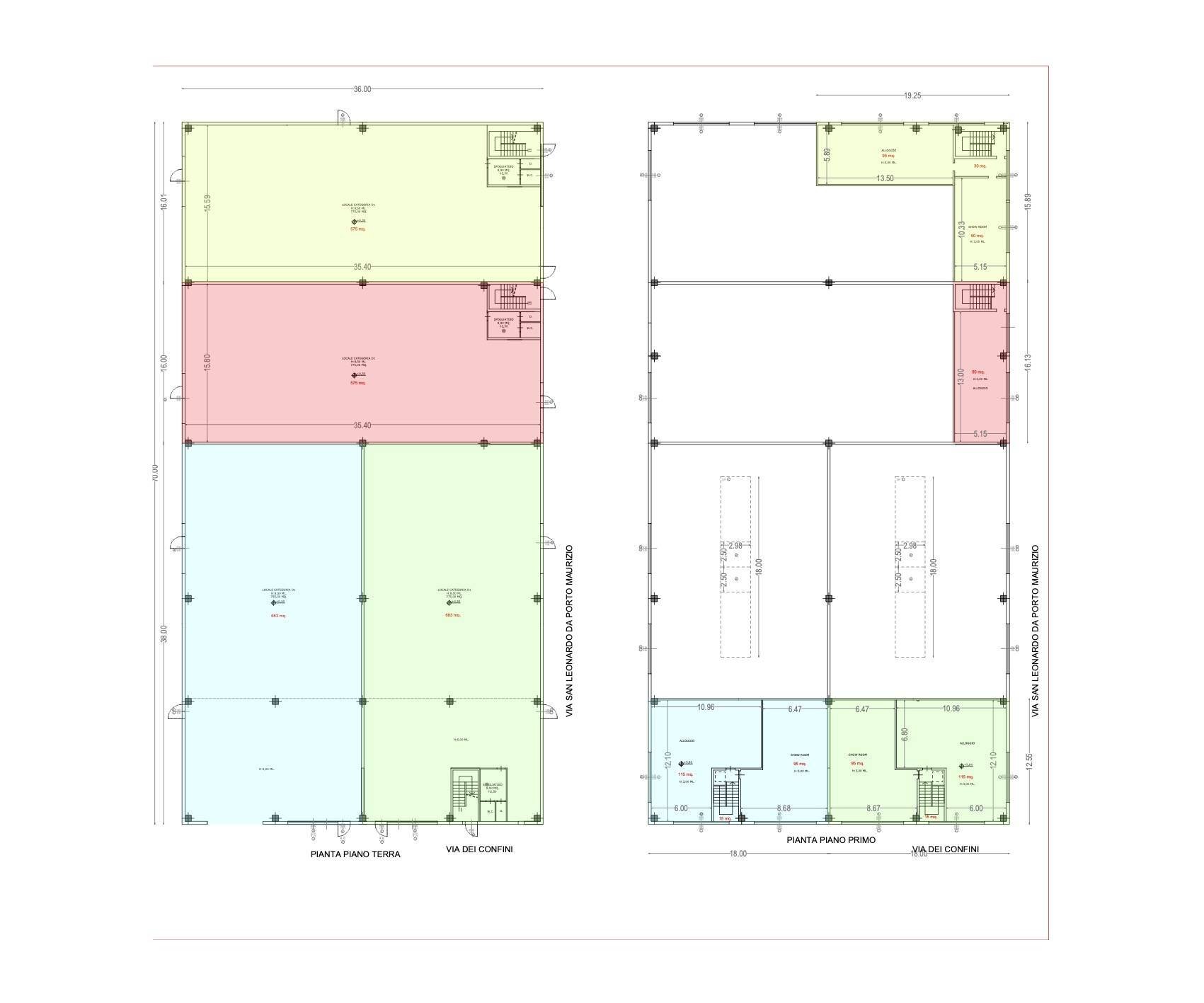
In contesto produttivo di nuova realizzazione, proponiamo capannone indipendente su due livelli, caratterizzato da ampie metrature e finiture moderne. Limmobile, attualmente in fase di costruzione, sarà pronto per dicembre 2026 e offre al piano terra una superficie di circa 2520 mq, dotata di servizi igienici e spogliatoi, ideale per attività artigianali, produttive o di deposito. Al primo piano troviamo invece 680 mq ad uso ufficio, perfetti per creare una zona direzionale o amministrativa funzionale e ben collegata allarea operativa. Lintervento prevede diverse soluzioni disponibili, personalizzabili in base alle esigenze dellattività. Ottima accessibilità, contesto di nuova edificazione e impianti di ultima generazione completano la proposta. Consegna prevista: Dicembre 2026 NOTA BENE: L'intervento prevede la realizzazione di un'unità come quella pubblicizzata, ma dal momento che l'immobile è in fase di costruzioni sono possibili varie personalizzazioni come l'acquisto di due, tre o quattro unità collegabili fra loro. Il prezzo richiesto è 1.650 mq. RITMO MAISON REAL ESTATE Via Guglielmo Marconi, 13r Firenze Telefono/Whatsapp: (+39) 3519573199 Email: [email protected] Per garantire la privacy dei proprietari, la mappa e l'indirizzo possono non rispecchiare esattamente l'ubicazione precisa dell'immobile. Le immagini hanno il solo scopo illustrativo, non hanno alcun carattere contrattuale. Ape in fase di definizione. La presente scheda non costituisce forma di contratto, le informazioni qui contenute sono da ritenersi del tutto indicative e non potranno essere utilizzate come parte integrante in un eventuale contratto di vendita o locazione della proprietà. La presente non vincola in alcun modo la società.
Dati principali
| Riferimento | 004- prime 3200 |
| Data annuncio | 08/11/2025 |
| Contratto | Vendita |
| Tipologia | Capannone |
| Superficie | 3200 m2 |
| Occupato | Libero |
Costi
| Prezzo | Trattativa riservata |
Efficienza energetica
| Tipo Alimentazione Riscaldamento | Altro |
| Classe energetica | A1 |
Planimetrie
Indirizzo e mappa
via dei confini, Prato
Annuncio senza mappa,
prova a chiedere la posizione all'inserzionista
prova a chiedere la posizione all'inserzionista
Inserzionista

Ritmo Maison
Via G. Marconi, 13Rosso, Firenze
Mostra Cellulare
Chiama
CONTATTA

