Capannone VIA SILVIO PELLICO 5, Padova
€ 1.650.000
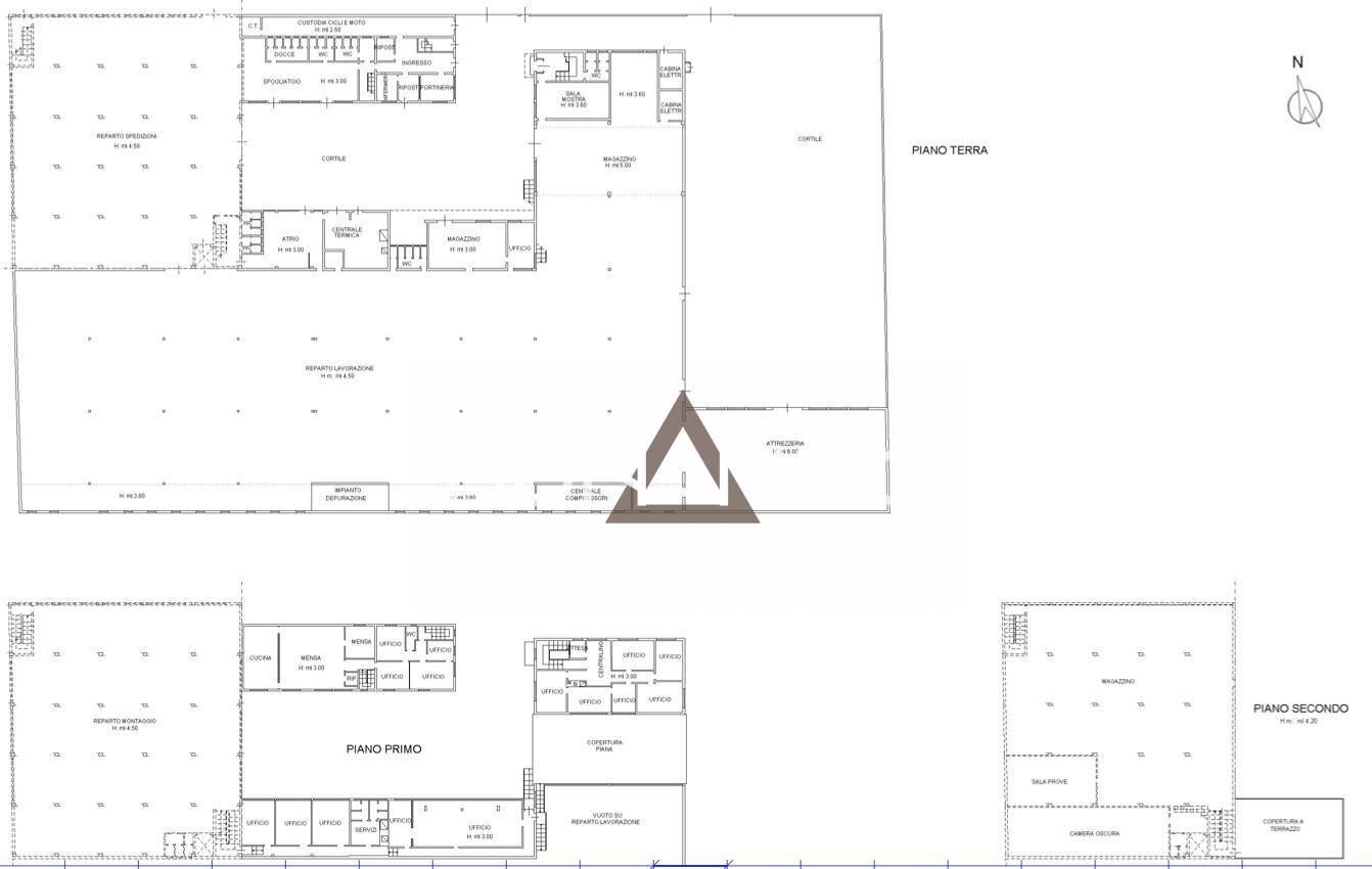
Bonanno Immobili propone in vendita a Padova in zona industriale capannone di 5800 mq su unarea di 8000 mq a 1500 m dalluscita dellautostrada Padova est (IKEA). Ben collegato alla rete stradale e autostradale, a 300 m da dove sorgerà l'ospedale nuovo di Padova. Con ampio parcheggio. Per maggiori info chiamare in agenzia 0423 1856238 Rif: BL432
Dati principali
| Riferimento | BL432 |
| Data annuncio | 08/11/2025 |
| Contratto | Vendita |
| Tipologia | Capannone |
| Superficie | 5800 m2 |
| Occupato | Libero |
Costi
| Prezzo | 1.650.000 € |
| Prezzo al m2 | 284 €/m2 |
Efficienza energetica
| Tipo Alimentazione Riscaldamento | Altro |
| Classe energetica | Immobile esente da certificazione energetica |
Planimetrie
Indirizzo e mappa
VIA SILVIO PELLICO
5, Padova
Annuncio senza mappa,
prova a chiedere la posizione all'inserzionista
prova a chiedere la posizione all'inserzionista
Calcolo mutuo
Prezzo di vendita:
Anticipo
20,00
Mutuo
80,00
Tasso: -+
Rata: 4.719 al mese
I risultati sono una stima indicativa basata sui dati inseriti e non costituiscono un’offerta finanziaria.
Inserzionista
Chiama
CONTATTA


