Villa Via Turati, Rivalta di Torino
€ 249.000Bifamiliare in vendita
Nella frazione di Gerbole di Rivalta, in contesto tranquillo e di soli rustici, bifamiliare semi indipendente parzialmente ristrutturata.
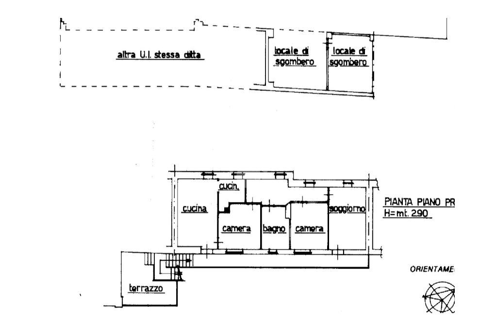
Al piano terra, il primo appartamento: il corridoio conduce a tutte le stanze della casa, la zona giorno con la sala da pranzo e la cucina e la zona notte con le due camere da letto e il bagno finestrato con vasca. L'alloggio è dotato di stufa a pellet.
Al primo piano, il secondo alloggio: l’ingresso è direttamente sulla sala da pranzo separata dalla cucina abitabile e dal salotto. Le camere da letto matrimoniali sono due e il bagno è ampio, finestrato con vasca.
Completano la proprietà vari locali di sgombero, magazzino, forno a legna, posti auto e terreno di circa 800 mq.
Ampie possibilità di recupero.
Al piano terra, il primo appartamento: il corridoio conduce a tutte le stanze della casa, la zona giorno con la sala da pranzo e la cucina e la zona notte con le due camere da letto e il bagno finestrato con vasca. L'alloggio è dotato di stufa a pellet.
Al primo piano, il secondo alloggio: l’ingresso è direttamente sulla sala da pranzo separata dalla cucina abitabile e dal salotto. Le camere da letto matrimoniali sono due e il bagno è ampio, finestrato con vasca.
Completano la proprietà vari locali di sgombero, magazzino, forno a legna, posti auto e terreno di circa 800 mq.
Ampie possibilità di recupero.
Dati principali
| Riferimento | 61137347 |
| Data annuncio | 07/11/2025 |
| Contratto | Vendita |
| Tipologia | Villa |
| Superficie | 200 m2 |
| Locali | più di 5 (4 camere da letto, 4 altro), 2 bagni |
| Piano | 1 totali |
Costi
| Prezzo | 249.000 € |
| Prezzo al m2 | 1.245 €/m2 |
Efficienza energetica
| Anno costruzione | 1967 |
| Riscaldamento | Autonomo |
| Tipo Alimentazione Riscaldamento | Gpl |
| Classe energetica | G |
| Indice di prestazione energetica (EP GL, REN) | 403.24 kWh/m3 anno |
| Indice di prestazione energetica (EP GL, NREN) | 403.24 kWh/m3 anno |
Planimetrie
Video
Indirizzo e mappa
Via Turati, Rivalta di Torino
Calcolo mutuo
Prezzo di vendita:
Anticipo
20,00
Mutuo
80,00
Tasso: -+
Rata: 712 al mese
I risultati sono una stima indicativa basata sui dati inseriti e non costituiscono un’offerta finanziaria.
Inserzionista
Chiama
CONTATTA

