Porzione di casa Borgata Battai dei Per, 13, Paesana
€ 49.000
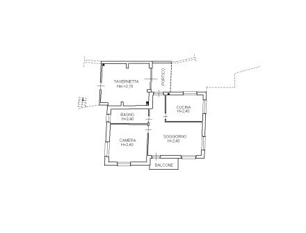
PAESANA - In una splendida borgata soleggiata situata a pochi minuti dal centro di Paesana, proponiamo una porzione di casa con ingresso autonomo al primo piano, costruita negli anni 70 e abitabile da subito con pochi interventi di personalizzazione. L'ingresso è su un disimpegno che conduce alla cucina. Qui l'ambiente è arricchito dalla presenza di una tipica stufa a legna. Il salotto, l'ampia camera da letto e il bagno con vasca completano la soluzione. Dal cortile si può accedere ad un ultimo locale, che veniva utilizzato come tavernetta con camino. Nella parte esterna si trova un grazioso giardino, cortile privato e alcune porzioni di terreno.
PER QUALSIASI INFORMAZIONE NON ESITATE A CONTATTARCI. SIAMO DISPONIBILI A FAR VISIONARE L'IMMOBILE DAL LUNEDÌ ALLA DOMENICA.
Seguiteci sui social:
Facebook (https://www.facebook.com/GruppoMonvisoImmobiliare)
Instagram (https://www.instagram.com/gruppomonvisoimmobiliare)
PER QUALSIASI INFORMAZIONE NON ESITATE A CONTATTARCI. SIAMO DISPONIBILI A FAR VISIONARE L'IMMOBILE DAL LUNEDÌ ALLA DOMENICA.
Seguiteci sui social:
Facebook (https://www.facebook.com/GruppoMonvisoImmobiliare)
Instagram (https://www.instagram.com/gruppomonvisoimmobiliare)
Dati principali
| Riferimento | P18 |
| Data annuncio | 08/03/2025 |
| Contratto | Vendita |
| Tipologia | Porzione di casa |
| Superficie | 60 m2 |
| Locali | 2 (1 camera da letto, 1 altro), 1 bagno, cucina abitabile |
| Piano | Rialzato, 3 totali |
| Tipo di costruzione | Civile |
| Occupato | Libero |
| Numero di balconi | 1 |
| Box auto | Assente |
| Arredamento | Completo |
| Impianto TV | Singolo |
Caratteristiche
Costi
| Prezzo | 49.000 € |
| Prezzo al m2 | 817 €/m2 |
Efficienza energetica
| Anno costruzione | 1970 |
| Stato | Buono |
| Riscaldamento | Autonomo |
| Tipo Impianto Di Riscaldamento | a stufa |
| Tipo Alimentazione Riscaldamento | Pellet |
| Infissi esterni | Vetro / Legno |
| Classe energetica | D |
| Indice di prestazione energetica (EP GL, NREN) | 119.15 kWh/m2 anno |
Planimetrie
Indirizzo e mappa
Borgata Battai dei Per, 13, Paesana
Calcolo mutuo
Prezzo di vendita:
Anticipo
20,00
Mutuo
80,00
Tasso: -+
Rata: 140 al mese
I risultati sono una stima indicativa basata sui dati inseriti e non costituiscono un’offerta finanziaria.
Inserzionista

Gruppo Monviso Immobiliare
Via Roma 24, Bagnolo Piemonte
Mostra Telefono
Chiama
CONTATTA

