Appartamento Via Villa Sperlinga 15, Palermo
€ 320.000
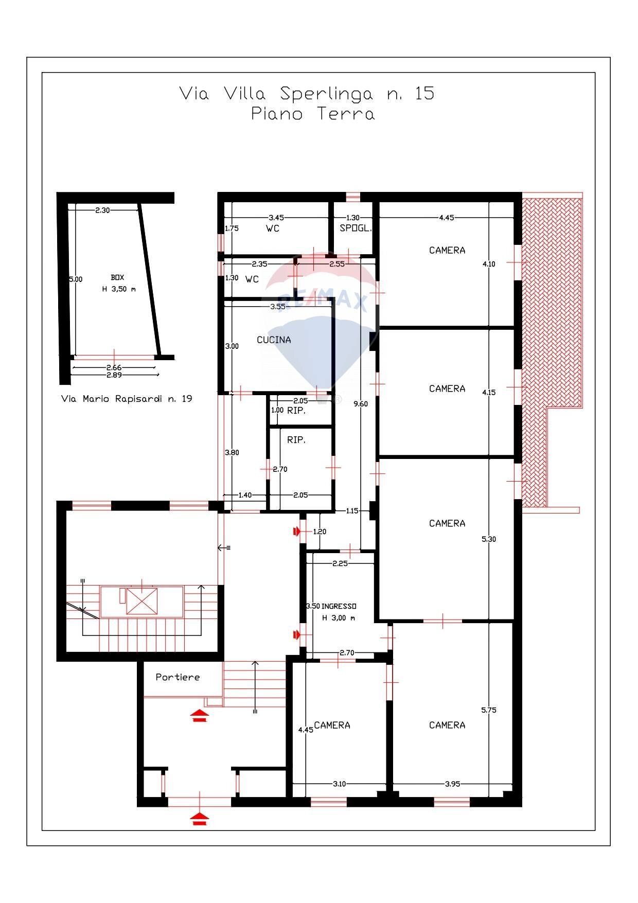
IN VENDITA Ampio appartamento nel cuore di Palermo Via Villa Sperlinga Proponiamo in vendita unampia unità immobiliare situata nel centro di Palermo, precisamente in Via Villa Sperlinga, una delle zone più richieste e servite della città. Limmobile, libero al rogito e privo di vincoli contrattuali, si trova al piano rialzato di una palazzina di cinque piani edificata nel 1965. L'immobile necessita comunque di una ristrutturazione complessiva, offrendo così la possibilità di personalizzare gli ambienti secondo le proprie esigenze abitative o professionali. La superficie è di 179 m² commerciali, distribuiti nel seguente modo: Due ingressi (uno principale e uno di servizio) Ampio salone pari a due vani Tre camere Cameretta (originariamente destinata al personale di servizio) Due locali ripostiglio Due WC Veranda sul retro Ampio balcone sul retro Completa la proprietà un box di 12 mq, valore sicuramente aggiunto vista la difficoltà di parcheggio che caratterizza il quartiere. Gli ambienti sono dotati di infissi in alluminio che assicurano sufficiente luminosità e una buona insonorizzazione. Grazie alla generosa metratura, alla presenza del doppio ingresso e alla posizione centrale e strategica, limmobile si presta particolarmente anche come studio professionale, ufficio associato o poliambulatorio, oltre che come abitazione di rappresentanza.
Dati principali
| Riferimento | 22841067-152 |
| Data annuncio | 07/11/2025 |
| Contratto | Vendita |
| Tipologia | Appartamento |
| Superficie | 179 m2 |
| Locali | più di 5 (3 camere da letto, 3 altro), 2 bagni, cucina abitabile |
| Piano | Ammezzato, 6 totali |
| Tipo di costruzione | Media |
| Occupato | Libero |
| Box auto | Singolo |
| Arredamento | Assente |
Caratteristiche
Costi
| Prezzo | 320.000 € |
| Prezzo al m2 | 1.788 €/m2 |
Efficienza energetica
| Riscaldamento | Autonomo |
| Classe energetica | F |
| Indice di prestazione energetica (IPE) | 95 kWh/m2 anno |
Planimetrie
Indirizzo e mappa
Via Villa Sperlinga
15, Palermo
Annuncio senza mappa,
prova a chiedere la posizione all'inserzionista
prova a chiedere la posizione all'inserzionista
Calcolo mutuo
Prezzo di vendita:
Anticipo
20,00
Mutuo
80,00
Tasso: -+
Rata: 915 al mese
I risultati sono una stima indicativa basata sui dati inseriti e non costituiscono un’offerta finanziaria.
Inserzionista
Chiama
CONTATTA


