Appartamento Vico dei Fieschi 2, Lecce
€ 465.000Appartamento - Pentalocale a Lecce
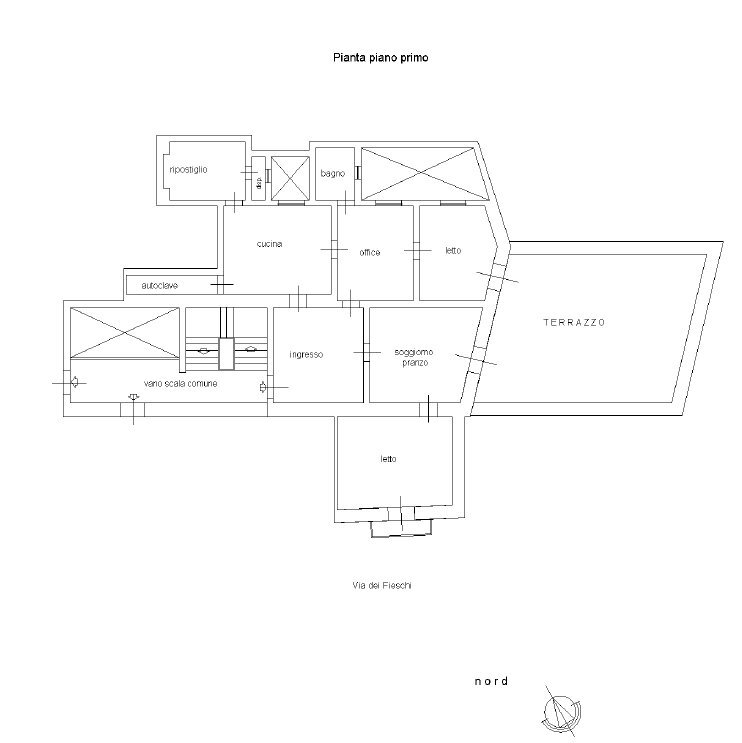
Prestigioso pentalocale nel cuore del centro storico di Lecce Nel pieno centro storico di Lecce, a pochi passi dai principali monumenti e dai servizi della città, proponiamo in vendita un ampio appartamento di circa 290 m² commerciali, situato al primo piano di un elegante contesto d’epoca. La proprietà, sviluppata su un unico livello e caratterizzata da soffitti alti e ambienti luminosi, offre una superficie abitativa commerciale di circa 220 m², attualmente composta da ingresso, doppio salone, cucina abitabile, due camere da letto e doppi servizi. L’immobile necessita di interventi di ristrutturazione, che consentono una totale personalizzazione degli spazi in base alle proprie esigenze abitative o professionali. A completare il valore della soluzione, un ampio terrazzo di circa 67 m² al piano principale, ideale per vivere momenti di relax all’aperto, e ulteriori 150 m² di lastrico solare al piano secondo, con potenzialità di sviluppo. Dotazioni: riscaldamento autonomo a gas con radiatori, porta blindata, citofono, lastrico solare e accesso pedonale. Posizione Ubicato in una delle zone più prestigiose del centro storico, l’appartamento rappresenta una soluzione rara sul mercato leccese: perfetta sia per chi ricerca una dimora di rappresentanza sia per investitori interessati a progetti ricettivi o professionali. Prezzo di vendita: euro 465.000 Classe energetica: G Contattaci per fissare una visita Grimaldi Store Lecce
Dati principali
| Riferimento | 465fieschi |
| Data annuncio | 04/11/2025 |
| Contratto | Vendita |
| Tipologia | Appartamento |
| Superficie | 290 m2 |
| Locali | più di 5 (2 camere da letto, 5 altro), 2 bagni |
| Piano | 1 totali |
| Numero di terrazzi | 1 |
Costi
| Prezzo | 465.000 € |
| Prezzo al m2 | 1.603 €/m2 |
Efficienza energetica
| Anno costruzione | 1860 |
| Classe energetica | G |
Planimetrie
Indirizzo e mappa
Vico dei Fieschi 2, Lecce
Calcolo mutuo
Prezzo di vendita:
Anticipo
20,00
Mutuo
80,00
Tasso: -+
Rata: 1.330 al mese
I risultati sono una stima indicativa basata sui dati inseriti e non costituiscono un’offerta finanziaria.
Inserzionista
Nike Immobiliare S.r.l.
Via Vico dei Fieschi 16, Lecce
Mostra Telefono
Mostra Cellulare
Chiama
CONTATTA

