Trilocale Via Cadorna, Alba
€ 108.000Trilocale in vendita
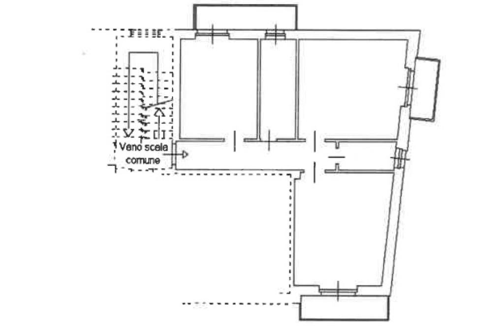
ALBA - In posizione tranquilla e soleggiata, appartamento di tre locali situato al primo piano di un condominio libero su tre lati, che garantisce un’ottima luminosità. L’abitazione si apre su un comodo ingresso con disimpegno e si compone di cucina e soggiorno in ambienti separati, una camera da letto matrimoniale, un bagno finestrato e un ripostiglio con finestra, nel quale è possibile ricavare un secondo bagno o una pratica lavanderia. A completare la proprietà troviamo tre balconi e al piano terra una cantina e un garage, ideali per chi cerca comfort e spazi aggiuntivi. Le facciate e i balconi del condominio sono stati ristrutturati, un importante intervento che valorizza ulteriormente l’immobile. L’appartamento necessita di lavori di ristrutturazione interna, un aspetto che rappresenta però un occasione per personalizzare gli ambienti e creare la casa su misura dei propri desideri. Una soluzione luminosa, funzionale e ricca di potenziale, perfetta per chi desidera investire in una casa da plasmare secondo il proprio gusto o per chi cerca un’abitazione accogliente e ben posizionata.
Si informa che alcune immagini raffiguranti gli ambienti arredati sono state realizzate mediante intelligenza artificiale e hanno finalità esclusivamente illustrative, per mostrare un’ipotesi di ristrutturazione.
Si informa che alcune immagini raffiguranti gli ambienti arredati sono state realizzate mediante intelligenza artificiale e hanno finalità esclusivamente illustrative, per mostrare un’ipotesi di ristrutturazione.
Dati principali
| Riferimento | 61136092 |
| Data annuncio | 05/11/2025 |
| Contratto | Vendita |
| Tipologia | Appartamento |
| Superficie | 79 m2 |
| Locali | 3 (3 altro), 1 bagno |
| Piano | 1 di 3 totali |
Costi
| Prezzo | 108.000 € |
| Prezzo al m2 | 1.367 €/m2 |
| Spese condominiali | € 150,00/mese |
Efficienza energetica
| Riscaldamento | Centralizzato |
| Tipo Alimentazione Riscaldamento | Metano |
| Classe energetica | E |
| Indice di prestazione energetica (EP GL, REN) | 13.8 kWh/m3 anno |
| Indice di prestazione energetica (EP GL, NREN) | 154.58 kWh/m3 anno |
Planimetrie
Video
Indirizzo e mappa
Via Cadorna, Alba
Calcolo mutuo
Prezzo di vendita:
Anticipo
20,00
Mutuo
80,00
Tasso: -+
Rata: 309 al mese
I risultati sono una stima indicativa basata sui dati inseriti e non costituiscono un’offerta finanziaria.
Inserzionista
Agenzia Tecnocasa Studio Langhe Sas
Corso Italia, 8/D, Alba
Mostra Telefono
Chiama
CONTATTA

