Trilocale Via Roma, Cafasse
€ 60.000Trilocale in vendita
Cafasse - Nella via principale del paese, comodo a tutti i servizi, alle scuole e alla fermata del bus della linea Torino/Venaria - Ciriè - Lanzo.
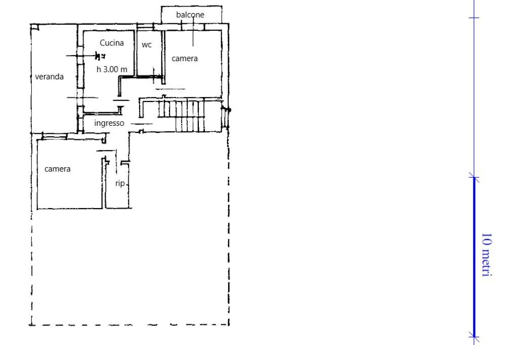
Appartamento in piccolo contesto di soli due appartamenti sviluppati entrambi al primo piano. L'alloggio in vendita è composto da ingresso spazioso con ripostiglio doppio, cucina abitabile, due grandi camere da letto e bagno finestrato. Vi sono poi due comodi balconi. A completare c'è il sottotetto e la cantina finestrata.
L'alloggio necessita di qualche lavoro di ristrutturazione per poter sfruttare al meglio le sue potenzialità. Il vantaggio si trova nella posizione e nelle spese condominiali minime poichè i contatori separati rendono l'immobile completamente autonomo.
VI PROPONIAMO UNA VALUTAZIONE GRATUITA DEL VOSTRO IMMOBILE, CONTATTATECI SENZA ALCUN IMPEGNO ALLO 0110161588 O 3485251993. L'AGENZIA AFFILIATA TECNORETE DI FIANO METTERA' A VOSTRA DISPOSIZIONE L'ESPERIENZA MATURATA NEGLI ANNI DI PROFESSIONE E DI ATTIVITA'
Appartamento in piccolo contesto di soli due appartamenti sviluppati entrambi al primo piano. L'alloggio in vendita è composto da ingresso spazioso con ripostiglio doppio, cucina abitabile, due grandi camere da letto e bagno finestrato. Vi sono poi due comodi balconi. A completare c'è il sottotetto e la cantina finestrata.
L'alloggio necessita di qualche lavoro di ristrutturazione per poter sfruttare al meglio le sue potenzialità. Il vantaggio si trova nella posizione e nelle spese condominiali minime poichè i contatori separati rendono l'immobile completamente autonomo.
VI PROPONIAMO UNA VALUTAZIONE GRATUITA DEL VOSTRO IMMOBILE, CONTATTATECI SENZA ALCUN IMPEGNO ALLO 0110161588 O 3485251993. L'AGENZIA AFFILIATA TECNORETE DI FIANO METTERA' A VOSTRA DISPOSIZIONE L'ESPERIENZA MATURATA NEGLI ANNI DI PROFESSIONE E DI ATTIVITA'
Dati principali
| Riferimento | 61136031 |
| Data annuncio | 03/11/2025 |
| Contratto | Vendita |
| Tipologia | Appartamento |
| Superficie | 87 m2 |
| Locali | 3 (3 altro), 1 bagno |
| Piano | 1 di 2 totali |
Costi
| Prezzo | 60.000 € |
| Prezzo al m2 | 690 €/m2 |
| Spese condominiali | € 3,00/mese |
Efficienza energetica
| Anno costruzione | 1970 |
| Riscaldamento | Autonomo |
| Tipo Alimentazione Riscaldamento | Metano |
| Classe energetica | F |
| Indice di prestazione energetica (EP GL, REN) | 1.25 kWh/m3 anno |
| Indice di prestazione energetica (EP GL, NREN) | 348.15 kWh/m3 anno |
Planimetrie
Video
Indirizzo e mappa
Via Roma, Cafasse
Calcolo mutuo
Prezzo di vendita:
Anticipo
20,00
Mutuo
80,00
Tasso: -+
Rata: 172 al mese
I risultati sono una stima indicativa basata sui dati inseriti e non costituiscono un’offerta finanziaria.
Inserzionista
Chiama
CONTATTA

