Attico via Giovanni Amendola, Sassari
€ 280.000ELEGANTE APPARTAMENTO SU DUE LIVELLI CON AMPIO TERRAZZO
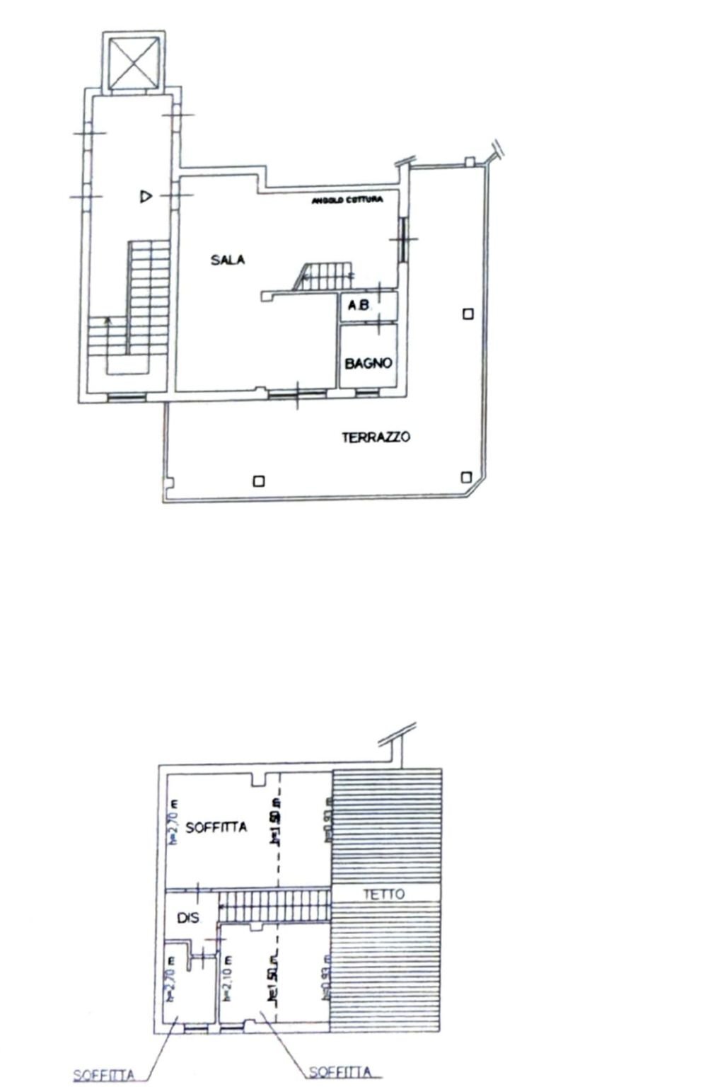
In una delle zone più richieste e residenziali di Sassari, proponiamo in vendita un meraviglioso appartamento su due livelli, situato al quarto e quinto piano di una palazzina di recente costruzione, servita da ascensore e rifinita con materiali di pregio. L’immobile colpisce sin da subito per la luminosità e l’ampiezza degli spazi, con una distribuzione interna moderna e funzionale. Al piano inferiore (quarto piano), si apre su una splendida zona giorno in open space, con cucina a vista e zona living affacciata su un grande terrazzo angolare in stile L, ideale per momenti conviviali, cene all’aperto o semplicemente per godersi la tranquillità e la vista. Le ampie vetrate sui due lati donano luce naturale in ogni momento della giornata, valorizzando l’eleganza del parquet presente in tutta la casa. Completano il piano un comodo bagno con antibagno e impianto domotico che garantisce comfort e controllo totale della casa. Una scala interna conduce al piano superiore (quinto piano),mansardato, adibito a zona notte, composto da una spaziosa camera matrimoniale, una cameretta, un secondo bagno e ambienti accoglienti e ben distribuiti. A completare la proprietà un garage privato con accesso da rampa con cancello elettrico, collegato internamente al palazzo tramite ascensore che porta direttamente all'appartamento: una comodità rara e preziosa. Caratteristiche principali: • Costruzione recente • Ottime rifiniture • Parquet in tutta la casa • Domotica • Ampio terrazzo angolare vivibile • 2 bagni • Garage con collegamento interno • Ascensore Questa soluzione rappresenta un'opportunità unica, perfetta per chi cerca una casa moderna, elegante e pronta da vivere, in una posizione strategica, comoda ai servizi ma allo stesso tempo tranquilla. Possibilità acquisto arredi a parte. Contattaci per maggiori informazioni o per prenotare una visita. Punti di forza dell'immobile: - Contesto esclusivo - Luminosità - Terrazzo L'immobile è situato a pochi metri dalle stazioni di PIAZZA MARCONI (120 m), CLINICHE UNIVERSITARIE e di altre 6 stazioni ferroviarie entro 500mt Le linee autobus più vicine sono SASSARI CORSO R.MARGHERITA (400 m) e SASSARI CORSO MARGHERITA DI SAVOIA (480 m). La rete tramviaria è accessibile dalle fermate di PIAZZA MARCONI (120 m), SANT'ANNA e altre 4 stazioni. Gli asili per bambini nelle vicinanze dell'immobile sono SCUOLA DELL'INFANZIA PORCELLANA (80 m), SANTA TERESA DEL BAMBIN GESU' e altri 3 asili entro il raggio di 250 m. Inoltre, l'offerta scolastica comprende gli istituti: PORCELLANA (20 m), SALVATOR RUIU e altre 8 scuole nel raggio di 470 m. È presente nelle vicinanze dell'immobile il servizio sanitario SS. ANNUNZIATA (420 m). Stai pensando di vendere o affittare casa? Con RockAgent puoi vendere o affittare il tuo immobile assicurandoti un servizio eccellente, garantito da agenti immobiliari selezionati supportati da un team tecnico, marketing e legale di altissimo livello. Visita il sito RockAgent.it e ottieni una valutazione gratuita del tuo immobile.
Dati principali
| Riferimento | 160542 - 30/10/2025 |
| Data annuncio | 30/10/2025 |
| Contratto | Vendita |
| Tipologia | Attico |
| Superficie | 73 m2 |
| Locali | 4 (2 camere da letto, 2 altro), 2 bagni, cucina a vista |
| Piano | 3 di 4 totali |
| Tipo di costruzione | Signorile |
| Numero di terrazzi | 1 |
| Box auto | Singolo |
| Arredamento | Assente |
Caratteristiche
Costi
| Prezzo | 280.000 € |
| Prezzo al m2 | 3.836 €/m2 |
| Spese condominiali | € 58,00/mese |
Efficienza energetica
| Anno costruzione | 2013 |
| Stato | Nuovo |
| Riscaldamento | Autonomo |
| Classe energetica | B |
| Indice di prestazione energetica (IPE) | 175 kWh/m2 anno |
Planimetrie
Indirizzo e mappa
via Giovanni Amendola, Sassari
Calcolo mutuo
Prezzo di vendita:
Anticipo
20,00
Mutuo
80,00
Tasso: -+
Rata: 801 al mese
I risultati sono una stima indicativa basata sui dati inseriti e non costituiscono un’offerta finanziaria.
Inserzionista

RockAgent
Via di Santa Costanza 21, Roma
Mostra Telefono
Chiama
CONTATTA

