Casale Via di Nozzano 611, Lucca
€ 220.000Casa colonica - d'angolo a Lucca
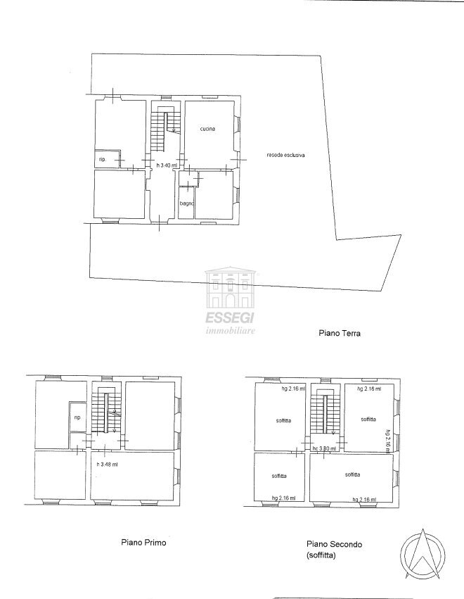
IA04140 - MERAVIGLIOSA PORZIONE DI CASA COLONICA IN PIETRA - A 6 km da Lucca, in direzione ovest, Essegi immobiliare propone in Esclusiva caratteristica porzione di antica casa colonica in pietra, elevata a due piani fuori terra, oltre ampia e luminosa mansarda, per mq complessivi 270 circa, corredata da giardino e terreno di circa 1000 mq ; l' immobile proposto, caratterizzato da un' architettura di pregio, con soffitti alti ed ampie finestre ad arco, che donano luminosità agli ambienti, si compone al piano terra di; ampio ingresso, soggiorno, pranzo, cucina, ripostiglio, camera/studio; al piano primo: quattro camere matrimoniali e ripostiglio; al piano secondo mansardato: quattro vani ampiamente finestrate. Richiesta €. 220.000,00 N.B.: Avvisiamo che la localizzazione dell'immobile è approssimativa: l'indirizzo e la posizione sulla mappa non corrispondono alla sua esatta ubicazione.
Dati principali
| Riferimento | IA04140 |
| Data annuncio | 24/10/2025 |
| Contratto | Vendita |
| Tipologia | Casale |
| Superficie | 270 m2 |
| Locali | più di 5 (4 camere da letto, 8 altro), 1 bagno |
| Piano | 1 totali |
| Numero posti auto | 1 |
Costi
| Prezzo | 220.000 € |
| Prezzo al m2 | 815 €/m2 |
Efficienza energetica
| Anno costruzione | 1800 |
| Classe energetica | G |
Planimetrie
Indirizzo e mappa
Via di Nozzano 611, Lucca
Calcolo mutuo
Prezzo di vendita:
Anticipo
20,00
Mutuo
80,00
Tasso: -+
Rata: 629 al mese
I risultati sono una stima indicativa basata sui dati inseriti e non costituiscono un’offerta finanziaria.
Inserzionista

Essegi Immobiliare S.r.l.
Viale Pacini 115, Lucca
Mostra Telefono
Chiama
CONTATTA

