Bilocale Via Guglielmo D'alzano, Bergamo
€ 268.000
- BERGAMO CENTRALE
Elegante appartamento bilocale di mq 55 in fase attuale di totale ristrutturazione energetica per la classe A1 dotato di balcone e autorimessa disponibile.
Immobile situato al piano terzo di contesto signorile dotato di ascensore, situato in posizione centralissima a pochi passi da via Papa Giovanni XXIII, da via XX Settembre e dal Sentierone, tutti i servizi ed i negozi sono disponibili a pochi metri dall'immobile, comodo per raggiungere la superstrada e l'autostrada nonchè per raggiungere la stazione ferroviaria a piedi.
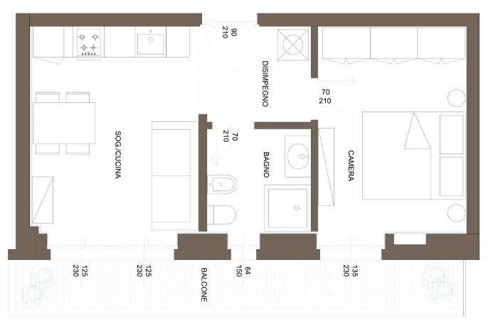
Internamente l'appartamento sarà composto da grande disimpegno con area lavanderia, soggiorno con cucina open space ed accesso al balcone, bagno finestrato ed ampia camera padronale con accesso al balcone.
L'appartamento è in corso la totale ristrutturazione con adeguamento energetico in consegna per estate 2026, le rifiniture e gli impianti saranno di prima qualità e attualmente personalizzabili, infissi termici performanti, tapparelle motorizzate, predisposizione aria condizionata, pavimentazioni in moderno gres o parquet, predisposizione impianto domotico, predisposizione allarme, tinteggiatura e porta blindata, nuovi impianti idrici ed elettrici con conformità, inoltre l'immobile verrà completamente coibentato tramite cappotto interno, dotato di scambiatori d'aria e possibile installazione di pompa di calore per climatizzazione per la classe energetica A.
Vi è ampia possibilità di personalizzazione degli spazi e delle rifiniture nelle prime fasi dell'intervento di ristrutturazione.
268.000,00
Spese condominiali 1.000,00 compreso riscaldamento.
Disponibile autorimessa distante pochi metri dall'immobile per 55.000,00
E' disponibile la cessione del credito fiscale derivante dalla ristrutturazione.
L'immobile si presta perfettamente sia come abitazione personale che come investimento per una messa a reddito sicura in una posizione di alta qualità e di primaria richiesta locativa.
CLASSE ENERGETICA: A1
Vai all'annuncio: https://www.studio-valle.com/it/bergamo-centrale-88/
STUDIO IMMOBILIARE VALLE
Flaminia S.r.l.
Real estate and investments
24121 Bergamo - Italy
V.le Vitt. Emanuele II n. 65
tel +39 035 231588
WhatsApp: +39 3920190070
www.studio-valle.com
[email protected]
Facebook: StudioImmobiliareValle
Twitter: ValleRealEstate
Skype: Valle-Real-Estate
Elegante appartamento bilocale di mq 55 in fase attuale di totale ristrutturazione energetica per la classe A1 dotato di balcone e autorimessa disponibile.
Immobile situato al piano terzo di contesto signorile dotato di ascensore, situato in posizione centralissima a pochi passi da via Papa Giovanni XXIII, da via XX Settembre e dal Sentierone, tutti i servizi ed i negozi sono disponibili a pochi metri dall'immobile, comodo per raggiungere la superstrada e l'autostrada nonchè per raggiungere la stazione ferroviaria a piedi.
Internamente l'appartamento sarà composto da grande disimpegno con area lavanderia, soggiorno con cucina open space ed accesso al balcone, bagno finestrato ed ampia camera padronale con accesso al balcone.
L'appartamento è in corso la totale ristrutturazione con adeguamento energetico in consegna per estate 2026, le rifiniture e gli impianti saranno di prima qualità e attualmente personalizzabili, infissi termici performanti, tapparelle motorizzate, predisposizione aria condizionata, pavimentazioni in moderno gres o parquet, predisposizione impianto domotico, predisposizione allarme, tinteggiatura e porta blindata, nuovi impianti idrici ed elettrici con conformità, inoltre l'immobile verrà completamente coibentato tramite cappotto interno, dotato di scambiatori d'aria e possibile installazione di pompa di calore per climatizzazione per la classe energetica A.
Vi è ampia possibilità di personalizzazione degli spazi e delle rifiniture nelle prime fasi dell'intervento di ristrutturazione.
268.000,00
Spese condominiali 1.000,00 compreso riscaldamento.
Disponibile autorimessa distante pochi metri dall'immobile per 55.000,00
E' disponibile la cessione del credito fiscale derivante dalla ristrutturazione.
L'immobile si presta perfettamente sia come abitazione personale che come investimento per una messa a reddito sicura in una posizione di alta qualità e di primaria richiesta locativa.
CLASSE ENERGETICA: A1
Vai all'annuncio: https://www.studio-valle.com/it/bergamo-centrale-88/
STUDIO IMMOBILIARE VALLE
Flaminia S.r.l.
Real estate and investments
24121 Bergamo - Italy
V.le Vitt. Emanuele II n. 65
tel +39 035 231588
WhatsApp: +39 3920190070
www.studio-valle.com
[email protected]
Facebook: StudioImmobiliareValle
Twitter: ValleRealEstate
Skype: Valle-Real-Estate
Dati principali
| Riferimento | bgdalz55 |
| Data annuncio | 30/10/2025 |
| Contratto | Vendita |
| Tipologia | Appartamento |
| Superficie | 55 m2 |
| Locali | 2 (1 camera da letto, 1 altro), 1 bagno, cucina angolo cottura |
| Piano | 3 di 5 totali |
| Tipo di costruzione | Signorile |
| Box auto | Singolo |
| Arredamento | Assente |
Caratteristiche
Costi
| Prezzo | 268.000 € |
| Prezzo al m2 | 4.873 €/m2 |
Efficienza energetica
| Riscaldamento | Semi-autonomo |
| Classe energetica | A1 |
Planimetrie
Indirizzo e mappa
Via Guglielmo D'alzano, Bergamo
Annuncio senza mappa,
prova a chiedere la posizione all'inserzionista
prova a chiedere la posizione all'inserzionista
Calcolo mutuo
Prezzo di vendita:
Anticipo
20,00
Mutuo
80,00
Tasso: -+
Rata: 766 al mese
I risultati sono una stima indicativa basata sui dati inseriti e non costituiscono un’offerta finanziaria.
Inserzionista

Studio Immobiliare Valle
Viale Vittorio Emanuele II 65, Bergamo
Mostra Telefono
Chiama
CONTATTA

