Trilocale Via Fabio Filzi 1, Laveno-Mombello
€ 330.000
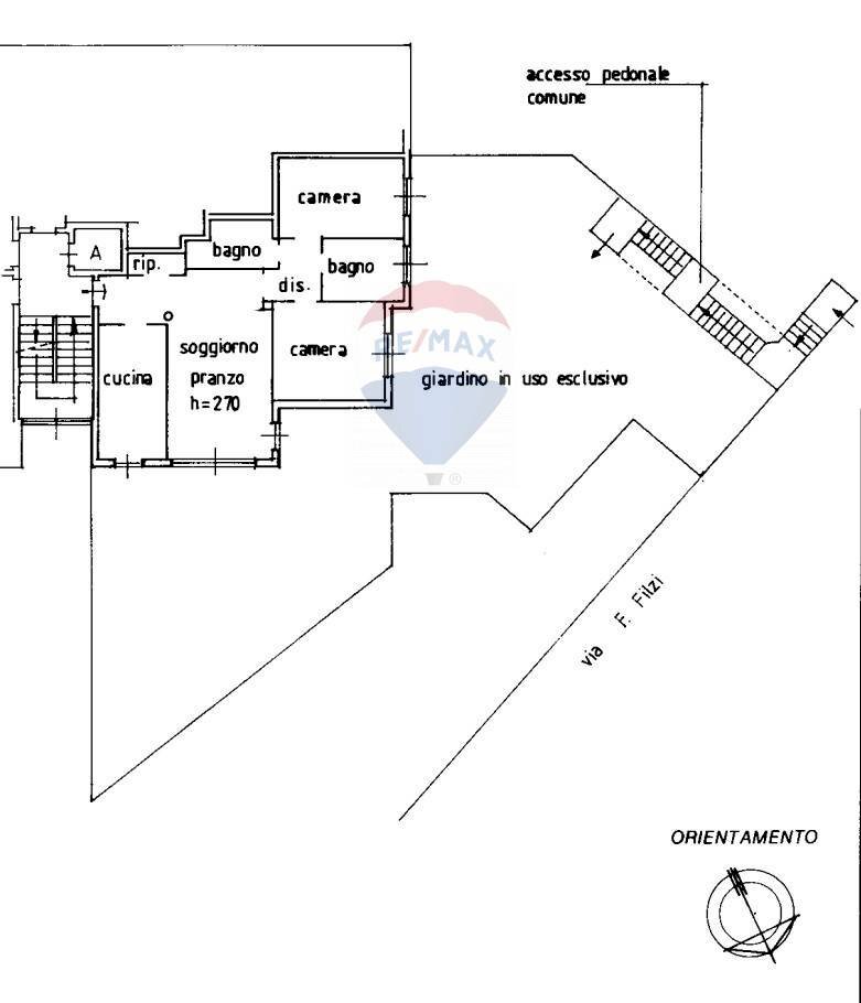
A pochi passi dal Lago Maggiore, nel cuore di Laveno, proponiamo in vendita un elegante e luminoso appartamento al piano terra di una palazzina signorile edificata nel 1997 e composta da cinque piani. Limmobile, in ottimo stato di conservazione, offre una superficie di 107 mq sapientemente distribuita: ingresso, ampio soggiorno con grande vetrata e accesso diretto al giardino privato, cucina separata, ripostiglio, un'ampia camera matrimoniale con grande cabina armadio, cameretta di metrature generose e doppi servizi uno con doccia e l'altro con vasca da bagno. Il giardino di circa 200 mq, curato e ben piantumato, rappresenta unoasi di tranquillità perfetta per godere di momenti di relax allaperto. Completano la proprietà una cantina e un comodo box doppio. Il riscaldamento è autonomo e le spese condominiali ammontano a circa 1.000 euro annui. Laveno Mombello è una delle località più rinomate della sponda lombarda del Lago Maggiore, apprezzata per la qualità della vita, la presenza di servizi, ristoranti, boutique e collegamenti diretti con Verbania e le isole Borromee tramite il traghetto. La stazione ferroviaria e la funivia panoramica completano un contesto ideale per chi desidera vivere in un ambiente suggestivo, tra lago e montagna. Una soluzione abitativa di pregio, pronta da abitare, ideale per chi desidera vivere in centro, a pochi metri dal lago, senza rinunciare a comfort e privacy. L'appartamento viene venduto con l'arredo principale, esclusi alcuni componenti. Prenota subito la tua visita, oppure se vuoi capire subito gli spazi interni, dai un occhio al virtual tour! 🇬🇧 Just a few steps from Lake Maggiore, in the heart of Laveno, we offer for sale an elegant and bright ground-floor apartment in a refined five-story building constructed in 1997. The property, in excellent condition, offers a total living space of 107 sqm, intelligently arranged as follows: entrance hall, spacious living room with large windows and direct access to the private garden, separate kitchen, two bedrooms, and two bathrooms. The beautifully landscaped private garden provides a peaceful and green retreat, perfect for relaxing or entertaining outdoors. A double garage and cellar complete the property. The heating system is independent, and the condominium fees amount to approximately 1,000 per year. Laveno Mombello is one of the most charming and sought-after towns on the Lombard shore of Lake Maggiore, renowned for its high quality of life, wide range of services, fine restaurants, and elegant boutiques. The town offers ferry connections to Verbania and the Borromean Islands, as well as a railway station and a panoramic cable carmaking it an ideal location for those seeking a lifestyle that blends lake, nature, and comfort. A ready-to-move-in property of great character, ideal for those wishing to live in the town center, just steps from the lake, while enjoying privacy, space, and style. 🇩🇪 Nur wenige Schritte vom Lago Maggiore entfernt, im Herzen von Laveno, bieten wir eine elegante und helle Wohnung im Erdgeschoss eines gepflegten fünfstöckigen Wohnhauses aus dem Jahr 1997 zum Verkauf an. Die Immobilie befindet sich in ausgezeichnetem Zustand und verfügt über eine Wohnfläche von insgesamt 107 m². Sie ist wie folgt aufgeteilt: Eingangsbereich, großzügiges Wohnzimmer mit großen Fensterfronten und direktem Zugang zum privaten Garten, separate Küche, zwei Schlafzimmer und zwei Badezimmer. Der wunderschön angelegte private Garten bietet eine Oase der Ruhe und ist ideal zum Entspannen oder für gemütliche Stunden im Freien. Ein Doppelgarage und ein Keller runden dieses attraktive Angebot ab. Die Heizung ist autonom, die jährlichen Nebenkosten belaufen sich auf etwa 1.000 . Laveno Mombello ist einer der charmantesten und begehrtesten Orte am lombardischen Ufer des Lago Maggiore. Die Stadt ist bekannt für ihre hohe Lebensqualität, eine...
Dati principali
| Riferimento | 21531036-328 |
| Data annuncio | 30/10/2025 |
| Contratto | Vendita |
| Tipologia | Appartamento |
| Superficie | 107 m2 |
| Locali | 3 (2 camere da letto, 1 altro), 2 bagni, cucina abitabile |
| Piano | Terra, 5 totali |
| Tipo di costruzione | Signorile |
| Occupato | Libero |
| Box auto | Doppio |
| Arredamento | Completo |
Caratteristiche
Costi
| Prezzo | 330.000 € |
| Prezzo al m2 | 3.084 €/m2 |
Efficienza energetica
| Stato | Ottimo |
| Riscaldamento | Autonomo |
| Classe energetica | D |
| Indice di prestazione energetica (IPE) | - |
Planimetrie
Virtual tour
Indirizzo e mappa
Via Fabio Filzi
1, Laveno-Mombello
Annuncio senza mappa,
prova a chiedere la posizione all'inserzionista
prova a chiedere la posizione all'inserzionista
Calcolo mutuo
Prezzo di vendita:
Anticipo
20,00
Mutuo
80,00
Tasso: -+
Rata: 944 al mese
I risultati sono una stima indicativa basata sui dati inseriti e non costituiscono un’offerta finanziaria.
Inserzionista
Chiama
CONTATTA


