Casa indipendente VIA MONTE GRAPPA 16, Godega di Sant'Urbano
€ 158.000
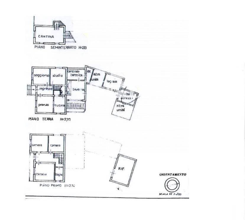
CASA INDIPENDENTE IN VENDITA A GODEGA DI SANT'URBANO Questa casa costruita negli anni '60 sviluppata su due livelli si trova a due passi del centro di Pianzano in zona comoda e ben servita. L'abitazione si sviluppa su due livelli fuori terra. Il piano terra, attualmente allo stato di grezzo avanzato è di mq 90 circa, ospita una cucina, un soggiorno, una sala da pranzo, una piccola taverna con caminetto e centrale termica. Al piano primo troviamo 3 comode camere e un servizio con vasca. Esternamente troviamo un ricovero attrezzi, due garage e un ripostiglio interrato. Completa la proprietà un giardino di circa 625mq. Per avere maggiori informazioni su questa casa indipendente con giardino a Gaiarine o per prenotare una visita in ufficio, potete contattarci presso l'Agenzia immobiliare impREsa di Conegliano telefonando al n. 0438 23921, citando il rif. I/MS005 oppure chiedendo informazioni presso la nostra sede in Via C. Colombo 51, Conegliano. www.impresaimmobiliare.com
Dati principali
| Riferimento | I/MS005 |
| Data annuncio | 30/10/2025 |
| Contratto | Vendita |
| Tipologia | Casa indipendente |
| Superficie | 231 m2 |
| Locali | più di 5 (3 camere da letto, 4 altro), 1 bagno, cucina abitabile |
| Piano | Su più livelli, 1 totali |
| Occupato | Libero |
| Box auto | Doppio |
| Arredamento | Assente |
Caratteristiche
Costi
| Prezzo | 158.000 € |
| Prezzo al m2 | 684 €/m2 |
Efficienza energetica
| Stato | Da ristrutturare |
| Riscaldamento | Autonomo |
| Classe energetica | G |
| Indice di prestazione energetica (IPE) | - |
Planimetrie
Virtual tour
Indirizzo e mappa
VIA MONTE GRAPPA
16, Godega di Sant'Urbano
Annuncio senza mappa,
prova a chiedere la posizione all'inserzionista
prova a chiedere la posizione all'inserzionista
Calcolo mutuo
Prezzo di vendita:
Anticipo
20,00
Mutuo
80,00
Tasso: -+
Rata: 452 al mese
I risultati sono una stima indicativa basata sui dati inseriti e non costituiscono un’offerta finanziaria.
Inserzionista

ImpREsa Conegliano
Via Cristoforo Colombo, 51, Conegliano
Mostra Telefono
Chiama
CONTATTA

