Dimora Storica Fratelli Cervi Fratelli cervi, Reggio nell'Emilia
€ 690.000Complesso in vendita
PIEVE MODOLENA: Tecnocasa San Pellegrino propone in esclusiva un'interessante soluzione immobiliare un fabbricato intero sulla via Emilia che collega la citta di REGGIO EMILIA CON PARMA composta da locale commerciale a piano terra e di 3 appartamenti al piano primo e al piano secondo, ideale per chi cerca uno spazio versatile dove vivere e lavorare.
Al piano terra troviamo un ampio locale commerciale di 250 mq, suddiviso in due aree funzionali: una parte è attualmente adibita a laboratorio, mentre l’altra è destinata alla vendita al pubblico. Un ambiente spazioso, perfetto per attività artigianali, showroom, ristorante o negozi con produzione interna.
Scendendo al piano seminterrato, sono presenti i magazzini di 130 mq, ideali per lo stoccaggio o come supporto logistico all’attività commerciale.
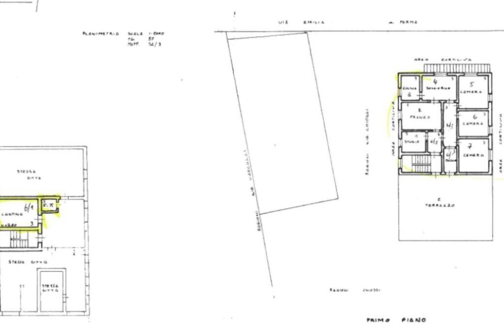
Salendo al primo piano, si accede all’appartamento principale di circa 160 mq, composto da tre camere da letto matrimoniali, una cucina abitabile, un ampio soggiorno e sala da pranzo con balcone, uno studio, un bagno e un grande terrazzo esposto a sud, perfetto per rilassarsi all’aperto.
Al secondo piano, troviamo un bilocale mansardato e un ulteriore spazio attualmente utilizzato come soffitta, ma con la possibilità di essere trasformato in un secondo appartamento mini appartamento.
A completare la proprietà, un’ampia area cortiliva privata, anch’essa esposta a sud, ideale come parcheggio, giardino o spazio multifunzionale.
L’immobile si trova in posizione comoda e ben servita, ed è la soluzione perfetta per chi desidera coniugare l’attività lavorativa con la vita privata, il tutto in un unico contesto.
Contattaci per maggiori informazioni o per fissare una visita!
Al piano terra troviamo un ampio locale commerciale di 250 mq, suddiviso in due aree funzionali: una parte è attualmente adibita a laboratorio, mentre l’altra è destinata alla vendita al pubblico. Un ambiente spazioso, perfetto per attività artigianali, showroom, ristorante o negozi con produzione interna.
Scendendo al piano seminterrato, sono presenti i magazzini di 130 mq, ideali per lo stoccaggio o come supporto logistico all’attività commerciale.
Salendo al primo piano, si accede all’appartamento principale di circa 160 mq, composto da tre camere da letto matrimoniali, una cucina abitabile, un ampio soggiorno e sala da pranzo con balcone, uno studio, un bagno e un grande terrazzo esposto a sud, perfetto per rilassarsi all’aperto.
Al secondo piano, troviamo un bilocale mansardato e un ulteriore spazio attualmente utilizzato come soffitta, ma con la possibilità di essere trasformato in un secondo appartamento mini appartamento.
A completare la proprietà, un’ampia area cortiliva privata, anch’essa esposta a sud, ideale come parcheggio, giardino o spazio multifunzionale.
L’immobile si trova in posizione comoda e ben servita, ed è la soluzione perfetta per chi desidera coniugare l’attività lavorativa con la vita privata, il tutto in un unico contesto.
Contattaci per maggiori informazioni o per fissare una visita!
Dati principali
| Riferimento | 61133235 |
| Data annuncio | 29/10/2025 |
| Contratto | Vendita |
| Tipologia | Dimora Storica |
| Superficie | 661 m2 |
| Locali | più di 5 (12 altro), 4 bagni |
| Piano | 1 di 2 totali |
Costi
| Prezzo | 690.000 € |
| Prezzo al m2 | 1.044 €/m2 |
Efficienza energetica
| Anno costruzione | 1985 |
| Riscaldamento | Autonomo |
| Tipo Alimentazione Riscaldamento | Metano |
| Classe energetica | G |
| Indice di prestazione energetica (EP GL, REN) | 163.54 kWh/m3 anno |
| Indice di prestazione energetica (EP GL, NREN) | 163.54 kWh/m3 anno |
Planimetrie
Video
Indirizzo e mappa
Fratelli Cervi Fratelli cervi, Reggio nell'Emilia
Calcolo mutuo
Prezzo di vendita:
Anticipo
20,00
Mutuo
80,00
Tasso: -+
Rata: 1.973 al mese
I risultati sono una stima indicativa basata sui dati inseriti e non costituiscono un’offerta finanziaria.
Inserzionista
Chiama
CONTATTA

