Quadrilocale Via Giosuè Carducci, Druento
€ 280.000Quadrilocale in vendita
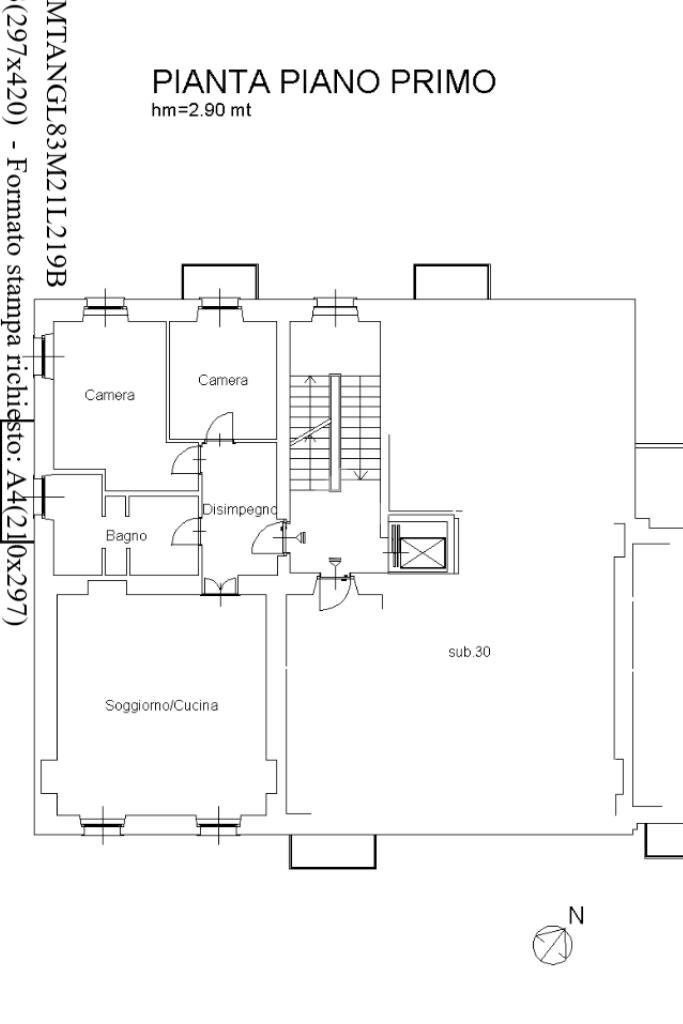
Nel centro di Druento, all’interno della prestigiosa Villa Giovine, elegante residenza signorile dei primi dell’Ottocento finemente restaurata, originariamente conosciuta come Cascina Belard, poi Reynaldi e Vigna, proponiamo in vendita un raffinato appartamento al primo piano servito da ascensore. La ristrutturazione dell’intero complesso ha mantenuto intatto il pregio storico della villa, integrando comfort moderni e soluzioni funzionali. L’ambiente principale dell’appartamento si presenta come un’ampia zona giorno, dove si fondono con naturale equilibrio la zona living e la cucina. Lo spazio è caratterizzato da soffitti alti con eleganti volte a botte e grandi finestre che donano luce naturale, con affacci che valorizzano la vista sul parco circostante. L’ambiente, caldo e accogliente, è ideale per chi ama vivere in spazi ariosi e raffinati; la predisposizione per il camino consente di creare un angolo suggestivo, perfetto per momenti di relax o zona notte, silenziosa e ben separata, è composta da due camere da letto. La camera principale di ampie metrature,si presenta come un ambiente luminoso elegante ed accogliente, con doppia finestra e soffitto con travi a vista in legno. La seconda camera, versatile, può essere utilizzata come studio o stanza ampie porte finestre conducono a un balcone privato, ideale per godersi momenti di relax all’aria bagno ampio e luminoso, è dotato di sanitari sospesi, doccia e vasca separate, una porta finestra con accesso al balcone ed un termoarredo partico in ogni stagione. L’appartamento è servito da riscaldamento a pavimento, che garantisce un comfort termico uniforme. Completano la proprietà un ampio box auto di 30 mq, un posto auto privato all’interno del cortile e l’accesso al parco condominiale della villa, accuratamente mantenuto e immerso nel verde.
Dati principali
| Riferimento | 61131288 |
| Data annuncio | 25/10/2025 |
| Contratto | Vendita |
| Tipologia | Appartamento |
| Superficie | 110 m2 |
| Locali | 4 (4 altro), 1 bagno |
| Piano | 1 di 2 totali |
Costi
| Prezzo | 280.000 € |
| Prezzo al m2 | 2.545 €/m2 |
| Spese condominiali | € 250,00/mese |
Efficienza energetica
| Anno costruzione | 1800 |
| Riscaldamento | Centralizzato |
| Tipo Alimentazione Riscaldamento | Metano |
| Classe energetica | D |
| Indice di prestazione energetica (EP GL, REN) | 112.54 kWh/m3 anno |
| Indice di prestazione energetica (EP GL, NREN) | 277.16 kWh/m3 anno |
Planimetrie
Video
Indirizzo e mappa
Via Giosuè Carducci, Druento
Calcolo mutuo
Prezzo di vendita:
Anticipo
20,00
Mutuo
80,00
Tasso: -+
Rata: 801 al mese
I risultati sono una stima indicativa basata sui dati inseriti e non costituiscono un’offerta finanziaria.
Inserzionista
Agenzia Tecnocasa Studio Druento D.i.
Via Torino, 46, Druento
Mostra Telefono
Chiama
CONTATTA

