Capannone via dei confini, Prato
Trattativa riservata
In contesto produttivo di nuova realizzazione, proponiamo capannone indipendente su due livelli, caratterizzato da ampie metrature e finiture moderne.
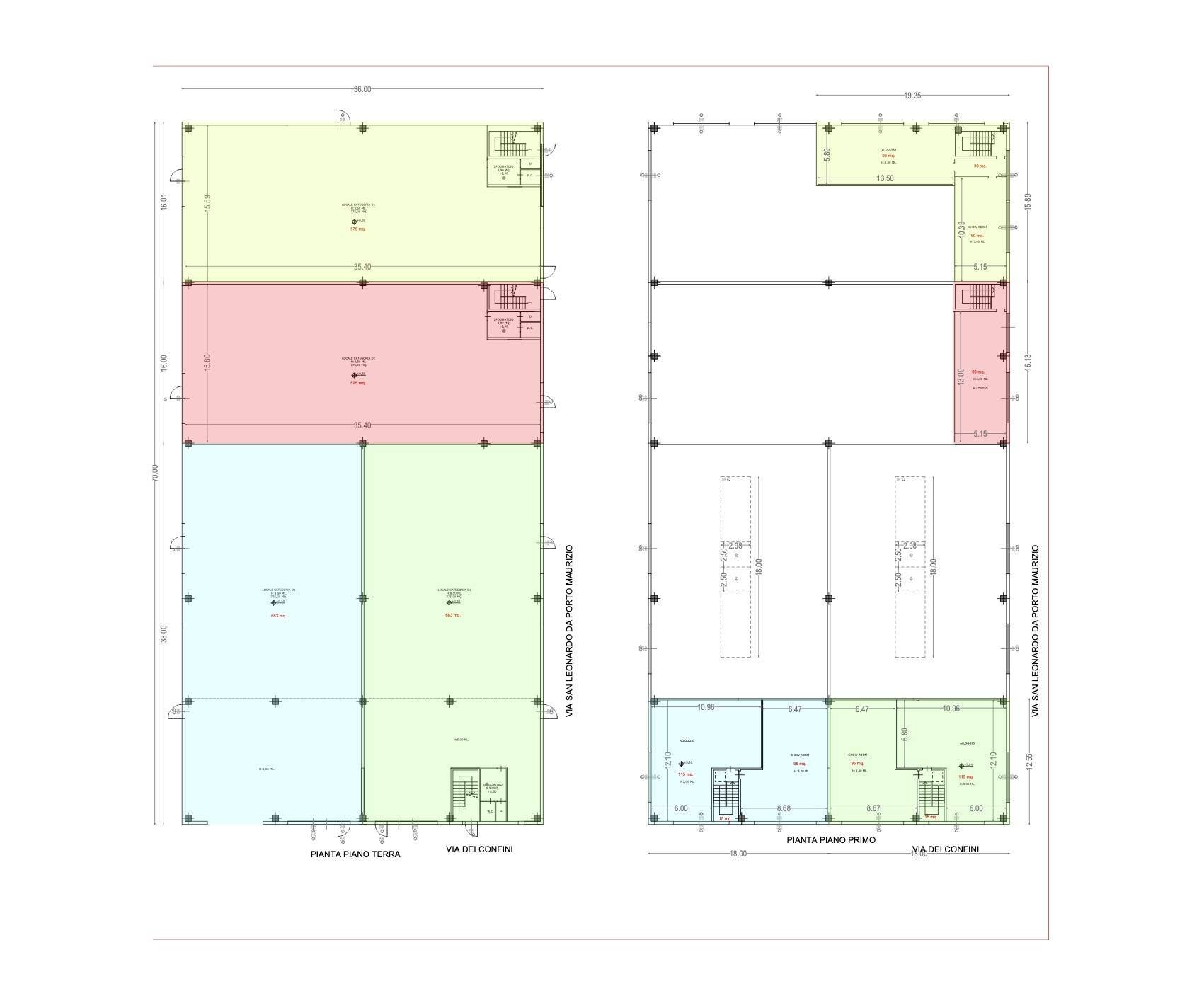
Limmobile, attualmente in fase di costruzione, sarà pronto per dicembre 2026 e offre al piano terra una superficie di circa 575 mq, dotata di servizi igienici e spogliatoi, ideale per attività artigianali, produttive o di deposito.
Al primo piano troviamo invece 90 mq ad uso ufficio, perfetti per creare una zona direzionale o amministrativa funzionale e ben collegata allarea operativa.
Lintervento prevede diverse soluzioni disponibili, personalizzabili in base alle esigenze dellattività.
Ottima accessibilità, contesto di nuova edificazione e impianti di ultima generazione completano la proposta.
Consegna prevista: Dicembre 2026
NOTA BENE:
L'intervento prevede la realizzazione di quattro unità come quella pubblicizzata, ma dal momento che l'immobile è in fase di costruzioni sono possibili varie personalizzazioni come l'acquisto di due o tre unità collegabili fra loro oppure l'acquisto dell'intero capannone come unica struttura.
Il prezzo richiesto è 1.650 mq.
RITMO MAISON REAL ESTATE
Via Guglielmo Marconi, 13r Firenze
Telefono/Whatsapp: (+39) 3519573199
Email: [email protected]
Per garantire la privacy dei proprietari, la mappa e l'indirizzo possono non rispecchiare esattamente l'ubicazione precisa dell'immobile. Le immagini hanno il solo scopo illustrativo, non hanno alcun carattere contrattuale. Ape in fase di definizione. La presente scheda non costituisce forma di contratto, le informazioni qui contenute sono da ritenersi del tutto indicative e non potranno essere utilizzate come parte integrante in un eventuale contratto di vendita o locazione della proprietà. La presente non vincola in alcun modo la società.
Limmobile, attualmente in fase di costruzione, sarà pronto per dicembre 2026 e offre al piano terra una superficie di circa 575 mq, dotata di servizi igienici e spogliatoi, ideale per attività artigianali, produttive o di deposito.
Al primo piano troviamo invece 90 mq ad uso ufficio, perfetti per creare una zona direzionale o amministrativa funzionale e ben collegata allarea operativa.
Lintervento prevede diverse soluzioni disponibili, personalizzabili in base alle esigenze dellattività.
Ottima accessibilità, contesto di nuova edificazione e impianti di ultima generazione completano la proposta.
Consegna prevista: Dicembre 2026
NOTA BENE:
L'intervento prevede la realizzazione di quattro unità come quella pubblicizzata, ma dal momento che l'immobile è in fase di costruzioni sono possibili varie personalizzazioni come l'acquisto di due o tre unità collegabili fra loro oppure l'acquisto dell'intero capannone come unica struttura.
Il prezzo richiesto è 1.650 mq.
RITMO MAISON REAL ESTATE
Via Guglielmo Marconi, 13r Firenze
Telefono/Whatsapp: (+39) 3519573199
Email: [email protected]
Per garantire la privacy dei proprietari, la mappa e l'indirizzo possono non rispecchiare esattamente l'ubicazione precisa dell'immobile. Le immagini hanno il solo scopo illustrativo, non hanno alcun carattere contrattuale. Ape in fase di definizione. La presente scheda non costituisce forma di contratto, le informazioni qui contenute sono da ritenersi del tutto indicative e non potranno essere utilizzate come parte integrante in un eventuale contratto di vendita o locazione della proprietà. La presente non vincola in alcun modo la società.
Dati principali
| Riferimento | business space 004 |
| Data annuncio | 25/10/2025 |
| Contratto | Vendita |
| Tipologia | Capannone |
| Superficie | 665 m2 |
| Occupato | Libero |
Costi
| Prezzo | Trattativa riservata |
Efficienza energetica
| Tipo Alimentazione Riscaldamento | Altro |
| Classe energetica | A1 |
Planimetrie
Indirizzo e mappa
via dei confini, Prato
Annuncio senza mappa,
prova a chiedere la posizione all'inserzionista
prova a chiedere la posizione all'inserzionista
Inserzionista

Ritmo Maison
Via G. Marconi, 13Rosso, Firenze
Mostra Cellulare
Chiama
CONTATTA

