Casa indipendente via paolina bonaparte, Viareggio
€ 650.000
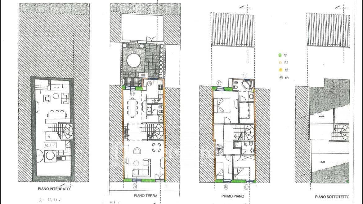
Villa Viareggina di prestigio in vendita in Centro a Viareggio a 300 Metri dal Mare. RIF: ES594 - A soli 300 metri dal mare, nel cuore di Viareggio, Agenzia Immobiliare Leonardo propone in ESCLUSIVA una raffinata villa VIAREGGINA indipendente, completamente ristrutturata nei primi anni 2000 con materiali di pregio e grande attenzione al comfort. Una dimora elegante ed accogliente, che unisce il fascino classico delle case viareggine al piacere moderno dellabitare di qualità. Internamente si sviluppa come segue: Piano Terra Eleganza e convivialità Lingresso accoglie con un ampio soggiorno, impreziosito da pavimenti in marmo bianco e da spazi aperti perfettamente distribuiti. Proseguendo arriviamo alla zona pranzo e alla cucina pensate per vivere la quotidianità con eleganza, entrambi offrono la possibilità di accede alla corte. Completa la zona giorno anche un bagno di servizio. Dalla zona living si accede a una corte interna piastrellata, curata e riservata, ideale per pranzi e cene allaperto o semplicemente per rilassarsi in tranquillità. Allinterno della corte si trova una dependance composta attualmente da due vani adibiti a ripostiglio, cabina armadi e lavanderia, un plus raro per una casa in centro città. Primo Piano Comfort e stile nella zona notte Salendo al piano superiore si accede alla zona notte, rifinita con parquet pregiato che dona calore e charme agli ambienti. La disposizione comprende: La camera padronale con bagno privato con vasca idromassaggio e cabina armadi, una seconda camera matrimoniale una camera singola un terzo bagno, a servizio del piano, con doccia. Tutti gli ambienti sono distribuiti su un comodo corridoio e curati nei minimi dettagli con arredi su misura. Piano Mansardato Privacy e versatilità Allultimo livello, mansardato ma ben vivibile, si trova un quarto vano oggi utilizzato come camera da letto, completo di bagno privato: uno spazio perfetto per gli ospiti o come zona indipendente. Taverna Lanima conviviale della casa Il vero valore aggiunto si trova al piano seminterrato, una taverna di un eleganza unica, completamente rinnovata accoglie un ampio soggiorno con camino, una spaziosa cucina con un secondo camino ed un ripostiglio funzionale. Un ambiente raffinato e accogliente, ideale per cene in famiglia, incontri conviviali o momenti di relax. Caratteristiche e finiture Superficie: 165 mq 4 camere 4 bagni Taverna attrezzata con soggiorno camino e cucina Corte privata piastrellata con dependance Marmo bianco nella zona giorno Parquet pregiato nella zona notte Ristrutturazione curata nei primi anni 2000 Uneleganza autentica nel cuore di Viareggio Questa villa viareggina rappresenta una rara opportunità per chi desidera una residenza indipendente di prestigio, a pochi passi dal mare ma in una zona tranquilla e ben servita. Perfetta per chi cerca spazio, eleganza e comfort, in una dimora dove ogni dettaglio racconta stile e qualità. RIF: ES594 www.immobiliare-leonardo.it Vuoi altre informazioni? Vuoi valutare altre offerte immobiliari? Devi vendere il tuo immobile? Contattaci allo 0584961129 Oppure vieni a trovarci nella nostra sede di Viareggio in Corso Garibaldi 170
Dati principali
| Riferimento | ES594 |
| Data annuncio | 25/10/2025 |
| Contratto | Vendita |
| Tipologia | Casa indipendente |
| Superficie | 165 m2 |
| Locali | più di 5 (4 camere da letto, 3 altro), 4 bagni, cucina abitabile |
| Piano | Su più livelli, 3 totali |
| Tipo di costruzione | Signorile |
| Occupato | Libero |
| Box auto | Assente |
| Arredamento | Parziale |
Caratteristiche
Costi
| Prezzo | 650.000 € |
| Prezzo al m2 | 3.939 €/m2 |
Efficienza energetica
| Stato | Ottimo |
| Riscaldamento | Autonomo |
| Classe energetica | F |
| Indice di prestazione energetica (IPE) | 156 kWh/m2 anno |
Planimetrie
Indirizzo e mappa
via paolina bonaparte, Viareggio
Annuncio senza mappa,
prova a chiedere la posizione all'inserzionista
prova a chiedere la posizione all'inserzionista
Calcolo mutuo
Prezzo di vendita:
Anticipo
20,00
Mutuo
80,00
Tasso: -+
Rata: 1.859 al mese
I risultati sono una stima indicativa basata sui dati inseriti e non costituiscono un’offerta finanziaria.
Inserzionista

Agenzia Immobiliare Leonardo
Corso Garibaldi, 170, Viareggio
Mostra Telefono
Mostra Cellulare
Chiama
CONTATTA

