Locale Commerciale Viale De Gasperi 2, Monteprandone
€ 280.000
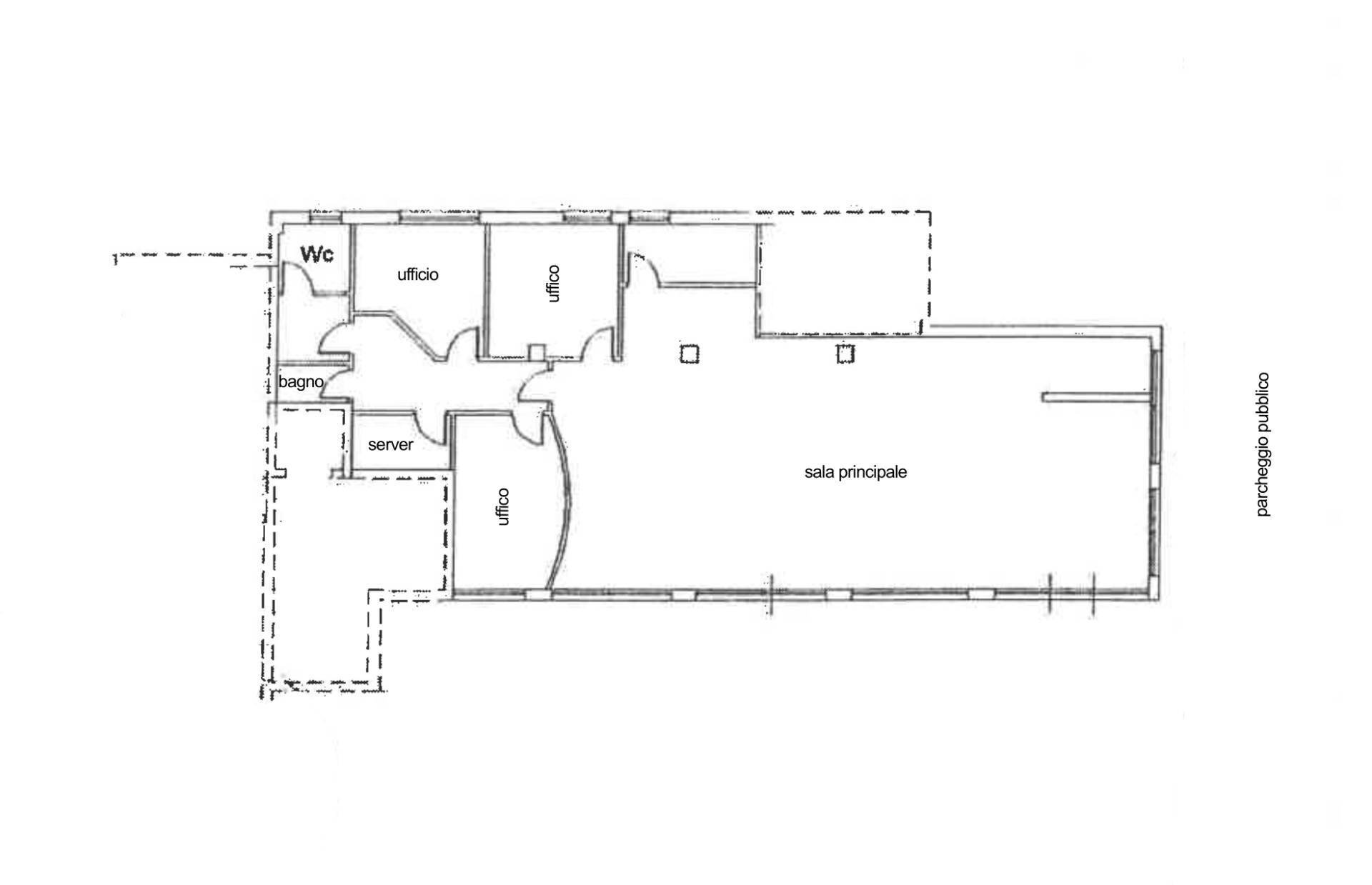
Ampio locale commerciale di circa 170 m², situato al piano terra e caratterizzato da una posizione dangolo estremamente visibile lungo la Strada Statale Salaria. Limmobile dispone di ben sette vetrine espositive che garantiscono uneccellente luminosità e massima esposizione, oltre a un comodo ingresso di servizio. Internamente si presenta in perfette condizioni ed è attualmente suddiviso in una spaziosa sala principale, due uffici sul retro, due servizi igienici (di cui uno attrezzato per persone con disabilità), un ripostiglio e una sala server. Le finiture sono di buon livello: pavimentazione in monocottura, vetrine con cristalli blindati di sicurezza (precedentemente era locato ad un Istituto bancario), controsoffitti nella zona frontale, impianto di climatizzazione canalizzato caldo/freddo e impianti completamente a norma. La posizione è davvero strategica: oltre allelevato passaggio e alla visibilità diretta sulla Salaria, il locale gode di ampio parcheggio antistante e della vicinanza con due importanti poli commerciali (Conad ed Eurospin), che garantiscono un flusso costante di clientela. Soluzione ideale per qualsiasi tipo di attività commerciale o di servizi, che desideri una sede moderna, pronta alluso e in un contesto di assoluto rilievo. Disponibile anche alla locazione per qualsiasi tipo di attività.
Dati principali
| Riferimento | 33704 |
| Data annuncio | 24/10/2025 |
| Contratto | Vendita |
| Tipologia | Locale Commerciale |
| Superficie | 170 m2 |
| Locali | 4 (4 altro), 2 bagni |
| Piano | Terra, 2 totali |
| Occupato | Libero |
| Box auto | Assente |
| Arredamento | Assente |
Caratteristiche
Costi
| Prezzo | 280.000 € |
| Prezzo al m2 | 1.647 €/m2 |
Efficienza energetica
| Stato | Ottimo |
| Riscaldamento | Autonomo |
| Tipo Impianto Di Riscaldamento | ad aria |
| Tipo Alimentazione Riscaldamento | Elettrico |
| Classe energetica | E |
| Indice di prestazione energetica (IPE) | 737 kWh/m2 anno |
Planimetrie
Indirizzo e mappa
Viale De Gasperi
2, Monteprandone
Annuncio senza mappa,
prova a chiedere la posizione all'inserzionista
prova a chiedere la posizione all'inserzionista
Calcolo mutuo
Prezzo di vendita:
Anticipo
20,00
Mutuo
80,00
Tasso: -+
Rata: 801 al mese
I risultati sono una stima indicativa basata sui dati inseriti e non costituiscono un’offerta finanziaria.
Inserzionista

Spina & Marchei
Viale De Gasperi 113, San Benedetto del Tronto
Mostra Telefono
Mostra Cellulare
Spina Giovanni
Mostra Telefono
Chiama
CONTATTA

