Villa a Schiera via dei Giacinti, Budoni
€ 270.000Villa a Schiera Centrale – Budoni/Ottiolu
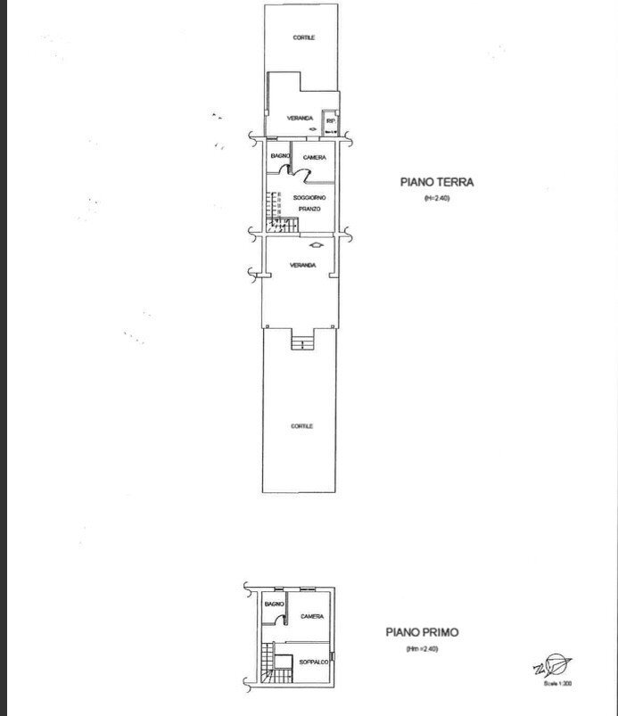
In posizione tranquilla e riservata, a soli 500 metri dalla spiaggia e dal porto turistico, proponiamo una villa a schiera centrale disposta su due livelli, ideale come casa vacanze o abitazione principale. Superficie abitativa: circa 60 mq Spazi esterni: 40 mq di area piastrellata con ripostiglio e 100 mq di giardino privato, perfetti per vivere all’aperto in totale relax. Composizione interna: Piano terra: soggiorno con angolo cottura, bagno, ampia veranda coperta di circa 60 mq, zona piastrellata di 40 mq con ripostiglio; Piano primo: camera matrimoniale, soppalco e secondo bagno. La villa è luminosa, ben tenuta e inserita in un contesto curato, a pochi passi dai principali servizi e dal mare. Una soluzione ideale per chi desidera comfort, indipendenza e la vicinanza alla spiaggia. Per maggiori informazioni e per fissare una visita, contattaci al 02-4409066 oppure al 3249017743 Il presente annuncio ha valore puramente indicativo e non costituisce elemento contrattuale.
ABITAREPETRARCA.COM si rende disponibile ad una valutazione gratuita del Vostro immobile Esperienza di 50 anni nel settore immobiliare, Abitarepetrarca La tua agenzia di fiducia.
Contattaci senza impegno
Dati principali
| Riferimento | 455V |
| Data annuncio | 20/10/2025 |
| Contratto | Vendita |
| Tipologia | Villa a Schiera |
| Superficie | 70 m2 |
| Locali | 2 (1 camera da letto, 1 altro), 2 bagni, cucina angolo cottura |
| Piano | 1 totali |
| Tipo di costruzione | Media |
| Numero di terrazzi | 1 |
| Box auto | Assente |
| Arredamento | Parziale |
Caratteristiche
Costi
| Prezzo | 270.000 € |
| Prezzo al m2 | 3.857 €/m2 |
| Spese condominiali | € 75,00/mese |
Efficienza energetica
| Anno costruzione | 1990 |
| Stato | Buono |
| Riscaldamento | Autonomo |
| Classe energetica | Immobile esente da certificazione energetica |
Planimetrie
Indirizzo e mappa
via dei Giacinti, Budoni
Calcolo mutuo
Prezzo di vendita:
Anticipo
20,00
Mutuo
80,00
Tasso: -+
Rata: 772 al mese
I risultati sono una stima indicativa basata sui dati inseriti e non costituiscono un’offerta finanziaria.
Inserzionista

Abitare Petrarca Srl
Largo Alessandro Manzoni 4, Corsico
Mostra Telefono
Chiama
CONTATTA

