Locale Commerciale all'asta Strada Molina 36, Castelnuovo Scrivia
€ 1.342.623Capannone / Fondo - Industriale/Artigianale a Castelnuovo Scrivia
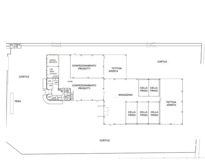
Piena proprietà di fabbricati per attivita’ agricole [D10] e opifici (D1) siti in Castelnuovo Scrivia (AL), strada Molino n.36 (in realtà strada prov. per Molino de'Torti n.36). Beni composti da un edificio principale con un locale "utente" ed una “Cabina ENEL”, capannone di mq. complessivi 5.536 oltre a cortile pertinenziale cintato e cabina enel. - Il Prezzo visualizzato è la Base d'Asta in quanto l’immobile è oggetto di esecuzione immobiliare venduto tramite Asta Giudiziaria. - L'immobile aggiudicato, viene venduto libero e sgombro da persone cose ed ipoteche nello stato di fatto e di diritto in cui si trova. - Non rappresentiamo il Tribunale, ma lavoriamo nell'esclusivo interesse del potenziale acquirente per garantire un acquisto sicuro. - I consulenti di ASTE ITALIA ti assisteranno in tutte le attività dell'iter giudiziario dalla visita dell'immobile fino alla consegna chiavi. - Contatta il nostro Servizio Clienti , i nostri operatori sono a disposizione per chiarire i molteplici dubbi per partecipare alle ASTE.
Dati principali
| Riferimento | AL341/19L1-0505-26-1700 |
| Data annuncio | 21/10/2025 |
| Contratto | Vendita |
| Tipologia | Locale Commerciale |
| Superficie | 5536 m2 |
| Locali | più di 5 (9 altro), 5 bagni |
| Piano | 2 totali |
Costi
| Offerta minima | € 1.342.623 |
| Prezzo al m2 | 243 €/m2 |
Efficienza energetica
| Classe energetica | G |
Planimetrie
Indirizzo e mappa
Strada Molina 36, Castelnuovo Scrivia
Calcolo mutuo
Prezzo di vendita:
Anticipo
20,00
Mutuo
80,00
Tasso: -+
Rata: 3.840 al mese
I risultati sono una stima indicativa basata sui dati inseriti e non costituiscono un’offerta finanziaria.
Inserzionista

DOMY ONLINE S.R.L.
Via San Lorenzo 5 Int. 41, Genova
Mostra Telefono
Mostra Cellulare
Chiama
CONTATTA

