Baita C.da Bosco Selva, Alberobello
€ 90.000
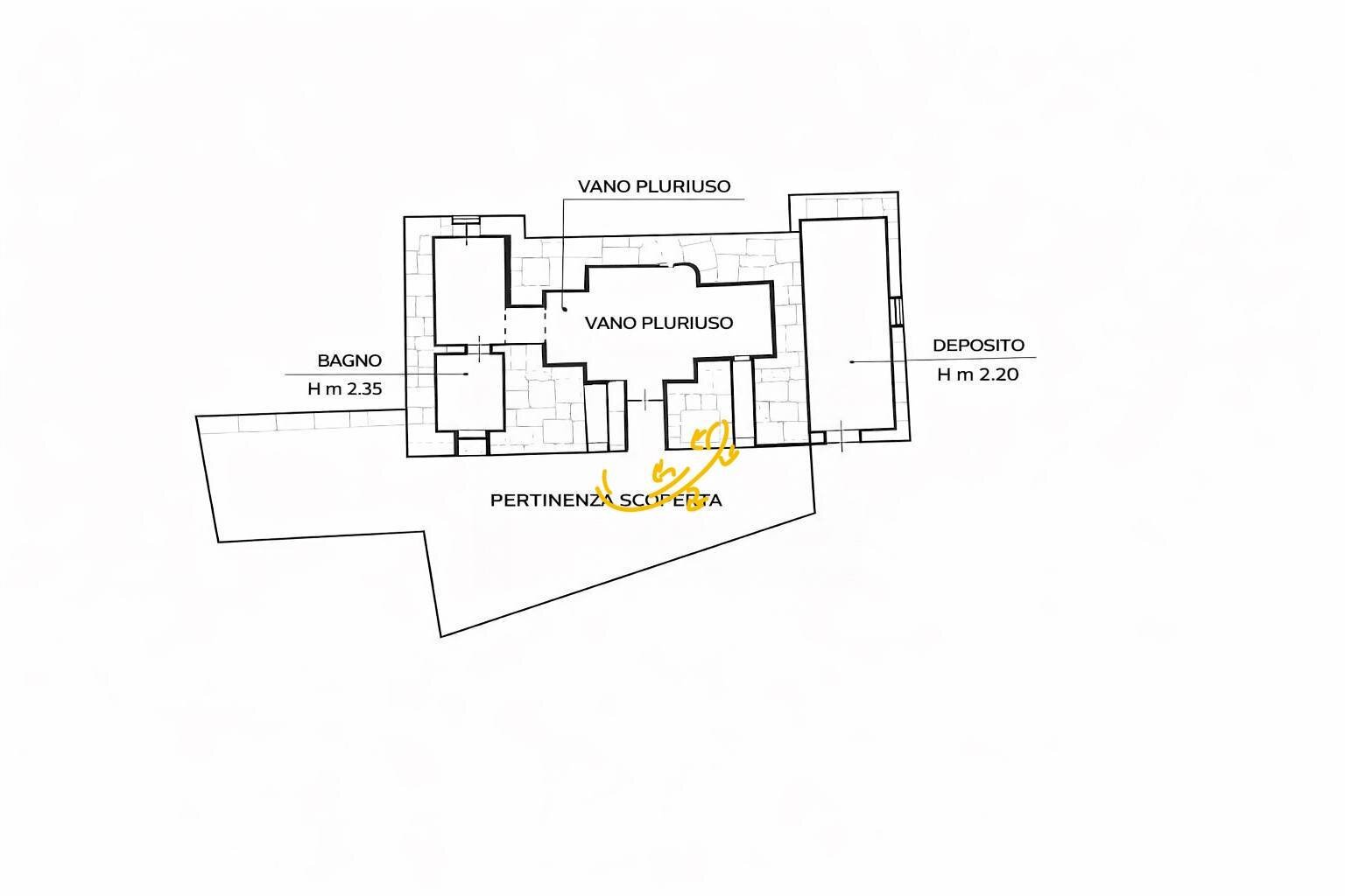
Alberobello Contrada Bosco Selva Proponiamo in vendita un affascinante complesso di trulli e lamie in pietra, situato a soli 3 km dal centro di Alberobello. La proprietà è immersa in un terreno panoramico di circa 7.000 mq, arricchito da ulivi e alberi da frutto, che garantiscono privacy e un autentico contesto rurale. Soluzione ideale per chi desidera investire in una struttura turistico-ricettiva o realizzare una dimora di charme nel cuore della campagna pugliese. Interni: circa 50mq Terreni: circa 7000mq
Dati principali
| Riferimento | R 331 |
| Data annuncio | 21/10/2025 |
| Contratto | Vendita |
| Tipologia | Baita |
| Superficie | 53 m2 |
| Locali | 2 (1 camera da letto, 1 altro), 1 bagno |
| Piano | Terra |
Caratteristiche
Costi
| Prezzo | 90.000 € |
| Prezzo al m2 | 1.698 €/m2 |
Efficienza energetica
| Stato | Da ristrutturare |
| Tipo Alimentazione Riscaldamento | Altro |
| Classe energetica | Immobile esente da certificazione energetica |
Planimetrie
Indirizzo e mappa
C.da Bosco Selva, Alberobello
Annuncio senza mappa,
prova a chiedere la posizione all'inserzionista
prova a chiedere la posizione all'inserzionista
Calcolo mutuo
Prezzo di vendita:
Anticipo
20,00
Mutuo
80,00
Tasso: -+
Rata: 257 al mese
I risultati sono una stima indicativa basata sui dati inseriti e non costituiscono un’offerta finanziaria.
Inserzionista

Trulli e Dimore
Via Fratelli Bandiera, 20, Monopoli
Mostra Cellulare
Chiama
CONTATTA

