Casa indipendente Via Sasia, Envie
€ 120.000Casa indipendente in vendita
ENVIE in Via Sasia casa indipendente su quattro lati, immersa nel verde della collina enviese con una splendida vista sulla pianura.
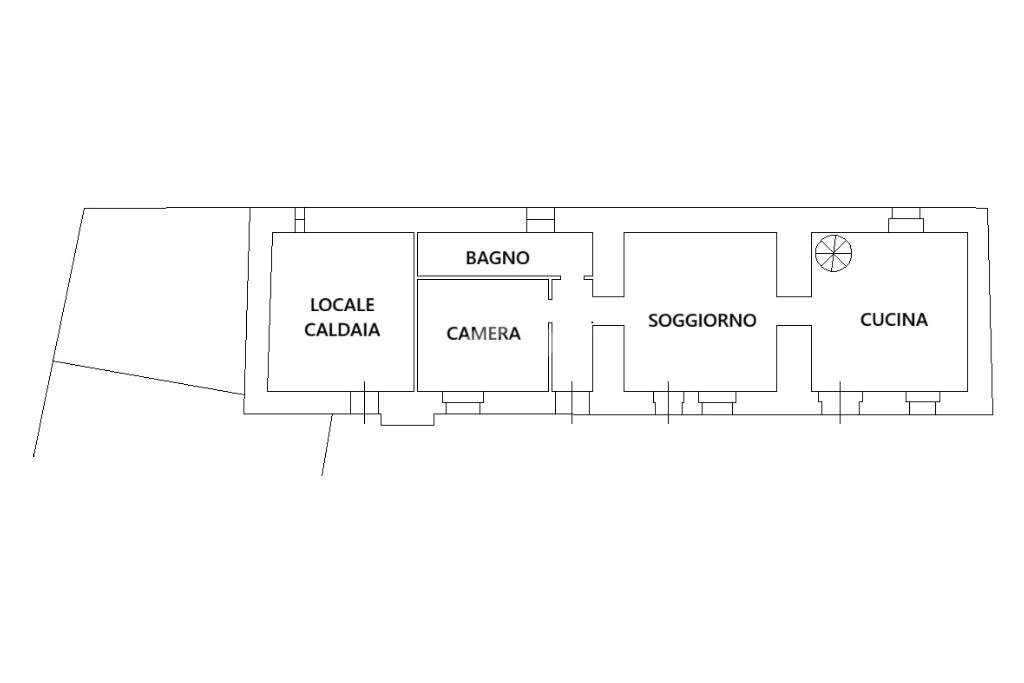
L'immobile si sviluppa su due livelli. Il piano terra si compone di soggiorno, cucina, bagno finestrato con doccia e una camera.
Attraverso una scala interna è possibile accedere al piano superiore dove sono presenti tre camere da letto, un bagno e un'ulteriore cucina.
In fase di ristrutturazione è possibile creare due unità abitative, in quanto è già presente una scala esterna che consente l'accesso al primo piano.
La proprietà è completa di un'ampia tettoia, due stalle, due garage e giardino privato che circonda la casa.
I muri della parte abitativa sono rivestiti da cappotto e il tetto è stato rifatto nel 1982.
Possibilità di acquistare ampio appezzamento di terreno a parte.
L'immobile si sviluppa su due livelli. Il piano terra si compone di soggiorno, cucina, bagno finestrato con doccia e una camera.
Attraverso una scala interna è possibile accedere al piano superiore dove sono presenti tre camere da letto, un bagno e un'ulteriore cucina.
In fase di ristrutturazione è possibile creare due unità abitative, in quanto è già presente una scala esterna che consente l'accesso al primo piano.
La proprietà è completa di un'ampia tettoia, due stalle, due garage e giardino privato che circonda la casa.
I muri della parte abitativa sono rivestiti da cappotto e il tetto è stato rifatto nel 1982.
Possibilità di acquistare ampio appezzamento di terreno a parte.
Dati principali
| Riferimento | 61128493 |
| Data annuncio | 20/10/2025 |
| Contratto | Vendita |
| Tipologia | Casa indipendente |
| Superficie | 263 m2 |
| Locali | più di 5 (10 altro), 2 bagni |
| Piano | 2 di 2 totali |
Costi
| Prezzo | 120.000 € |
| Prezzo al m2 | 456 €/m2 |
Efficienza energetica
| Anno costruzione | 1920 |
| Riscaldamento | Autonomo |
| Tipo Alimentazione Riscaldamento | Metano |
| Classe energetica | B |
| Indice di prestazione energetica (EP GL, REN) | 550.8 kWh/m3 anno |
| Indice di prestazione energetica (EP GL, NREN) | 139.02 kWh/m3 anno |
Planimetrie
Video
Indirizzo e mappa
Via Sasia, Envie
Calcolo mutuo
Prezzo di vendita:
Anticipo
20,00
Mutuo
80,00
Tasso: -+
Rata: 343 al mese
I risultati sono una stima indicativa basata sui dati inseriti e non costituiscono un’offerta finanziaria.
Inserzionista
Chiama
CONTATTA

