Terreno edificabile Via kennedy 37, Riese Pio X
€ 139.000
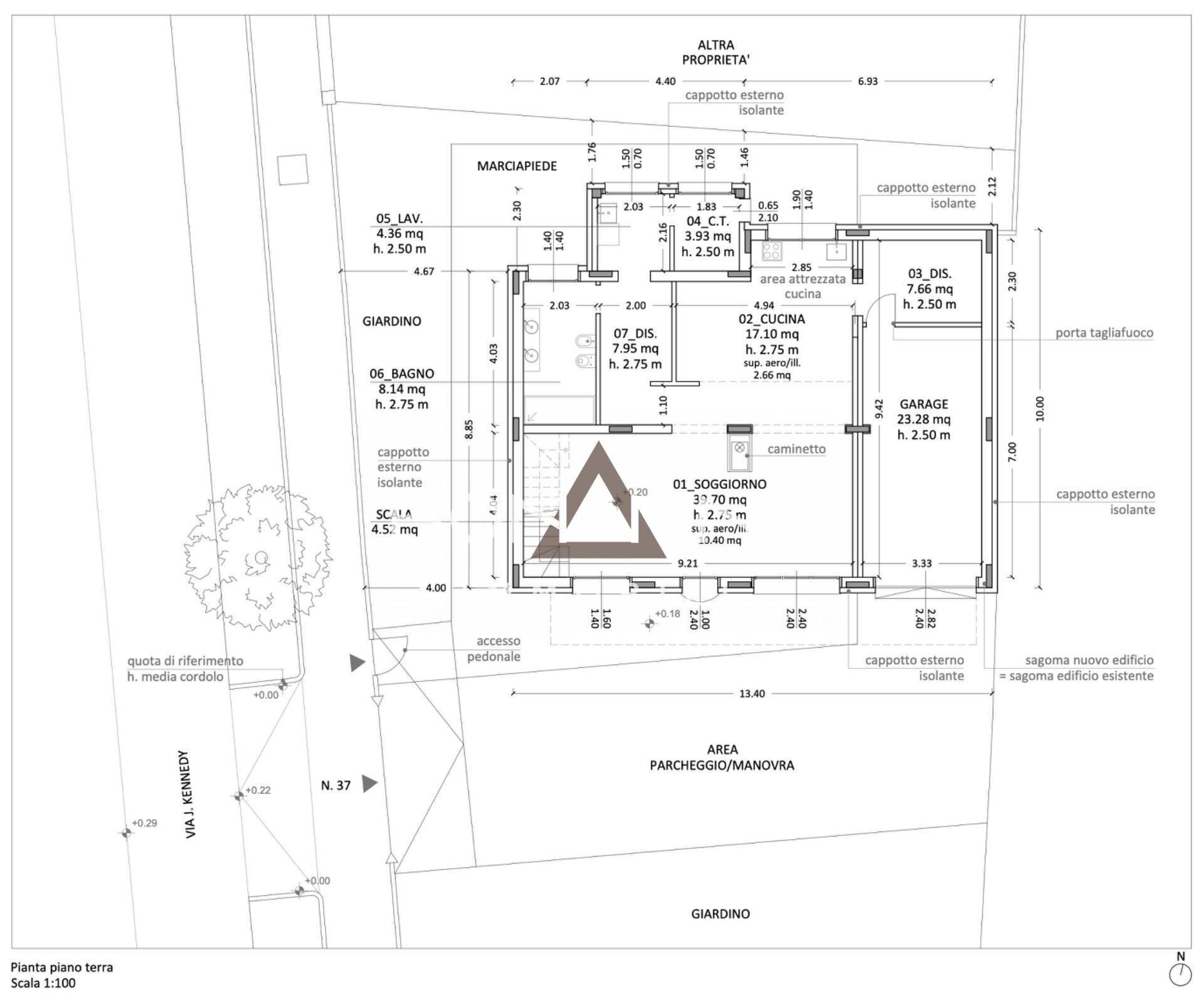
Bonanno Immobili propone in vendita a Vallà di Riese Pio X terreno edificabile di circa 1200 mq, con 840 metri cubi edificabili. Sul terreno è stato già demolito il vecchio fabbricato ed è stata realizzata la platea, tutti gli oneri sono già stati pagati per la realizzazione di una casa singola unifamiliare e vi riportiamo le foto di come era stata progettata la casa. C'è la possibilità di utilizzare il piano casa ed avere ulteriori metri cubi disponibili per eventualmente realizzare anche appartamenti. Per info chiamare in agenzia 0423 1856238 Rif: BL023
Dati principali
| Riferimento | BL023 |
| Data annuncio | 19/10/2025 |
| Contratto | Vendita |
| Tipologia | Terreno edificabile |
| Superficie | 1200 m2 |
| Occupato | Libero |
Costi
| Prezzo | 139.000 € |
| Prezzo al m2 | 116 €/m2 |
Efficienza energetica
| Tipo Alimentazione Riscaldamento | Altro |
| Classe energetica | Immobile esente da certificazione energetica |
Indirizzo e mappa
Via kennedy
37, Riese Pio X
Annuncio senza mappa,
prova a chiedere la posizione all'inserzionista
prova a chiedere la posizione all'inserzionista
Calcolo mutuo
Prezzo di vendita:
Anticipo
20,00
Mutuo
80,00
Tasso: -+
Rata: 398 al mese
I risultati sono una stima indicativa basata sui dati inseriti e non costituiscono un’offerta finanziaria.
Inserzionista
Chiama
CONTATTA


