Villa Via Marè, Cameri
Trattativa riservataVilla singola in vendita
CAMERI: VILLA SINGOLA SU UN PIANO CON PISCINA.
Nel comune di Cameri, proponiamo in vendita una villa singola in classe A2, costruita nel 2006 e libera su quattro lati.
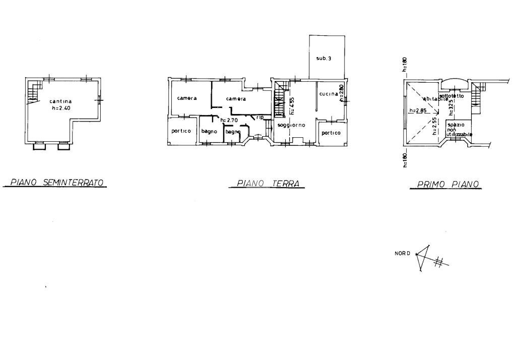
La proprietà si sviluppa su un unico livello e offre ampi spazi per ogni esigenza. L’ingresso si apre su un’ampia zona giorno con soggiorno dotato di camino e cucina abitabile, entrambi con accesso diretto al portico coperto, ideale per pranzi e cene all’aperto. E' presente, inoltre, una camera matrimoniale mansardata che affaccia sull'area giorno.
La zona notte, ben separata e divisa in maniera ottimale dalla zona giorno, presenta due bagni finestrati con doccia, due camere matrimoniali con doppia esposizione e uscita diretta all'esterno, e un ripostiglio.
La villa presenta, inoltre, un piano seminterrato dove troviamo una spaziosa taverna perfetta per momenti di convivialità, oltre a una lavanderia funzionale.
Completano la proprietà un box auto doppio e un giardino curato con piscina privata.
La casa è dotata di impianto fotovoltaico, aria condizionata e gode di classe energetica A2, per un elevato risparmio energetico.
Soluzione ideale per chi cerca indipendenza, comfort e spazi ben distribuiti.
Nel comune di Cameri, proponiamo in vendita una villa singola in classe A2, costruita nel 2006 e libera su quattro lati.
La proprietà si sviluppa su un unico livello e offre ampi spazi per ogni esigenza. L’ingresso si apre su un’ampia zona giorno con soggiorno dotato di camino e cucina abitabile, entrambi con accesso diretto al portico coperto, ideale per pranzi e cene all’aperto. E' presente, inoltre, una camera matrimoniale mansardata che affaccia sull'area giorno.
La zona notte, ben separata e divisa in maniera ottimale dalla zona giorno, presenta due bagni finestrati con doccia, due camere matrimoniali con doppia esposizione e uscita diretta all'esterno, e un ripostiglio.
La villa presenta, inoltre, un piano seminterrato dove troviamo una spaziosa taverna perfetta per momenti di convivialità, oltre a una lavanderia funzionale.
Completano la proprietà un box auto doppio e un giardino curato con piscina privata.
La casa è dotata di impianto fotovoltaico, aria condizionata e gode di classe energetica A2, per un elevato risparmio energetico.
Soluzione ideale per chi cerca indipendenza, comfort e spazi ben distribuiti.
Dati principali
| Riferimento | 61125792 |
| Data annuncio | 18/10/2025 |
| Contratto | Vendita |
| Tipologia | Villa |
| Superficie | 200 m2 |
| Locali | 5 (5 altro), 2 bagni |
| Piano | 1 di 1 totali |
Costi
| Prezzo | Trattativa riservata |
Efficienza energetica
| Anno costruzione | 2006 |
| Riscaldamento | Autonomo |
| Classe energetica | A2 |
| Indice di prestazione energetica (EP GL, REN) | 141.16 kWh/m3 anno |
| Indice di prestazione energetica (EP GL, NREN) | 87.73 kWh/m3 anno |
Planimetrie
Video
Indirizzo e mappa
Via Marè, Cameri
Inserzionista
Chiama
CONTATTA

