Trilocale Venezia
€ 160.000
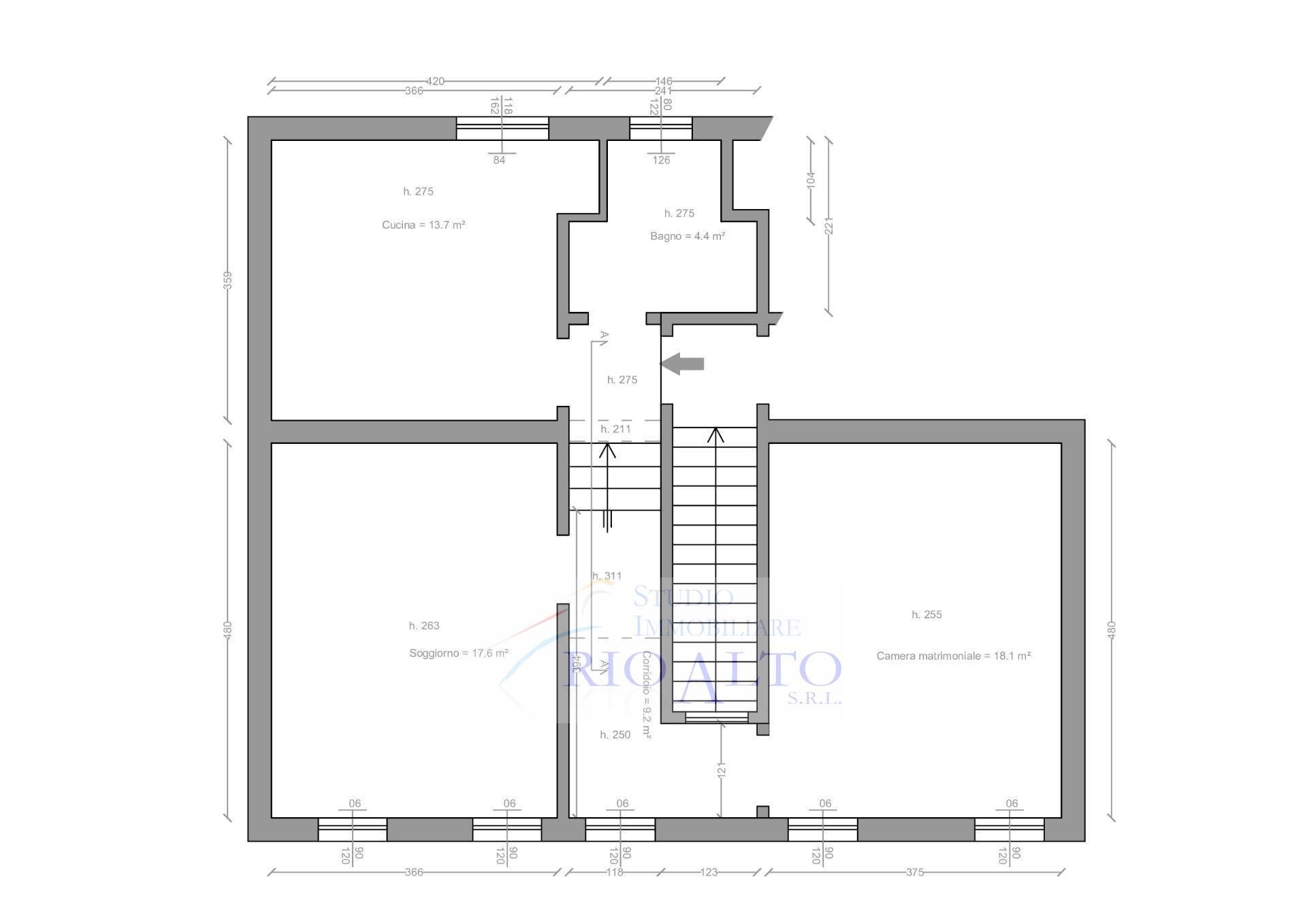
In una delle zone più caratteristiche di Venezia, su una delle isole più famose e affascinanti della città, si trova questo appartamento in vendita. Situato in una palazzina storica del 1900, l'immobile si trova al primo piano ed è libero al rogito, pronto per essere acquistato e abitato.La metratura totale di 77 metri quadrati è distribuita in modo funzionale tra le varie stanze, garantendo così una buona vivibilità. La superficie calpestabile di 62 metri quadrati comprende un ampio soggiorno, una camera da letto spaziosa, una cucina abitabile e un bagno. Inoltre, è presente una soffitta, perfetta per riporre oggetti e sfruttare al massimo lo spazio disponibile.Lo stato conservativo dell'immobile è da ristrutturare, ma questo permette di personalizzare e rendere unico l'appartamento secondo i propri gusti e bisogni. In particolare, gli infissi e le finestre necessitano di una sostituzione, ma una volta rifatti garantiranno un maggiore comfort e isolamento termico.L'appartamento non è arredato, ma la cucina è abitabile e può essere facilmente arredata con mobili e apparecchiature moderne. L'orientamento dell'immobile è nord-sud, garantendo così una buona esposizione alla luce naturale durante tutto il giorno.Per il riscaldamento, l'appartamento è dotato di un impianto autonomo a stufa, alimentato a metano. Questo garantisce un risparmio sui costi di gestione e una maggiore autonomia nella gestione della temperatura interna.Complessivamente, l'appartamento dispone di tre locali, di cui una camera da letto, un soggiorno e una cucina, ideale per coppie o single in cerca di un'abitazione accogliente e intima. Il bagno, con i suoi servizi moderni, completa l'offerta di questa interessante proposta immobiliare.In sintesi, questo appartamento in vendita a Venezia, nella zona di Murano, offre la possibilità di vivere in una delle città più affascinanti del mondo, in una casa dalle potenzialità uniche e dall'atmosfera suggestiva. Un acquisto ideale per chi desidera un'abitazione da personalizzare e rendere il proprio rifugio in questa splendida città. Richiesta 160.000,00 RIF. MU26
Dati principali
| Riferimento | MU26 |
| Data annuncio | 17/10/2025 |
| Contratto | Vendita |
| Tipologia | Appartamento |
| Superficie | 77 m2 |
| Locali | 3 (1 camera da letto, 2 altro), 1 bagno, cucina abitabile |
| Piano | 1 di 1 totali |
| Tipo di costruzione | Popolare |
| Occupato | Libero |
| Box auto | Assente |
| Arredamento | Assente |
Caratteristiche
Costi
| Prezzo | 160.000 € |
| Prezzo al m2 | 2.078 €/m2 |
Efficienza energetica
| Stato | Da ristrutturare |
| Riscaldamento | Autonomo |
| Tipo Impianto Di Riscaldamento | a stufa |
| Classe energetica | G |
| Indice di prestazione energetica (IPE) | 272 kWh/m2 anno |
Planimetrie
Indirizzo e mappa
Venezia
Annuncio senza mappa,
prova a chiedere la posizione all'inserzionista
prova a chiedere la posizione all'inserzionista
Calcolo mutuo
Prezzo di vendita:
Anticipo
20,00
Mutuo
80,00
Tasso: -+
Rata: 458 al mese
I risultati sono una stima indicativa basata sui dati inseriti e non costituiscono un’offerta finanziaria.
Inserzionista

Studio Immobiliare Rio Alto
San Polo 56, Venezia
Mostra Telefono
Chiama
CONTATTA

