Appartamento Via Gozzano 1^ Traversa, Lerici
€ 295.0005 locali in vendita
San Terenzo – In posizione comoda, vicina al mare e ben servita, proponiamo ampio appartamento di 5 vani con terrazzo abitabile, doppi servizi, posto auto coperto di proprietà e cantina.
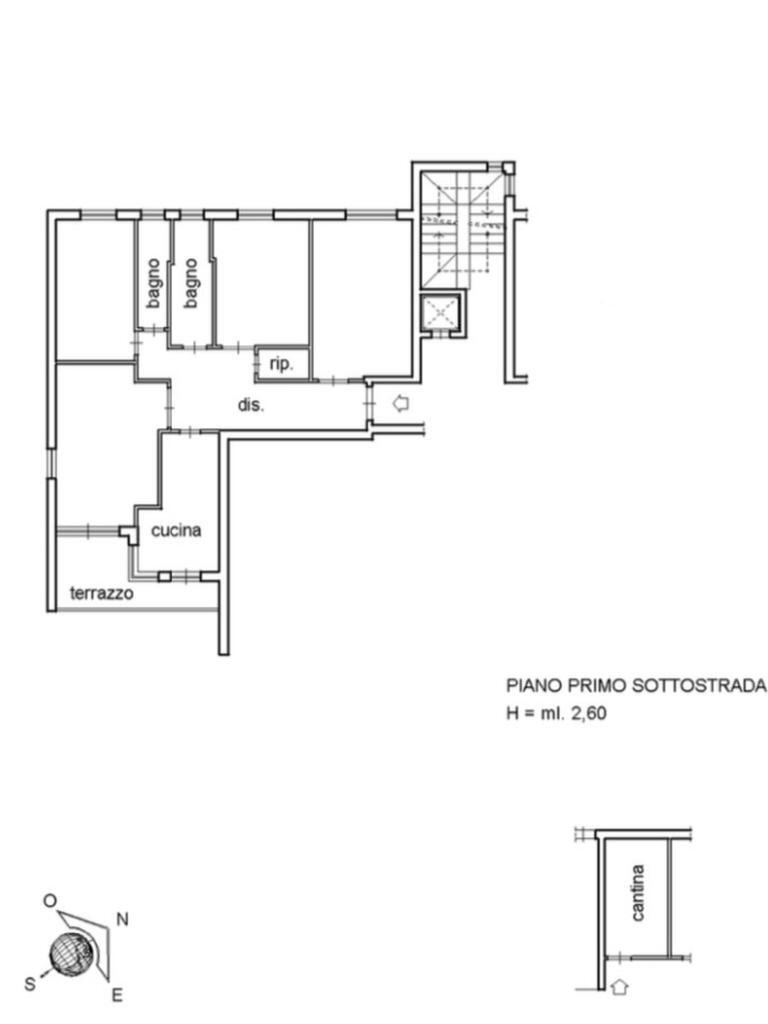
L’ingresso si apre su un disimpegno che conduce alla zona giorno, composta da cucina con accesso al terrazzo e da un soggiorno adiacente, con la possibilità di creare un unico ambiente open space. Anche il soggiorno dispone di accesso diretto al terrazzo, perfetto per momenti di relax all’aperto.
La zona notte, ben separata, offre tre camere da letto spaziose, doppi servizi e un comodo ripostiglio.
A completare la proprietà, un posto auto coperto nel garage condominiale, collegato da ascensore direttamente al piano dell’abitazione, una cantina e un curato giardino condominiale.
L’ingresso si apre su un disimpegno che conduce alla zona giorno, composta da cucina con accesso al terrazzo e da un soggiorno adiacente, con la possibilità di creare un unico ambiente open space. Anche il soggiorno dispone di accesso diretto al terrazzo, perfetto per momenti di relax all’aperto.
La zona notte, ben separata, offre tre camere da letto spaziose, doppi servizi e un comodo ripostiglio.
A completare la proprietà, un posto auto coperto nel garage condominiale, collegato da ascensore direttamente al piano dell’abitazione, una cantina e un curato giardino condominiale.
Dati principali
| Riferimento | 61127653 |
| Data annuncio | 17/10/2025 |
| Contratto | Vendita |
| Tipologia | Appartamento |
| Superficie | 112 m2 |
| Locali | 5 (5 altro), 2 bagni |
| Piano | 2 di 4 totali |
Costi
| Prezzo | 295.000 € |
| Prezzo al m2 | 2.634 €/m2 |
Efficienza energetica
| Anno costruzione | 1900 |
| Riscaldamento | Autonomo |
| Tipo Alimentazione Riscaldamento | Metano |
| Classe energetica | F |
| Indice di prestazione energetica (EP GL, NREN) | 101.06 kWh/m3 anno |
Planimetrie
Video
Indirizzo e mappa
Via Gozzano 1^ Traversa, Lerici
Calcolo mutuo
Prezzo di vendita:
Anticipo
20,00
Mutuo
80,00
Tasso: -+
Rata: 844 al mese
I risultati sono una stima indicativa basata sui dati inseriti e non costituiscono un’offerta finanziaria.
Inserzionista
Agenzia Tecnocasa Studio Lerici Srl
Via Pisacane, 1, Lerici
Mostra Telefono
Chiama
CONTATTA

