Ufficio corso Unione Sovietica, 612/15, Torino (zona Mirafiori Sud)
€ 2.100 al meseLocale mq. 273 e 2 posti auto coperti
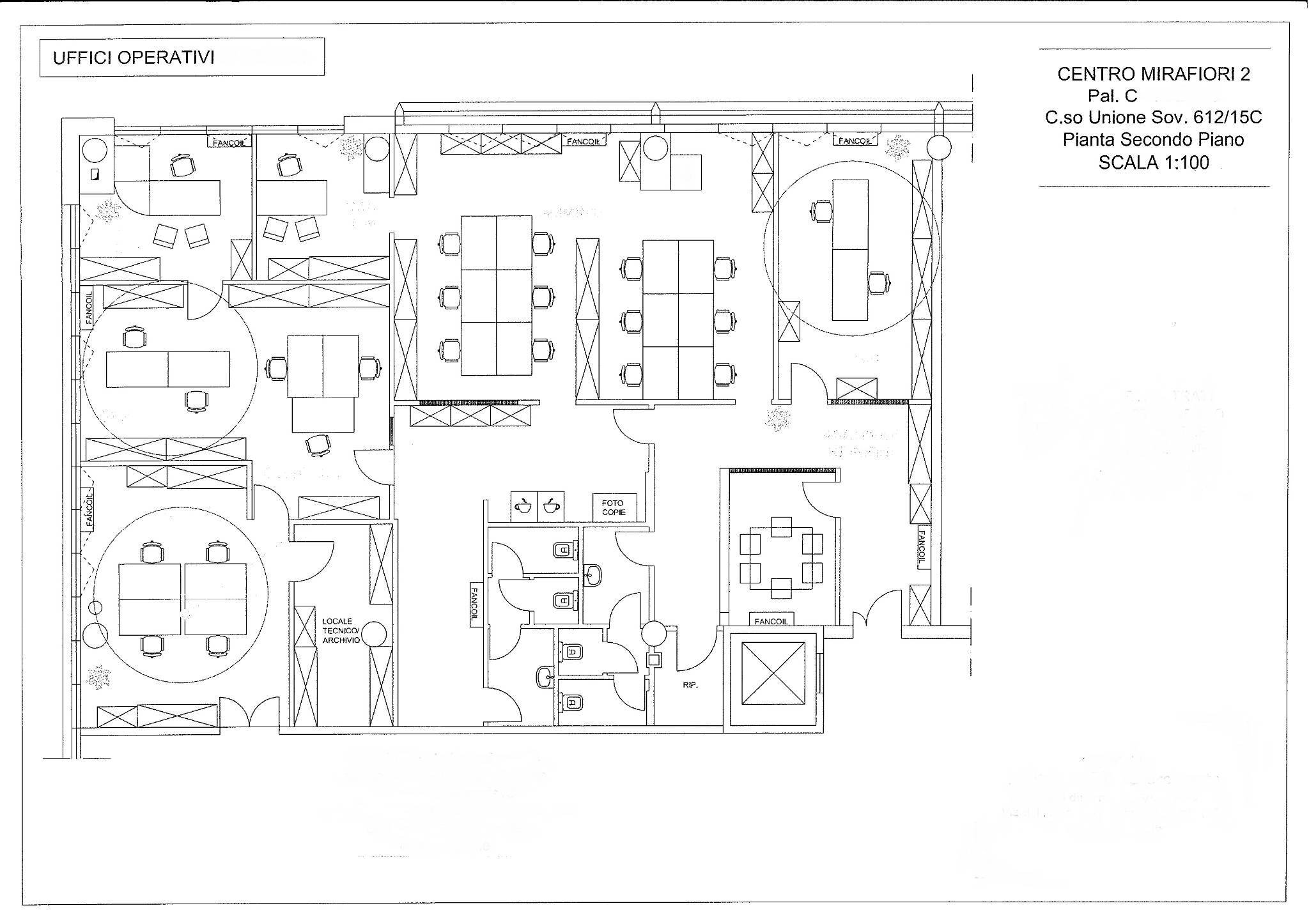
TORINO CORSO UNIONE SOVIETICA nel Centro Mirafiori 2 proponiamo in locazione locale ad uso ufficio, laboratorio, show-room di mq. 273 circa con servizi al piano secondo e 2 posti auto al piano secondo interrato. Il locale originariamente open-space è suddiviso internamente in reception, 7 vani, 2 servizi doppi, disimpegno e sala server. Doppi ingressi. Canalizzazione sotto la pavimentazione per il cablaggio telematico, impianto videocitofonico, impianto di climatizzazione/riscaldamento tramite fan coil, controsoffittature in pannelli di fibra minerale fono-assorbente con integrati elementi illuminanti. Connessione alla fibra ottica. Doppi ascensori e montacarichi. Possibilità di ulteriori posti auto coperti al piano interrato. Il locale è sito nel grande complesso produttivo direttivo industriale di Torino Mirafiori che raggruppa i complessi “CENTRO UFFICI MIRAFIORI”, “CENTRO MIRAFIORI 2” e “CENTRO DEL DROSSO” con superficie totale di oltre mq. 75.000 di prestigiosi locali sede di importanti aziende multinazionali, ubicato in posizione strategica in prossimità dell'uscita Stupinigi della Tangenziale SUD di Torino, arteria principale di collegamento con le autostrade A4 - A5 - A6 - A21 - A32, ma comodo per raggiungere rapidamente il centro città in auto o con mezzi pubblici urbani (prossimità capolinea Linea 4 Metropolitana Leggera) ed extra-urbani, e situato a poca distanza dal Centro Commerciale "I Viali" di Nichelino e dal grande Centro Commerciale "Le Fornaci" di Beinasco. Il CENTRO MIRAFIORI 2 è servito da varie attività di servizio quali bar, ristoranti, self service, asilo, asilo nido e palestre e dispone di servizio di guardiania notturna e videosorveglianza. Per appuntamenti e maggiori informazioni: STUDIO TECNICO IMMOBILIARE TORTA 0115612077 - 3357888299 - www.immobiliaretorta.it
Dati principali
| Riferimento | AFF CM2 273T |
| Data annuncio | 14/10/2025 |
| Contratto | Affitto |
| Tipologia | Ufficio |
| Superficie | 273 m2 |
| Piano | 1 totali |
| Tipo di costruzione | Signorile |
| Uso immobile | Commerciale |
Caratteristiche
Costi
| Prezzo | 2.100 € al mese |
| Spese condominiali | € 400,00/mese |
Efficienza energetica
| Riscaldamento | Centralizzato |
| Classe energetica | C |
| Indice di prestazione energetica (IPE) | 65 kWh/m2 anno |
Planimetrie
Indirizzo e mappa
corso Unione Sovietica, 612/15, Torino - quartiere Mirafiori Sud
Inserzionista

Studio Tecnico Immobiliare Torta
Strada del Drosso 33/8, Torino
Mostra Telefono
Chiama
CONTATTA

