Villa via Acquario 34, Cesenatico
€ 590.000
VILLA DI LUSSO CON GIARDINO IN VENDITA CESENATICO
Proponiamo in vendita elegante villa multipiano di design situata in una delle zone residenziali più richieste di Cesenatico, a pochi minuti dal mare e dai principali servizi. La proprietà, caratterizzata da finiture di pregio e tecnologia domotica avanzata, unisce comfort, eleganza e funzionalità in ogni dettaglio.
La villa si sviluppa su quattro livelli e dispone di impianto di videosorveglianza, predisposizione per pannelli fotovoltaici e riscaldamento a pavimento.
Al piano terra si trova una luminosa zona living con cucina a vista e accesso diretto al balcone, una camera da letto, garage con zona lavanderia e bagno di servizio.
Il primo piano ospita due ampie camere matrimoniali, entrambe con bagno privato con jacuzzi; una delle due dispone inoltre di doppio balcone.
Al secondo piano mansardato è presente una terza camera, ideale come stanza ospiti o studio.
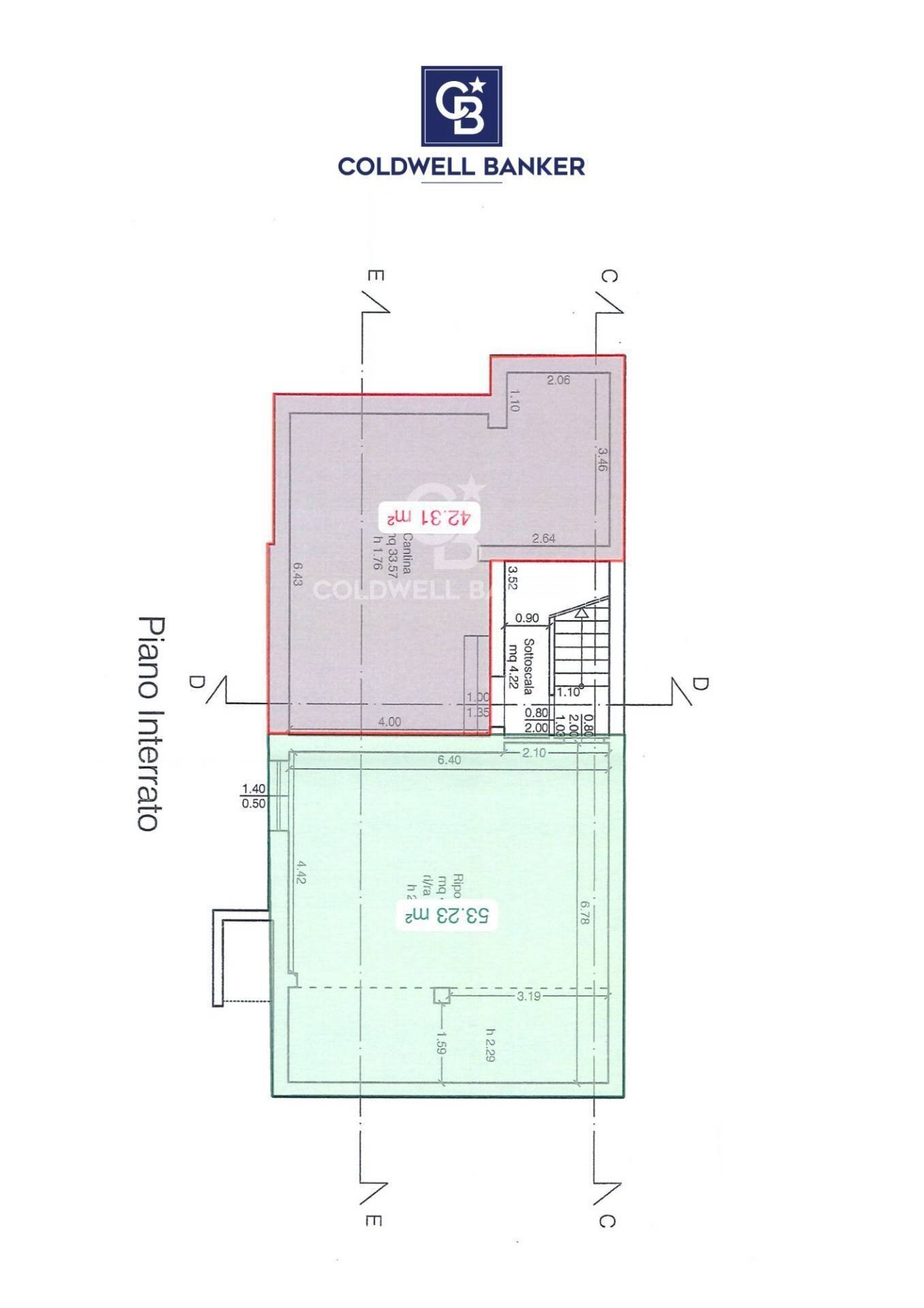
Il piano seminterrato comprende due ambienti multifunzionali: uno attualmente adibito a palestra e sala cinema, laltro utilizzato come cantina e deposito vini, perfetto per chi desidera spazi dedicati al relax e al tempo libero.
Allesterno, un giardino privato di circa 300 mq circonda la proprietà, offrendo due posti auto scoperti e spazi ideali per momenti allaperto in totale privacy.
Una residenza esclusiva venduta con tutti gli arredi che coniuga lusso, tecnologia e comfort moderno, perfetta per chi cerca una villa contemporanea a Cesenatico con ampi spazi, privacy e qualità costruttiva superiore.
Proponiamo in vendita elegante villa multipiano di design situata in una delle zone residenziali più richieste di Cesenatico, a pochi minuti dal mare e dai principali servizi. La proprietà, caratterizzata da finiture di pregio e tecnologia domotica avanzata, unisce comfort, eleganza e funzionalità in ogni dettaglio.
La villa si sviluppa su quattro livelli e dispone di impianto di videosorveglianza, predisposizione per pannelli fotovoltaici e riscaldamento a pavimento.
Al piano terra si trova una luminosa zona living con cucina a vista e accesso diretto al balcone, una camera da letto, garage con zona lavanderia e bagno di servizio.
Il primo piano ospita due ampie camere matrimoniali, entrambe con bagno privato con jacuzzi; una delle due dispone inoltre di doppio balcone.
Al secondo piano mansardato è presente una terza camera, ideale come stanza ospiti o studio.
Il piano seminterrato comprende due ambienti multifunzionali: uno attualmente adibito a palestra e sala cinema, laltro utilizzato come cantina e deposito vini, perfetto per chi desidera spazi dedicati al relax e al tempo libero.
Allesterno, un giardino privato di circa 300 mq circonda la proprietà, offrendo due posti auto scoperti e spazi ideali per momenti allaperto in totale privacy.
Una residenza esclusiva venduta con tutti gli arredi che coniuga lusso, tecnologia e comfort moderno, perfetta per chi cerca una villa contemporanea a Cesenatico con ampi spazi, privacy e qualità costruttiva superiore.
Dati principali
| Riferimento | CBI099-1528-520738 |
| Data annuncio | 15/10/2025 |
| Contratto | Vendita |
| Tipologia | Villa |
| Superficie | 275 m2 |
| Locali | più di 5 (4 camere da letto, 5 altro), 4 bagni, cucina a vista |
| Piano | Su più livelli, 4 totali |
| Tipo di costruzione | Signorile |
| Occupato | Libero |
| Box auto | Singolo |
| Numero posti auto | 2 |
| Arredamento | Completo |
Caratteristiche
Costi
| Prezzo | 590.000 € |
| Prezzo al m2 | 2.145 €/m2 |
Efficienza energetica
| Stato | Ottimo |
| Riscaldamento | Autonomo |
| Tipo Impianto Di Riscaldamento | a pavimento |
| Classe energetica | A1 |
Planimetrie
Indirizzo e mappa
via Acquario
34, Cesenatico
Annuncio senza mappa,
prova a chiedere la posizione all'inserzionista
prova a chiedere la posizione all'inserzionista
Calcolo mutuo
Prezzo di vendita:
Anticipo
20,00
Mutuo
80,00
Tasso: -+
Rata: 1.687 al mese
I risultati sono una stima indicativa basata sui dati inseriti e non costituiscono un’offerta finanziaria.
Inserzionista

Coldwell Banker Prime Properties
Viale Virgilio 4, Riccione
Mostra Telefono
Mostra Cellulare
Chiama
CONTATTA

