Trilocale Viale Romagna, Cervia
€ 450.000Trilocale in vendita
MILANO MARITTIMA: situato in zona centrale e a poca distanza dal mare disponiamo di appartamento con ampi spazi abitativi.
L'immobile è situato al quarto piano ed è dotato di ascensore.
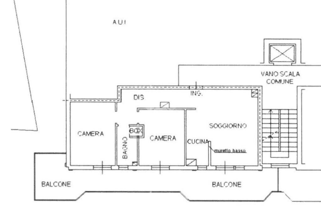
L'ingresso conduce ad una accogliente ed elegante soggiorno con angolo cottura servito da terrazzo, ideale per pranzi o cene all'aperto.
Proseguendo dal disimpegno troviamo la zona notte composta da due camere da letto matrimoniali servite dal terrazzo ed un comodo bagno con box doccia.
Competa la soluzione al piano terra la cantina di proprietà.
Possibilità di parcheggio all'interno della corte condominiale.
Ideale per chi cerca un appoggio per le proprie vacanze, un investimento ma anche per chi cerca una prima abitazione.
Per maggiori informazioni o per fissare un appuntamento di visita chiamare al numero 0544.977424
L'immobile è situato al quarto piano ed è dotato di ascensore.
L'ingresso conduce ad una accogliente ed elegante soggiorno con angolo cottura servito da terrazzo, ideale per pranzi o cene all'aperto.
Proseguendo dal disimpegno troviamo la zona notte composta da due camere da letto matrimoniali servite dal terrazzo ed un comodo bagno con box doccia.
Competa la soluzione al piano terra la cantina di proprietà.
Possibilità di parcheggio all'interno della corte condominiale.
Ideale per chi cerca un appoggio per le proprie vacanze, un investimento ma anche per chi cerca una prima abitazione.
Per maggiori informazioni o per fissare un appuntamento di visita chiamare al numero 0544.977424
Dati principali
| Riferimento | 61125164 |
| Data annuncio | 14/10/2025 |
| Contratto | Vendita |
| Tipologia | Appartamento |
| Superficie | 81 m2 |
| Locali | 3 (3 altro), 1 bagno |
| Piano | 4 di 7 totali |
Costi
| Prezzo | 450.000 € |
| Prezzo al m2 | 5.556 €/m2 |
Efficienza energetica
| Anno costruzione | 1963 |
| Riscaldamento | Autonomo |
| Tipo Alimentazione Riscaldamento | Metano |
| Classe energetica | E |
| Indice di prestazione energetica (EP GL, REN) | 145.34 kWh/m3 anno |
| Indice di prestazione energetica (EP GL, NREN) | 145.34 kWh/m3 anno |
Planimetrie
Video
Indirizzo e mappa
Viale Romagna, Cervia
Calcolo mutuo
Prezzo di vendita:
Anticipo
20,00
Mutuo
80,00
Tasso: -+
Rata: 1.287 al mese
I risultati sono una stima indicativa basata sui dati inseriti e non costituiscono un’offerta finanziaria.
Inserzionista
Agenzia Tecnocasa Studio Cervia Srl
Viale Roma, 25, Cervia
Mostra Telefono
Chiama
CONTATTA

