Quadrilocale Via Castellamonte, Banchette
€ 78.000Quadrilocale in vendita
-BANCHETTE-
– L’appartamento è situato al secondo piano di un piccolo contesto con giardino condominiale collocato nelle immediate vicinanze del parco giochi.
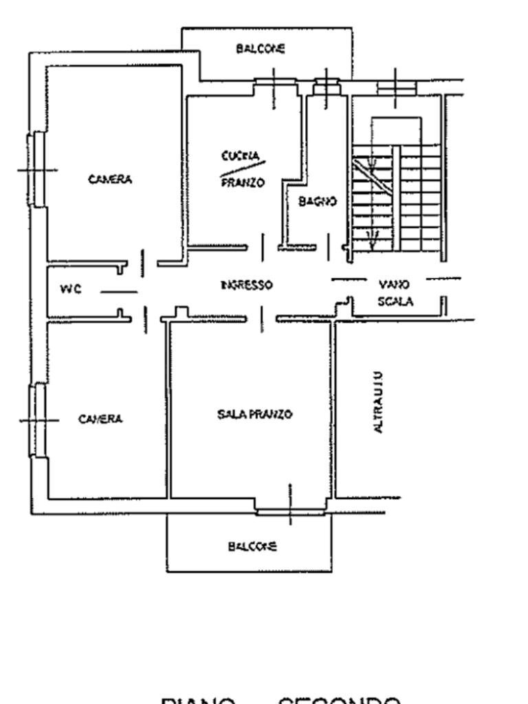
L’alloggio è composto dall’ingresso, dal soggiorno, dalla cucina, dalle due camere da letto e dai doppi servizi di cui uno con doccia.
L’immobile è stato completamente ristrutturato e nello specifico sono stati sostituiti gli infissi esterni ora in alluminio con doppio vetro, sono state installati dei nuovi serramenti interni ed è stato cambiato il portoncino blindato. Sono state posate inoltre delle nuove pavimentazioni e sono stati rifatti sia l’impianto elettrico sia l’impianto idrico. L’unità abitativa è impreziosita anche dalla predisposizione per l’installazione di condizionatori.
L’acqua calda sanitaria viene erogata tramite boiler alimentato a metano.
La caldaia condominiale è stata sostituita nel 2012 e sono stati installati dei nuovi contatori per la lettura dell’acqua fredda sanitaria.
La proprietà è completata dall’affaccio sui due balconi, dalla presenza della cantina e del box auto.
– L’appartamento è situato al secondo piano di un piccolo contesto con giardino condominiale collocato nelle immediate vicinanze del parco giochi.
L’alloggio è composto dall’ingresso, dal soggiorno, dalla cucina, dalle due camere da letto e dai doppi servizi di cui uno con doccia.
L’immobile è stato completamente ristrutturato e nello specifico sono stati sostituiti gli infissi esterni ora in alluminio con doppio vetro, sono state installati dei nuovi serramenti interni ed è stato cambiato il portoncino blindato. Sono state posate inoltre delle nuove pavimentazioni e sono stati rifatti sia l’impianto elettrico sia l’impianto idrico. L’unità abitativa è impreziosita anche dalla predisposizione per l’installazione di condizionatori.
L’acqua calda sanitaria viene erogata tramite boiler alimentato a metano.
La caldaia condominiale è stata sostituita nel 2012 e sono stati installati dei nuovi contatori per la lettura dell’acqua fredda sanitaria.
La proprietà è completata dall’affaccio sui due balconi, dalla presenza della cantina e del box auto.
Dati principali
| Riferimento | 61124795 |
| Data annuncio | 14/10/2025 |
| Contratto | Vendita |
| Tipologia | Appartamento |
| Superficie | 85 m2 |
| Locali | 4 (4 altro), 2 bagni |
Costi
| Prezzo | 78.000 € |
| Prezzo al m2 | 918 €/m2 |
Efficienza energetica
| Anno costruzione | 1966 |
| Riscaldamento | Centralizzato |
| Tipo Alimentazione Riscaldamento | Metano |
| Classe energetica | E |
| Indice di prestazione energetica (EP GL, REN) | 0.4 kWh/m3 anno |
| Indice di prestazione energetica (EP GL, NREN) | 126.21 kWh/m3 anno |
Planimetrie
Video
Indirizzo e mappa
Via Castellamonte, Banchette
Calcolo mutuo
Prezzo di vendita:
Anticipo
20,00
Mutuo
80,00
Tasso: -+
Rata: 223 al mese
I risultati sono una stima indicativa basata sui dati inseriti e non costituiscono un’offerta finanziaria.
Inserzionista
Chiama
CONTATTA

