Appartamento Via Trana, Bruino
€ 120.0005 locali in vendita
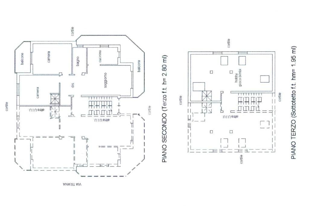
Bruino – Via Trana In zona residenziale tranquilla e comoda ai servizi, a pochi passi dal centro del paese, proponiamo in vendita appartamento al terzo piano con mansarda, situato in una piccola palazzina di sole sei unità abitative.
L'appartamento, privo di ascensore, si sviluppa su due livelli. Al piano principale troviamo l'ingresso su un ampio soggiorno con cucinino, dal quale si accede a un terrazzino vivibile. La zona notte è composta da due camere da letto matrimoniali di generose dimensioni e un bagno finestrato completo di doccia e vasca.
Attraverso la scala esterna situata sul pianerottolo si accede al piano mansardato, alto e ben sfruttabile, composto da un ampio open space e un secondo bagno con vasca. I due piani possono essere collegati anche tramite scala interna.
Completano la proprietà un box auto, una cantina e una porzione di orto. Il riscaldamento è centralizzato.
L'appartamento, privo di ascensore, si sviluppa su due livelli. Al piano principale troviamo l'ingresso su un ampio soggiorno con cucinino, dal quale si accede a un terrazzino vivibile. La zona notte è composta da due camere da letto matrimoniali di generose dimensioni e un bagno finestrato completo di doccia e vasca.
Attraverso la scala esterna situata sul pianerottolo si accede al piano mansardato, alto e ben sfruttabile, composto da un ampio open space e un secondo bagno con vasca. I due piani possono essere collegati anche tramite scala interna.
Completano la proprietà un box auto, una cantina e una porzione di orto. Il riscaldamento è centralizzato.
Dati principali
| Riferimento | 61125673 |
| Data annuncio | 14/10/2025 |
| Contratto | Vendita |
| Tipologia | Appartamento |
| Superficie | 120 m2 |
| Locali | 5 (5 altro), 2 bagni |
| Piano | 3 di 3 totali |
| Numero posti auto | 1 |
Costi
| Prezzo | 120.000 € |
| Prezzo al m2 | 1.000 €/m2 |
| Spese condominiali | € 108,00/mese |
Efficienza energetica
| Anno costruzione | 1985 |
| Riscaldamento | Centralizzato |
| Tipo Alimentazione Riscaldamento | Metano |
| Classe energetica | Immobile esente da certificazione energetica |
Planimetrie
Indirizzo e mappa
Via Trana, Bruino
Calcolo mutuo
Prezzo di vendita:
Anticipo
20,00
Mutuo
80,00
Tasso: -+
Rata: 343 al mese
I risultati sono una stima indicativa basata sui dati inseriti e non costituiscono un’offerta finanziaria.
Inserzionista
Agenzia Tecnocasa Studio Bruino Sas
Via Roma, 32, Bruino
Mostra Telefono
Chiama
CONTATTA

