Locale Commerciale corso Unione Sovietica, 431, Torino (zona Mirafiori Sud)
€ 89.000Corso Unione Sovietica
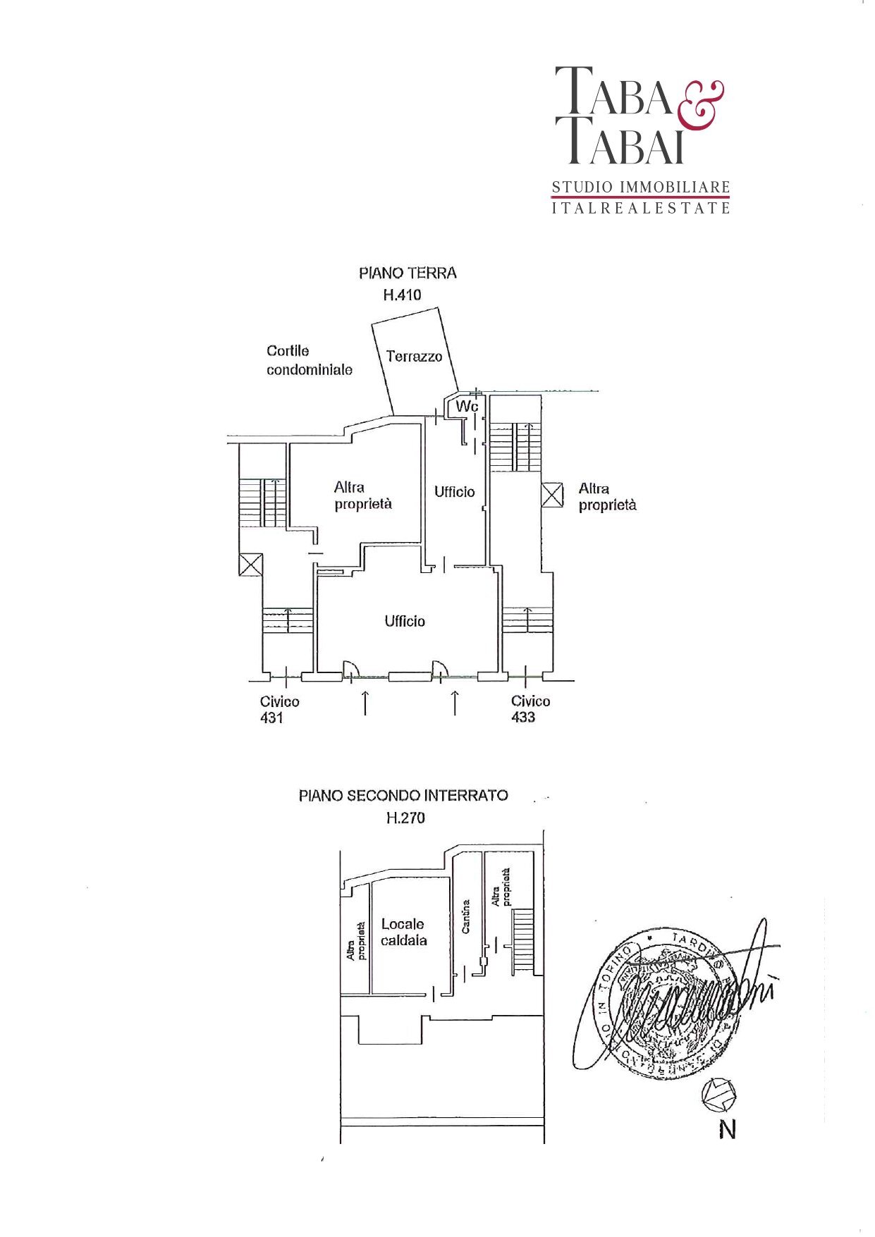
Ufficio/negozio in ottimo stato in vendita di mq.89, con due ingressi da strada due vetrine e un ingresso dallo Stabile. Composto da: ampio open spice - 1 ufficio - bagno - terrazzo lato cortile verandato - cantina - doppia esposizione. Riscaldamento centralizzato con termovalvole €.900 all'anno (salvo conguaglio) - Spese condominiali €. 1440 annue.
Dati principali
| Riferimento | ID2876605 |
| Data annuncio | 14/10/2025 |
| Contratto | Vendita |
| Tipologia | Locale Commerciale |
| Locali | 1 bagno |
| Piano | Terra |
| Tipo di costruzione | Media |
| Uso immobile | Commerciale |
| Numero locali | 3 |
Caratteristiche
Costi
| Prezzo | 89.000 € |
| Spese Riscaldamento | € 900,00/anno |
| Spese condominiali | € 120,00/mese |
Efficienza energetica
| Stato | Buono |
| Riscaldamento | Centralizzato |
| Tipo Impianto Di Riscaldamento | a radiatori |
| Tipo Alimentazione Riscaldamento | Metano |
| Classe energetica | D |
| Indice di prestazione energetica (IPE) | 249.17 kWh/m2 anno |
Planimetrie
Indirizzo e mappa
corso Unione Sovietica, 431, Torino - quartiere Mirafiori Sud
Calcolo mutuo
Prezzo di vendita:
Anticipo
20,00
Mutuo
80,00
Tasso: -+
Rata: 255 al mese
I risultati sono una stima indicativa basata sui dati inseriti e non costituiscono un’offerta finanziaria.
Inserzionista

TABA&TABAI IMMOBILI
Via Goito, 11, Torino
Mostra Telefono
Chiama
CONTATTA

