Rustico Frazione Rossi 33, Bonvicino
€ 278.000Indipendente - Rustico a Bonvicino
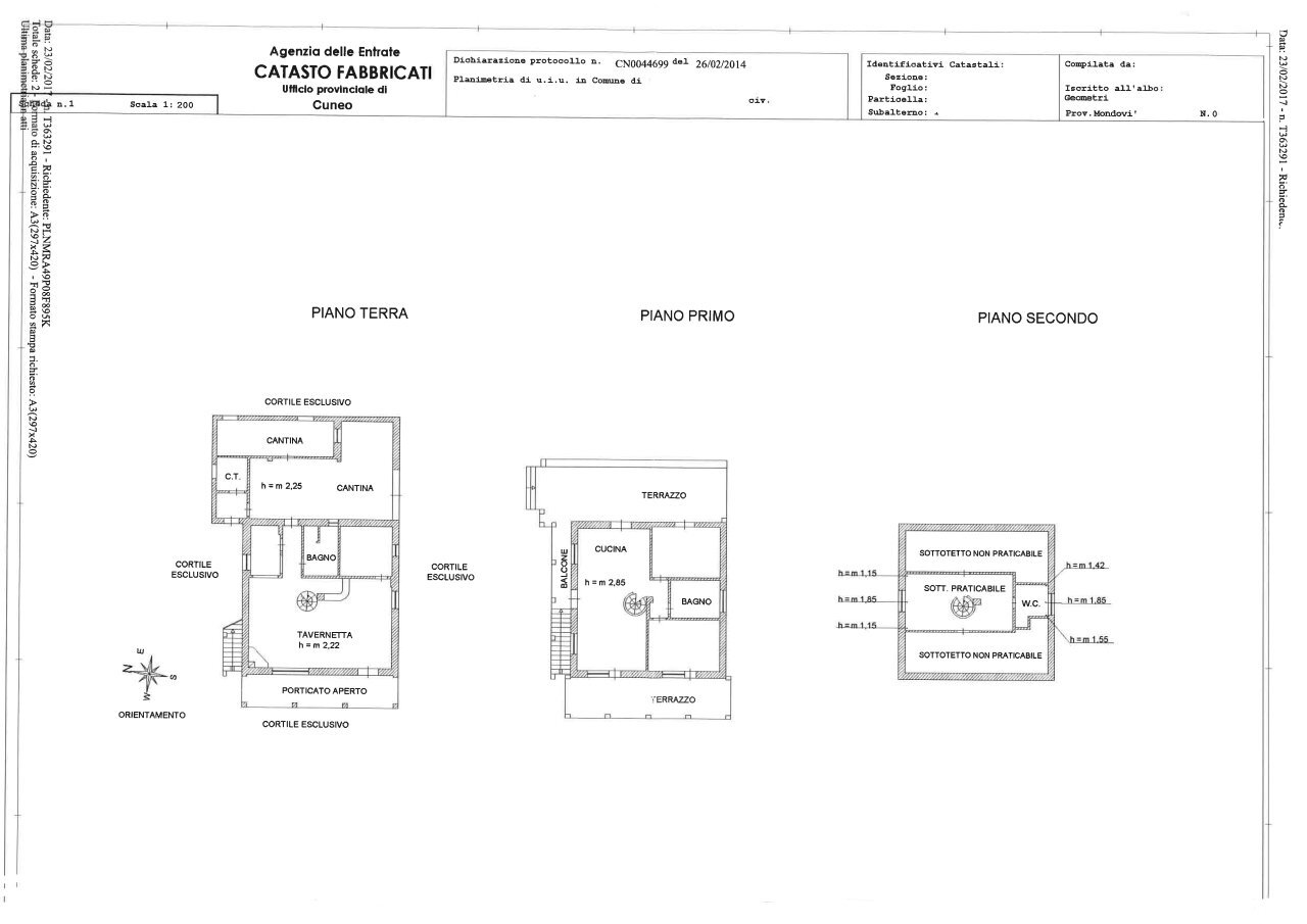
Casa indipendente con piscina nel cuore dell’Alta Langa Bossolasco un piccolo angolo incantato in una borgata panoramica dell’Alta Langa, una casa indipendente con piscina e un luminoso giardino. L’immobile si estende su 270 mq distribuiti su vari piani. Al piano terra, zona relax con sala tv, sala giochi, una camera matrimoniale e un bagno; al primo piano un soggiorno spazioso e una cucina da cui si accede su un terrazzo panoramico, perfetto per cene estive e piccoli momenti di quiete, con vista panoramica sulle Alpi e le colline circostanti. A completare il piano ci sono due camere, un bagno e un balcone, mentre al secondo piano mansardato, ospita un’ulteriore camera e un bagno. La proprietà include anche un’autorimessa, una cantina, una lavanderia e altri locali di servizio. Il fiore all’occhiello della casa è senz’altro il giardino recintato di circa 3.000 mq, ornato da una siepe di lauro acero e impreziosito da piante ornamentali di pregio. La zona barbecue, il campo da bocce, il cortile pavimentato con autobloccanti e la piscina creano insieme un ambiente ideale per vacanze o week-end all’insegna della tranquillità e della bellezza paesaggistica. Dal punto di vista energetico, la casa ha subito una recente riqualificazione: serramenti in vetro doppio, pannelli fotovoltaici, caldaia di ultima generazione e perfino una colonnina per la ricarica delle auto elettriche assicurano, in modo decisamente efficace, una gestione sostenibile ed efficiente dell’abitazione. Un’opportunità unica anche come investimento! Questa casa vacanze, già a reddito, è pronta per accogliere ospiti nel settore degli affitti turistici, garantendo una rendita immediata senza necessità di ulteriori interventi. Non farti scappare questa chance! Contattaci per maggiori dettagli e per prenotare una visita – magari al più presto, perché opportunità così non capitano ogni giorno. L’agenzia immobiliare Dotta si distingue da anni nel panorama territoriale grazie all’estrema serietà e competenza dello staff. E’ parte della nostra missione accompagnare il cliente nel processo di valutazione e scelta dell’immobile più confacente alle proprie aspettative e necessità. Contattaci subito per visionare insieme questa casa nelle Langhe. Saremo lieti di accompagnarti alla proprietà senza alcun impegno, con cortesia e professionalità. www.dottaimmobiliare.it
Dati principali
| Riferimento | D716.25 |
| Data annuncio | 26/08/2024 |
| Contratto | Vendita |
| Tipologia | Rustico |
| Superficie | 270 m2 |
| Locali | più di 5 (4 camere da letto, 7 altro), 3 bagni |
| Piano | 3 totali |
| Numero di terrazzi | 1 |
| Arredamento | Completo |
Caratteristiche
Costi
| Prezzo | 278.000 € |
| Prezzo al m2 | 1.030 €/m2 |
Efficienza energetica
| Anno costruzione | 1985 |
| Classe energetica | D |
Planimetrie
Indirizzo e mappa
Frazione Rossi 33, Bonvicino
Calcolo mutuo
Prezzo di vendita:
Anticipo
20,00
Mutuo
80,00
Tasso: -+
Rata: 795 al mese
I risultati sono una stima indicativa basata sui dati inseriti e non costituiscono un’offerta finanziaria.
Inserzionista

Dotta Immobiliare
piazza san paolo 6, Dogliani
Mostra Telefono
Chiama
CONTATTA

