Appartamento PIAZZA EURIPIDE, Siracusa
€ 680.000Palazzo/Stabile a Adda -Gelone - Borgata, Siracusa
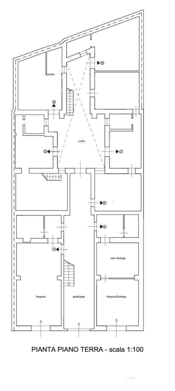
SIRACUSA PALAZZO STORICO IN VENDITA PRESSI P.ZZA EURIPIDE -RIF1778- in zona altamente richiesta, a due passi dallo sbarcadero e dal porto piccolo, vendesi unico palazzo indipendente di 800 mq circa disposto su due livelli con cortile interno e terrazzi. composizione piano terra: n. 2 bassi commerciali (attualmente locati) e n. 2 appartamenti disposti su due livelli; composizione primo piano:n. 3 appartamenti di varie dimensioni e n. 2 ampi terrazzi a livello;stabile parzialmente ristrutturato con parte di facciata rifatta ed impianti idrici ed elettrici rifatti (40% circa dell'intero stabile) note e particolarità: stabile indipendente, ottimo sia per b&b - case vacanze - piccolo hotel. possibilità di realizzare fino a n.20 camere con rispettivi bagni. documentazione regolare.ottima posizione, a due passi da ortigia, stazione, museo paolo orsi, santuario e solarium /mare. PREZZO RIBASSATO EURO 680.000,00. -RIF1778- N.B. L’indirizzo e la posizione indicati potrebbero non corrispondere esattamente all’ubicazione reale dell’immobile, al fine di tutelare la privacy dei proprietari Per maggiori info contattaci Agenzia Millecase cell. 3921838792 Roberta Segreteria cell. 3206332111 Marco Responsabile/Agente cell. 3931131346 Jonathan Acquisitore/Agente cell. 3516273732 Salvo Collaboratore seguici sul nostro sito millecase.net!
Dati principali
| Riferimento | RIF1778/680BORGATA |
| Data annuncio | 15/12/2023 |
| Contratto | Vendita |
| Tipologia | Appartamento |
| Superficie | 800 m2 |
| Locali | più di 5 (20 camere da letto), 20 bagni |
| Piano | 2 totali |
| Numero di balconi | 1 |
Costi
| Prezzo | 680.000 € |
| Prezzo al m2 | 850 €/m2 |
Efficienza energetica
| Anno costruzione | 1900 |
| Classe energetica | G |
Planimetrie
Indirizzo e mappa
PIAZZA EURIPIDE, Siracusa
Calcolo mutuo
Prezzo di vendita:
Anticipo
20,00
Mutuo
80,00
Tasso: -+
Rata: 1.945 al mese
I risultati sono una stima indicativa basata sui dati inseriti e non costituiscono un’offerta finanziaria.
Inserzionista

Millecase immobiliare
Via Noto 35, Siracusa
Mostra Cellulare
Chiama
CONTATTA

