Bilocale VIALE TUNISI, Siracusa
€ 55.000Appartamento - Bilocale a Grottasanta - Tunisi, Siracusa
SIRACUSA APPARTAMENTO IN VENDITA ZONA TUNISI - RIF2224-
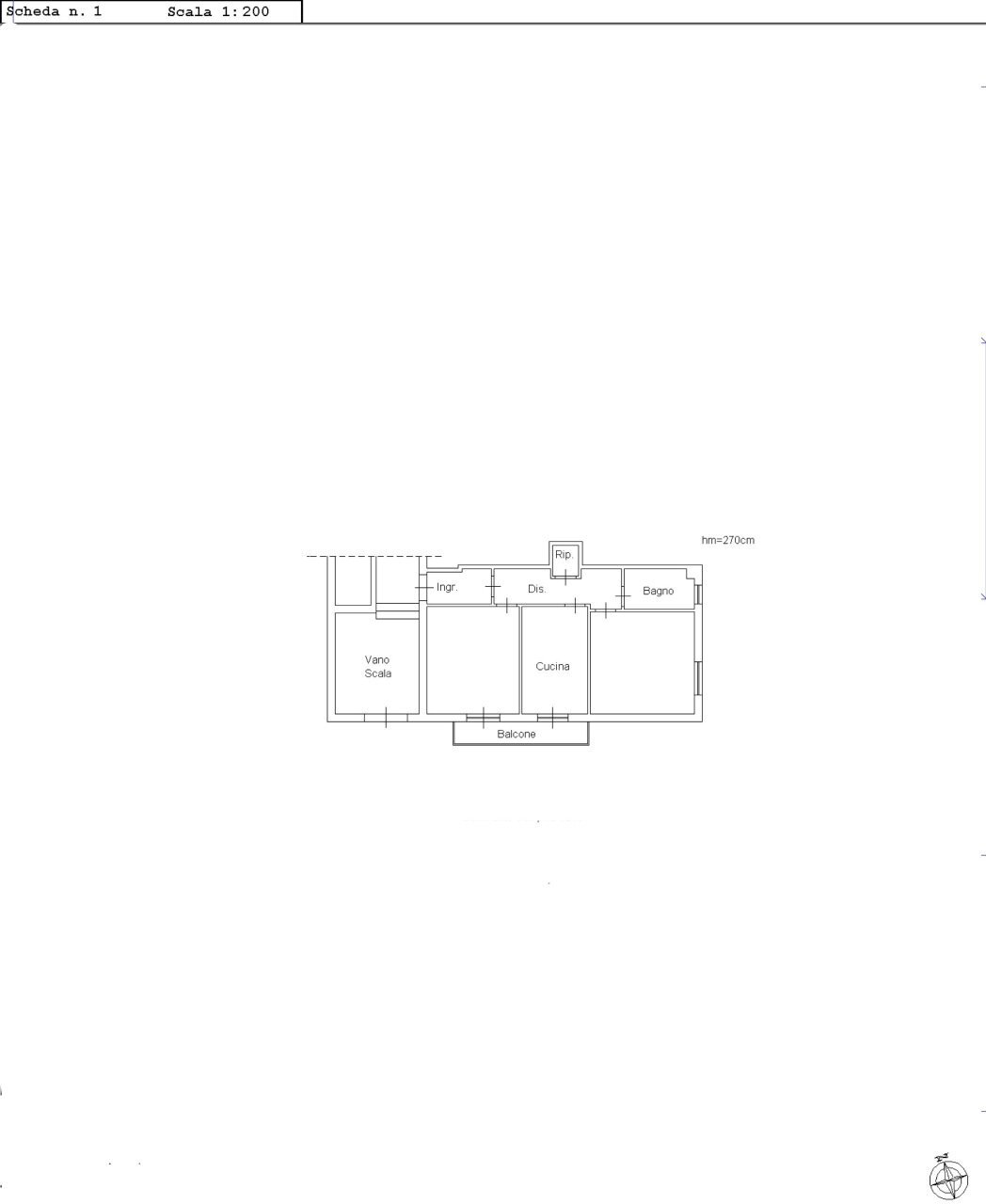
tunisi, appartamento 70 mq in contesto recintato, A due passi dalla pista ciclabile e con vista mare. L'immobile è ubicato in contesto recintato con posto auto condominiale. Composizione : ingresso, soggiorno, cucina abitabile, camera da letto, bagno, ripostiglio. L'immobile è Gia libero ed in pronta consegna. Classe energetica: G; PREZZO RIBASSATO: EURO 55.000,00. -RIF2224-
N.B. L’indirizzo e la posizione indicati potrebbero non corrispondere esattamente all’ubicazione reale dell’immobile, al fine di tutelare la privacy dei proprietari
Per maggiori info contattaci Agenzia Millecase
cell. 3921838792 Roberta Segreteria
cell. 3206332111 Marco Responsabile/Agente
cell. 3931131346 Jonathan Acquisitore/Agente
cell. 3516273732 Salvo, 3516893831 Giuseppe, Collaboratori
seguici sul nostro sito millecase.net!
tunisi, appartamento 70 mq in contesto recintato, A due passi dalla pista ciclabile e con vista mare. L'immobile è ubicato in contesto recintato con posto auto condominiale. Composizione : ingresso, soggiorno, cucina abitabile, camera da letto, bagno, ripostiglio. L'immobile è Gia libero ed in pronta consegna. Classe energetica: G; PREZZO RIBASSATO: EURO 55.000,00. -RIF2224-
N.B. L’indirizzo e la posizione indicati potrebbero non corrispondere esattamente all’ubicazione reale dell’immobile, al fine di tutelare la privacy dei proprietari
Per maggiori info contattaci Agenzia Millecase
cell. 3921838792 Roberta Segreteria
cell. 3206332111 Marco Responsabile/Agente
cell. 3931131346 Jonathan Acquisitore/Agente
cell. 3516273732 Salvo, 3516893831 Giuseppe, Collaboratori
seguici sul nostro sito millecase.net!
Dati principali
| Riferimento | RIF2224/55TUNISI |
| Data annuncio | 15/07/2025 |
| Contratto | Vendita |
| Tipologia | Appartamento |
| Superficie | 70 m2 |
| Locali | 2 (1 camera da letto, 1 altro), 1 bagno |
| Piano | 1 totali |
| Numero di balconi | 1 |
Costi
| Prezzo | 55.000 € |
| Prezzo al m2 | 786 €/m2 |
| Spese condominiali | € 18,00/mese |
Efficienza energetica
| Anno costruzione | 1975 |
| Classe energetica | G |
Planimetrie
Indirizzo e mappa
VIALE TUNISI, Siracusa
Calcolo mutuo
Prezzo di vendita:
Anticipo
20,00
Mutuo
80,00
Tasso: -+
Rata: 157 al mese
I risultati sono una stima indicativa basata sui dati inseriti e non costituiscono un’offerta finanziaria.
Inserzionista

Millecase immobiliare
Via Noto 35, Siracusa
Mostra Cellulare
Chiama
CONTATTA

