Locale Commerciale Via Onorato Capo, Anagni
€ 650 al meseLocale commerciale a Anagni
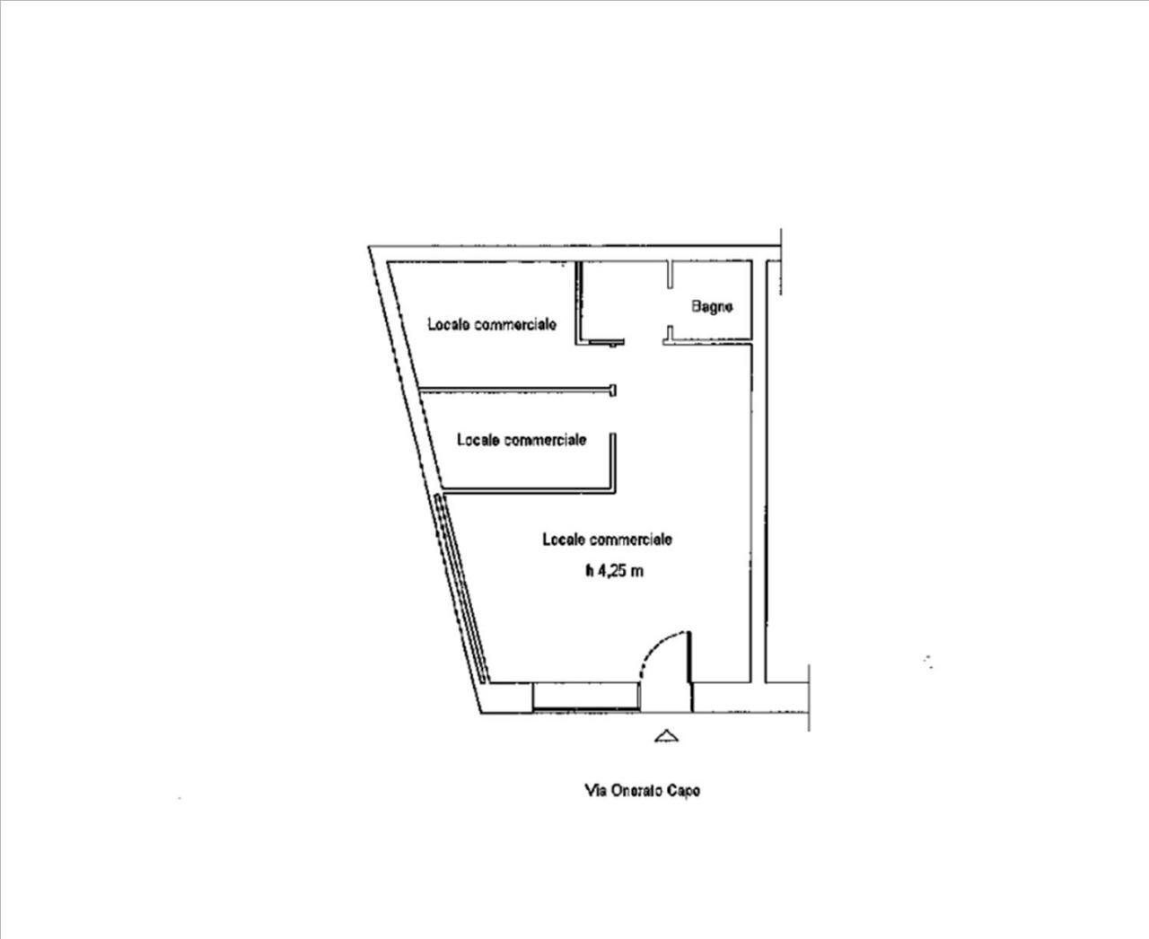
POSIZIONE Anagni, in prossimità del presidio ospedaliero, su arteria principale che immette al centro storico del paese. Nelle immediate vicinanze vi è la possibilità di usufruire del parcheggio multipiano San Giorgetto. Area parcheggio a pagamento, oltre posti auto per disabili, nell'area antistante il locale. DESCRIZIONE Locale commerciale posto al piano terra di c.a. 65 mq, servito da vetrina con ingresso fronte strada. La soluzione è composta da tre ambienti commerciali, antibagno e bagno. La proprietà ha un'altezza interna effettiva di 4,25 mt, attualmente controsoffitta in cartongesso. STATO E FINITURE Il locale è stato recentemente ristrutturato, con impianti di nuova generazione con certificazioni e agibilità. Il locale è servito da serranda elettrica. Gli ambienti risultano climatizzati. UTILIZZO E POTENZIALITA' Per coloro che necessitano di ulteriori metri, potrebbe essere annesso il locale attiguo di c.a. 60 mq (canone da concordare). * Le presenti informazioni non costituiscono elemento contrattuale, dovranno essere verificate in ogni caso. Per tutte le soluzioni in affitto, potete visitare il nostro sito www.gruppoempireimmobiliare.it
Dati principali
| Riferimento | 201-432 |
| Data annuncio | 26/02/2025 |
| Contratto | Affitto |
| Tipologia | Locale Commerciale |
| Superficie | 65 m2 |
| Piano | 1 totali |
Costi
| Prezzo | 650 € al mese |
Efficienza energetica
| Classe energetica | G |
Planimetrie
Indirizzo e mappa
Via Onorato Capo, Anagni
Inserzionista

Gruppo Empire Italia srl
Via Giovanni Giminiani 17/O, Anagni
Mostra Telefono
Chiama
CONTATTA

