Trilocale Viale Japigia 27, Lecce
€ 175.000Appartamento - Trilocale a Lecce
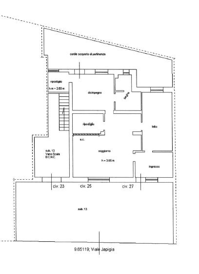
GRIMALDI STORE LECCE Vico dei Fieschi 16 - 73100 Lecce – Viale Japigia Grimaldi Store Lecce propone in esclusiva un ampio appartamento al piano terra, situato in posizione centrale su Viale Japigia, nel cuore della città. L’immobile, oggi utilizzato come ufficio ma con destinazione d’uso residenziale, offre diverse possibilità di trasformazione e rappresenta un investimento interessante sia per chi cerca una casa comoda e funzionale, sia per chi desidera uno spazio da personalizzare. L’ingresso conduce a un grande living ed a una prima stanza, attualmente adibita a studio ma facilmente convertibile in camera da letto. Dal salone si accede a un cucinotto, già predisposto con gli impianti per l’installazione della cucina. Proseguendo si incontra una seconda camera, anch’essa oggi ad uso studio, corredata da un pratico ripostiglio che può diventare una cabina armadio, oltre a un bagno di servizio. L’appartamento è dotato di un sistema di riscaldamento con radiatori a gas e di un impianto di raffrescamento tramite ventilconvettori caldo/freddo, che garantiscono comfort in ogni stagione. A completare la proprietà vi sono uno scoperto retrostante di circa 35 mq, perfetto per momenti di relax all’aperto, e un piazzale antistante in comune che consente di parcheggiare comodamente due auto. GRIMALDI STORE LECCE Info: 0832 1902429 - 393 9035134 Mail: [email protected]
Dati principali
| Riferimento | 175JAPIGIA |
| Data annuncio | 08/09/2025 |
| Contratto | Vendita |
| Tipologia | Appartamento |
| Superficie | 111 m2 |
| Locali | 3 (2 camere da letto, 1 altro), 1 bagno |
| Piano | 2 totali |
| Numero posti auto | 1 |
Costi
| Prezzo | 175.000 € |
| Prezzo al m2 | 1.577 €/m2 |
Efficienza energetica
| Classe energetica | E |
Planimetrie
Indirizzo e mappa
Viale Japigia 27, Lecce
Calcolo mutuo
Prezzo di vendita:
Anticipo
20,00
Mutuo
80,00
Tasso: -+
Rata: 500 al mese
I risultati sono una stima indicativa basata sui dati inseriti e non costituiscono un’offerta finanziaria.
Inserzionista
Nike Immobiliare S.r.l.
Via Vico dei Fieschi 16, Lecce
Mostra Telefono
Mostra Cellulare
Chiama
CONTATTA

