
Per vedere altre immagini,
prova a chiederle all'inserzionista
prova a chiederle all'inserzionista
Locale Commerciale Reggio nell'Emilia
€ 2.900 al meseNEGOZIO a Reggio nell'Emilia
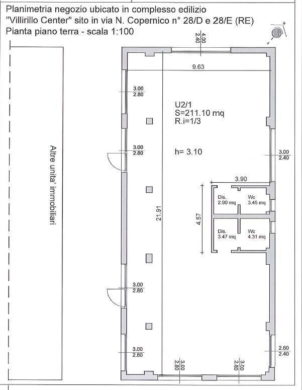
Proponiamo, zona Foro Boario, negozio in primaria posizione di mq. 235 con doppi servizi d'angolo con 6 vetrine in pregevole struttura commerciale adatto per qualsiasi tipo di attività. Ampio parcheggio. Riscaldamento e raffrescamento autonomo con pompa di calore.
Dati principali
| Riferimento | 16562 |
| Data annuncio | 05/09/2024 |
| Contratto | Affitto |
| Tipologia | Locale Commerciale |
| Superficie | 235 m2 |
| Locali | 2 (2 altro), 2 bagni |
| Piano | 1 totali |
Costi
| Prezzo | 2.900 € al mese |
Efficienza energetica
| Classe energetica | In fase di calcolo |
Indirizzo e mappa
Reggio nell'Emilia
Annuncio senza mappa,
prova a chiedere la posizione all'inserzionista
prova a chiedere la posizione all'inserzionista
Inserzionista
Chiama
CONTATTA