Appartamento Piazza Monte Grappa 11, Frascati
€ 385.000Appartamento - Quadrilocale a Frascati
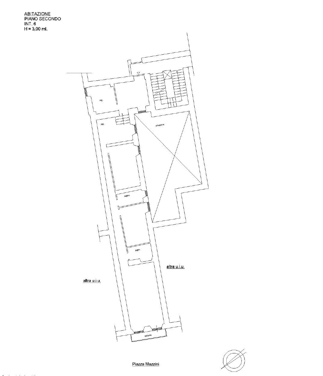
Nel centro storico di Frascati, in posizione strategica e comodamente servita da ascensore, si trova questo incantevole appartamento situato al secondo piano di un palazzo d’epoca. L'immobile è stato recentemente ristrutturato con materiali di pregio. L’ingresso ampio accoglie con un comodo armadio a muro guardaroba, perfetto per mantenere ordine e praticità. Da qui si accede a uno studiolo riservato e tranquillo, ideale come angolo lettura o spazio di lavoro. Scendendo tre gradini si apre una cucina abitabile dal concept aperto, pensata per vivere la convivialità quotidiana con gusto e funzionalità. La zona notte si sviluppa, con due camere da letto ben proporzionate, accompagnate da doppi servizi moderni, entrambi arredati con attenzione al dettaglio e finiture contemporanee. Il salone, si affaccia su un balcone da cui si gode una splendida vista panoramica su Roma. L’appartamento è stato oggetto non solo di una ristrutturazione integrale, ma anche di un intervento strutturale importante con il completo rifacimento dei solai, che garantisce una maggiore sicurezza, durabilità e valore nel tempo. Grazie alla sua configurazione e posizione, l'immobile si presta perfettamente ad essere adibito a studio professionale .
Dati principali
| Riferimento | 625 |
| Data annuncio | 16/07/2025 |
| Contratto | Vendita |
| Tipologia | Appartamento |
| Superficie | 125 m2 |
| Locali | più di 5 (3 camere da letto, 3 altro), 2 bagni |
| Piano | 1 totali |
| Numero di balconi | 1 |
Costi
| Prezzo | 385.000 € |
| Prezzo al m2 | 3.080 €/m2 |
Efficienza energetica
| Classe energetica | D |
Planimetrie
Indirizzo e mappa
Piazza Monte Grappa 11, Frascati
Calcolo mutuo
Prezzo di vendita:
Anticipo
20,00
Mutuo
80,00
Tasso: -+
Rata: 1.101 al mese
I risultati sono una stima indicativa basata sui dati inseriti e non costituiscono un’offerta finanziaria.
Inserzionista

Agenzia Immobiliare Raggi & Di Nunzio
Via Bezzecca, 25, Frascati
Mostra Telefono
Chiama
CONTATTA

