Locale Commerciale Via Paronese, Prato
Trattativa riservataCapannone / Fondo - Industriale/Artigianale a Macrolotto, Prato
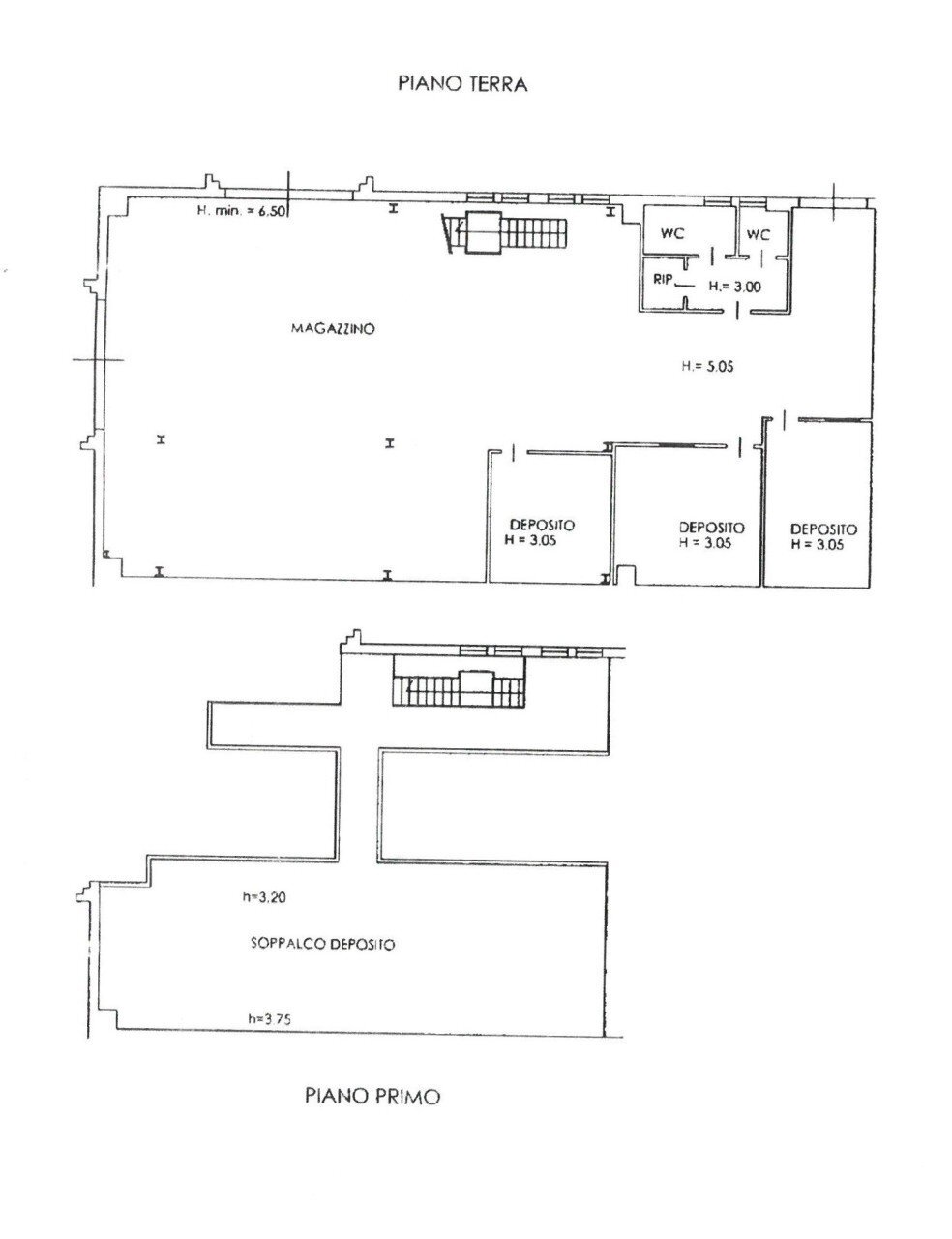
Nel Macrolotto 2 disponiamo di un capannone a reddito ( € 120.000 annuali) di circa mq. 1.100 con resede su due lati di recente costruzione e così suddiviso: A) piano terra di mq. 500 con uffici e servizi, mentre al piano primo disponiamo di mq. 290 con ingresso indipendente B) piano terra con resede privato su due livelli per complessivi mq. 300, con uffici, servizi e soppalco di mq. 150. Per motivi di privacy l'indirizzo non è reale. Il nostro ufficio è aperto dal lunedi al venerdi dalle 9,00 alle 13,00 e dalle 15,00 alle 19,00. Il sabato mattina su appuntamento. Per ulteriori informazioni: 0574/946052.
Dati principali
| Riferimento | 323 |
| Data annuncio | 28/06/2023 |
| Contratto | Vendita |
| Tipologia | Locale Commerciale |
| Superficie | 500 m2 |
Costi
| Prezzo | Trattativa riservata |
Efficienza energetica
| Classe energetica | In fase di calcolo |
Indirizzo e mappa
Via Paronese, Prato
Inserzionista

Spazio Casa Studio Immobiliare s.a.s.
Via Borgonuovo, 4/B, Vaiano
Mostra Telefono
Mostra Cellulare
Chiama
CONTATTA

