Casale Via di Mezzomonte, Pistoia
€ 650.000Indipendente - Casale a Pistoia
Immersa nel verde con splendida vista sulla città ed in completa privacy, disponiamo di colonica di ampie dimensioni, con accesso diretto da strada pubblica. L'immobile è composto da due unità immobiliare, una in parte ristrutturata l'altra ancora con destinazione agricola agricola da ristrutturare, che si affacciano su grande resede (aia) e circondate da 2 ettari di terreno con circa 400 piante di ulivi. Completano la proprietà una rimessa di mq. 90 ed un pozzo privato.er motivi di privacy l'indirizzo non corrisponde. Il nostro ufficio è aperto dal lunedì al venerdì dalle 9,00 alle 13,00 e dalle 15,00 alle 19,00. Il sabato mattina su appuntamento. Per ulteriori informazioni: 0574/946052.
Dati principali
| Riferimento | 329 |
| Data annuncio | 29/11/2024 |
| Contratto | Vendita |
| Tipologia | Casale |
| Superficie | 650 m2 |
| Locali | più di 5 (12 altro) |
| Piano | 1 totali |
Costi
| Prezzo | 650.000 € |
| Prezzo al m2 | 1.000 €/m2 |
Efficienza energetica
| Classe energetica | In fase di calcolo |
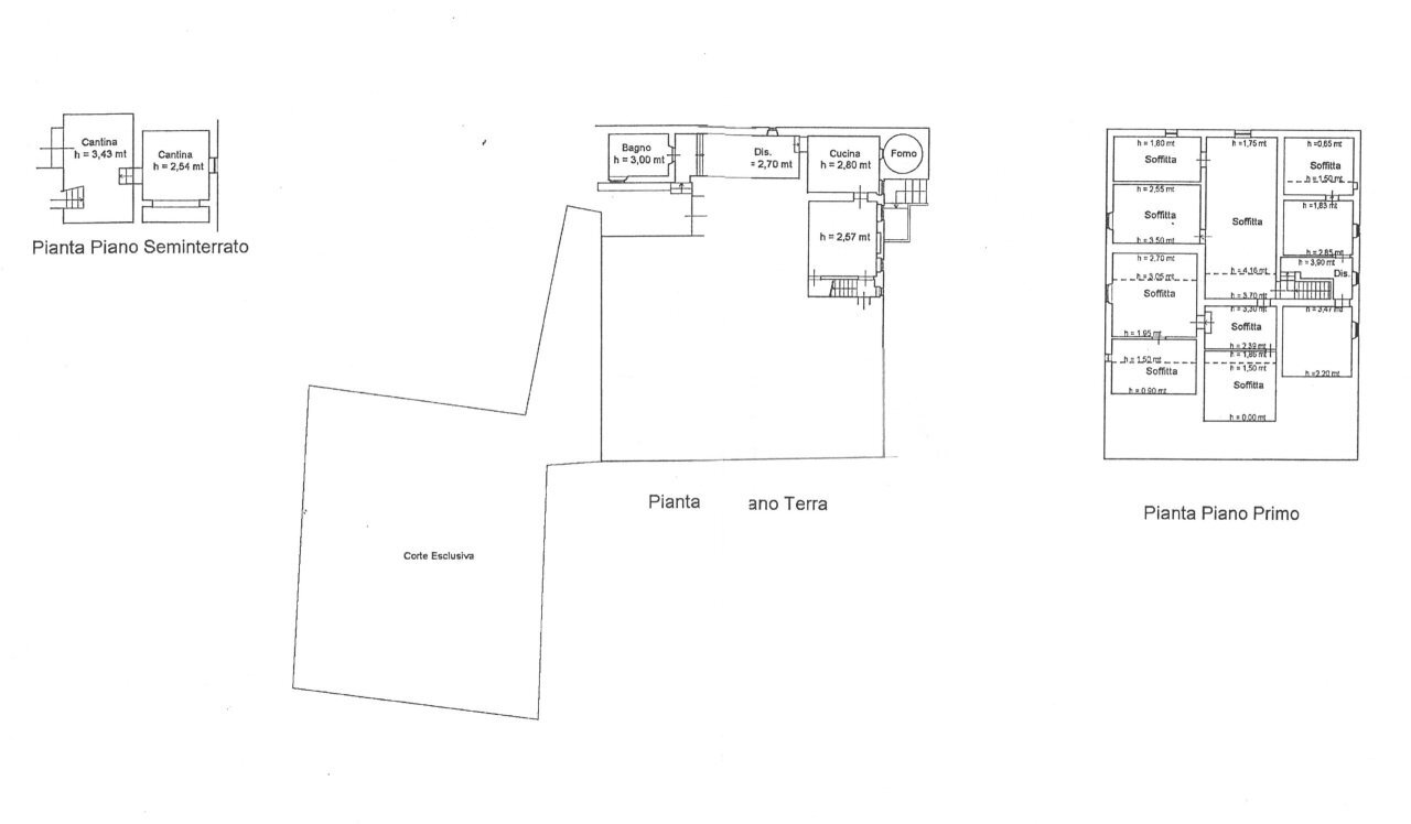
Planimetrie
Indirizzo e mappa
Via di Mezzomonte, Pistoia
Calcolo mutuo
Prezzo di vendita:
Anticipo
20,00
Mutuo
80,00
Tasso: -+
Rata: 1.859 al mese
I risultati sono una stima indicativa basata sui dati inseriti e non costituiscono un’offerta finanziaria.
Inserzionista

Spazio Casa Studio Immobiliare s.a.s.
Via Borgonuovo, 4/B, Vaiano
Mostra Telefono
Mostra Cellulare
Chiama
CONTATTA

