Villa Piazza del Comune, Vaiano
€ 269.000Indipendente - Singola a Vaiano
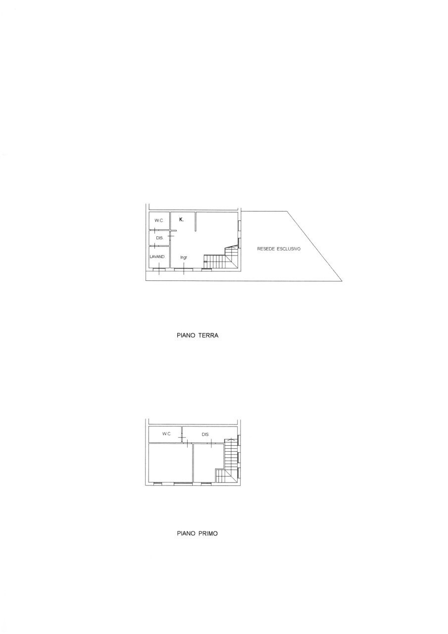
In zona centrale, vicino a tutti i servizi, proponiamo terratetto di recente costruzione con giardino privato. L'immobile è composto da soggiorno pranzo con angolo cottura ed accesso al giardino, servizio, lavanderia, al piano terra; due camere matrimoniali, servizio al piano primo. Possibilità di acquisto del garage. Per motivi di privacy l'indirizzo non corrisponde. Il nostro ufficio è aperto dal lunedì al venerdì dalle 9,00 alle 13,00 e dalle 15,00 alle 19,00. Il sabato mattina su appuntamento. Per ulteriori informazioni: 0574/946052.
Dati principali
| Riferimento | 206 |
| Data annuncio | 08/09/2025 |
| Contratto | Vendita |
| Tipologia | Villa |
| Superficie | 100 m2 |
| Locali | 4 (2 camere da letto, 2 altro), 2 bagni |
| Piano | 1 totali |
Costi
| Prezzo | 269.000 € |
| Prezzo al m2 | 2.690 €/m2 |
Efficienza energetica
| Classe energetica | C |
Planimetrie
Indirizzo e mappa
Piazza del Comune, Vaiano
Calcolo mutuo
Prezzo di vendita:
Anticipo
20,00
Mutuo
80,00
Tasso: -+
Rata: 769 al mese
I risultati sono una stima indicativa basata sui dati inseriti e non costituiscono un’offerta finanziaria.
Inserzionista

Spazio Casa Studio Immobiliare s.a.s.
Via Borgonuovo, 4/B, Vaiano
Mostra Telefono
Mostra Cellulare
Chiama
CONTATTA

