Locale Commerciale Via del Cantone, Sesto Fiorentino
€ 3.400.000Capannone / Fondo - Commerciale a Sesto Fiorentino
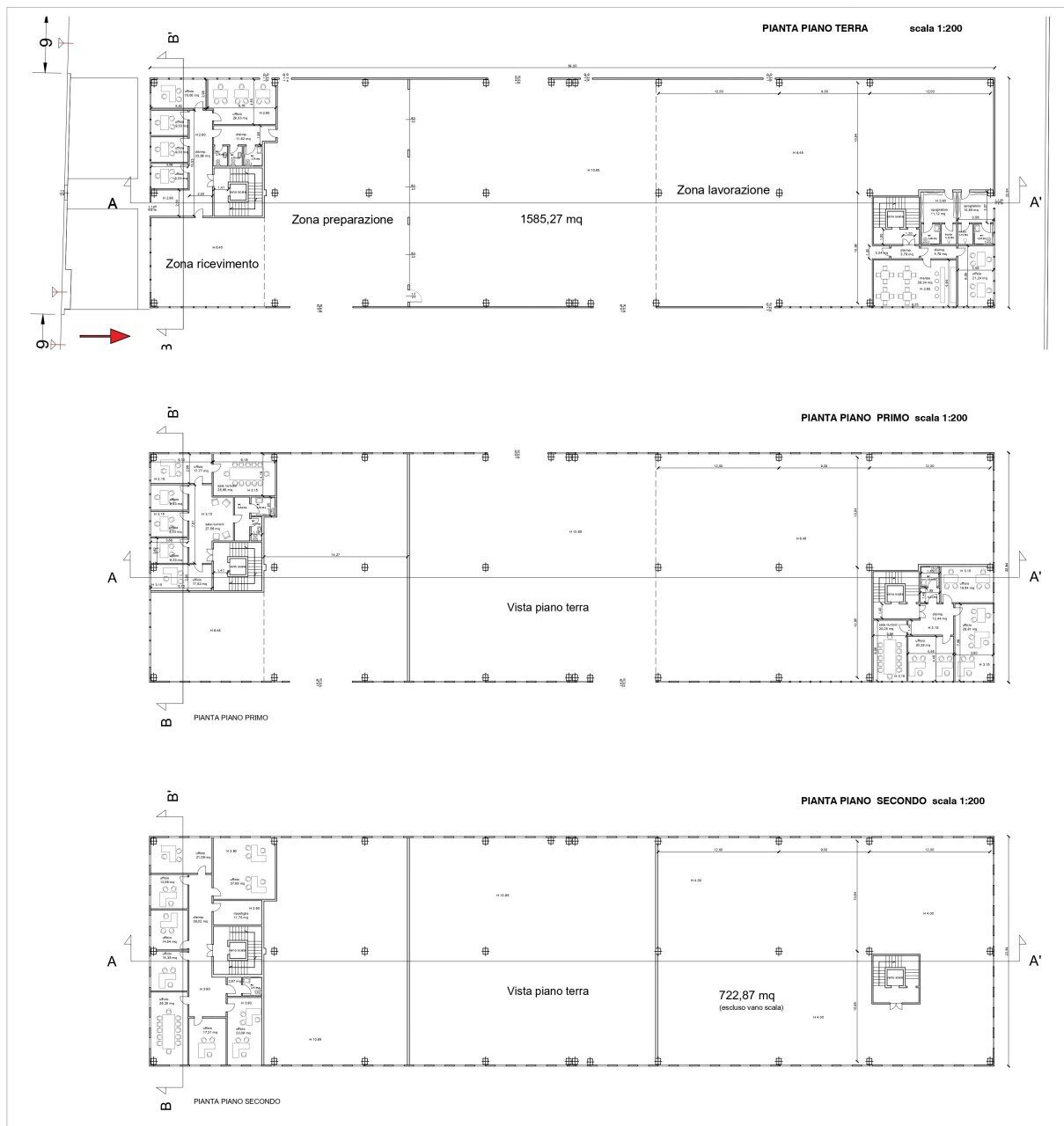
A23325 - SESTO FIORENTINO/OSMANNORO - VIA DEL CANTONE: All'interno della zona industriale e in prossimità dello svincolo autostradale, proponiamo in vendita ampio e luminoso capannone (categoria catastale D/7) di 1916 mq c.a composto da un ampio vano open space al piano terra, e molteplici uffici con servizi preceduti da regolari antibagno oltre a 35 posti auto ad uso esclusivo in piazzale privato di 2500 mq c.a. ai lati dell'edificio. L'immobile verrà completamente ristrutturato con rifiniture di pregio e consegnato chiavi in mano, fine lavori prevista per Dicembre 2024. Acquistando in questa fase sarà possibile effettuare opere di personalizzazione a seconda delle proprie esigenze. Ideale come forma di investimento o laboratorio per pelletterie e showroom. Classe energetica G.
Dati principali
| Riferimento | a23325 |
| Data annuncio | 14/12/2023 |
| Contratto | Vendita |
| Tipologia | Locale Commerciale |
| Superficie | 1916 m2 |
| Locali | 1 (1 altro), 4 bagni |
| Piano | 3 totali |
| Numero posti auto | 1 |
Costi
| Prezzo | 3.400.000 € |
| Prezzo al m2 | 1.775 €/m2 |
Efficienza energetica
| Anno costruzione | 2024 |
| Classe energetica | G |
Planimetrie
Indirizzo e mappa
Via del Cantone, Sesto Fiorentino
Calcolo mutuo
Prezzo di vendita:
Anticipo
20,00
Mutuo
80,00
Tasso: -+
Rata: 9.724 al mese
I risultati sono una stima indicativa basata sui dati inseriti e non costituiscono un’offerta finanziaria.
Inserzionista
Immobiliare Belvedere
Via Il Prato 61r, Firenze
Mostra Telefono
Chiama
CONTATTA

