Casa semi indipendente Via San Lazzaro 49, Lecce
€ 390.000Semindipendente a Centro città, Lecce
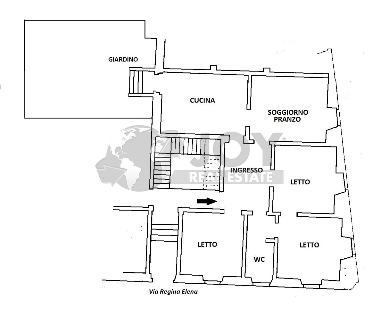
A Lecce, in zona San Lazzaro vendesi antica abitazione signorile tipica con volte a stella, di ca. 170 mq commerciali. L'immobile che si sviluppa su un piano rialzato è composto da ingresso/disimpegno, tre camere da letto, un bagno, un soggiorno e un ampia cucina abitabile che affaccia sul giardino di ca. 60 mq. L'abitazione è molto luminosa e si presenta in ottime condizioni. Per ulteriori informazioni o visite contattare l'agenzia
Dati principali
| Riferimento | 1CA |
| Data annuncio | 25/05/2018 |
| Contratto | Vendita |
| Tipologia | Casa semi indipendente |
| Superficie | 190 m2 |
| Locali | più di 5 (3 camere da letto, 3 altro), 1 bagno |
| Piano | 1 totali |
Costi
| Prezzo | 390.000 € |
| Prezzo al m2 | 2.053 €/m2 |
Efficienza energetica
| Classe energetica | G |
Planimetrie
Indirizzo e mappa
Via San Lazzaro 49, Lecce
Calcolo mutuo
Prezzo di vendita:
Anticipo
20,00
Mutuo
80,00
Tasso: -+
Rata: 1.115 al mese
I risultati sono una stima indicativa basata sui dati inseriti e non costituiscono un’offerta finanziaria.
Inserzionista

Your move s.r.l.
Viale Francesco Lo Re 16/a, Lecce
Mostra Telefono
Chiama
CONTATTA

