Ristorante Via dei Giustiniani 48, Recco
€ 262.658Ristorante a Recco
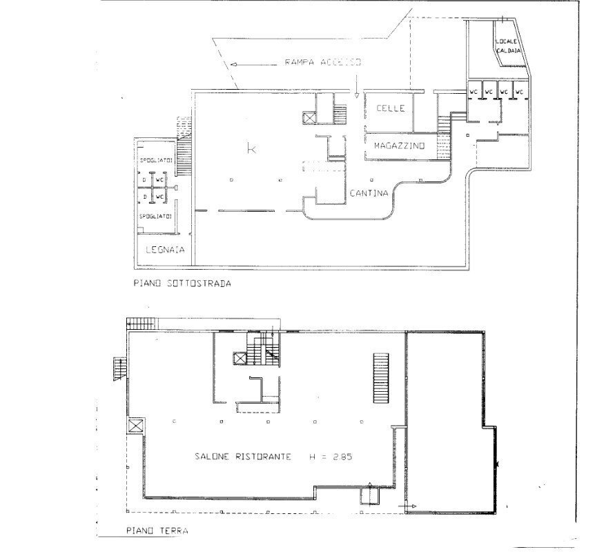
Locale ristorante in Recco, Via dei Giustiniani 48, edificio 1. Il ristorante con locale veranda è sito al piano terra del fabbricato, al primo pano sotto strada è ubicato il locale cucina, la cantina, il magazzino, gli spogliatoi, i servizi igienici, la legnaia e uno spazio attrezzato con tavolini per la ristorazione.
- Il Prezzo visualizzato è la Base d'Asta in quanto l’immobile è oggetto di esecuzione immobiliare venduto tramite Asta Giudiziaria.
- L'immobile aggiudicato, viene venduto libero e sgombro da persone cose ed ipoteche nello stato di fatto e di diritto in cui si trova.
- Non rappresentiamo il Tribunale, ma lavoriamo nell'esclusivo interesse del potenziale acquirente per garantire un acquisto sicuro.
- I consulenti di ASTE ITALIA ti assisteranno in tutte le attività dell'iter giudiziario dalla visita dell'immobile fino alla consegna chiavi.
- Contatta il nostro Servizio Clienti , i nostri operatori sono a disposizione per chiarire i molteplici dubbi per partecipare alle ASTE.
- Il Prezzo visualizzato è la Base d'Asta in quanto l’immobile è oggetto di esecuzione immobiliare venduto tramite Asta Giudiziaria.
- L'immobile aggiudicato, viene venduto libero e sgombro da persone cose ed ipoteche nello stato di fatto e di diritto in cui si trova.
- Non rappresentiamo il Tribunale, ma lavoriamo nell'esclusivo interesse del potenziale acquirente per garantire un acquisto sicuro.
- I consulenti di ASTE ITALIA ti assisteranno in tutte le attività dell'iter giudiziario dalla visita dell'immobile fino alla consegna chiavi.
- Contatta il nostro Servizio Clienti , i nostri operatori sono a disposizione per chiarire i molteplici dubbi per partecipare alle ASTE.
Dati principali
| Riferimento | GE36/23LU-1501-26-1630 |
| Data annuncio | 23/05/2024 |
| Contratto | Vendita |
| Tipologia | Ristorante |
| Superficie | 830 m2 |
| Locali | 5 (5 altro), 2 bagni |
| Piano | 2 totali |
Costi
| Prezzo | 262.658 € |
| Prezzo al m2 | 316 €/m2 |
Efficienza energetica
| Classe energetica | G |
Planimetrie
Indirizzo e mappa
Via dei Giustiniani 48, Recco
Calcolo mutuo
Prezzo di vendita:
Anticipo
20,00
Mutuo
80,00
Tasso: -+
Rata: 751 al mese
I risultati sono una stima indicativa basata sui dati inseriti e non costituiscono un’offerta finanziaria.
Inserzionista
DOMY ONLINE S.R.L.
Via San Lorenzo 5/41, Genova
Mostra Telefono
Mostra Cellulare
Chiama
CONTATTA

